MU
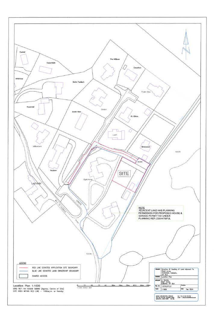
Land 50m East of Eight Acres, Smithfield, Culbokie
By Munro & Noble
£ 130,000
Reviews
3 out of 5 stars
Munro & Noble says ..
An unmissable opportunity to purchase a desirable building plot that is situated in a semi-rural location on the edge of the peaceful village of Culbokie.
Property Oracle says ..
Therefore, we give this property 7 / 10. *Disclaimer: This is our option and does constitute a recommendation or financial advice. Do your own research. *
- Price
- 4
- Condition
- 0
- Location
- 7
- Land
- 10
- Bedrooms
- 0
- Bathrooms
- 0
The heatmap indicates the level of crime in the area. The color of the heatmap indicates the crime severity and recency.
Metrics Year-on-Year
- Average area value
- 100,833.00 £Decreased by 30.42 %
- Average area rental value
- 877.00 £/moIncreased by 4.40 %
- Est rental Yield
- 10.44 %Increased by 50.00 %
- Crime Rate
- 0.00 %
from 144,919.00 £
from 840.00 £/mo
from 6.96 %
from 0.00 %
Agent Activity
Munro & Noble created the listing.
Images
Nearby Streets
| Name | Average Price | Average Sqft | Distance |
|---|---|---|---|
| Smithfield | £ 0 | 0 | 0.00 KM |
| The Cairns | £ 475,000 | 0 | 0.00 KM |
| Firthview | £ 0 | 0 | 0.00 KM |
| Cocked Hat Wood | £ 0 | 0 | 0.00 KM |
| Schoolcroft | £ 0 | 0 | 0.00 KM |
Nearby Transport
| Name | NLC | TLC | Distance |
|---|---|---|---|
| Dingwall | 8632 | DIN | 9.47 KM |
Nearby Listings
| Address | Price | Type | Score | Distance |
|---|---|---|---|---|
| Land 50m East of Eight Acres, Smithfield, Culbokie | £ 130,000 | BUY | 7 / 10 | 0.00 KM |
| 17 Baluachrach, Culbokie | £ 338,000 | BUY | 7 / 10 | 0.47 KM |
| Cocked Hat Court, Dingwall, IV7 8LF | £ 130,000 | BUY | 6 / 10 | 0.53 KM |
| Cocked Hat Wood, Culbokie, IV7 | £ 240,000 | BUY | 6 / 10 | 0.63 KM |
| Schoolcroft, Culbokie, Dingwall | £ 325,000 | BUY | 6 / 10 | 0.77 KM |