Jack Charles says ..
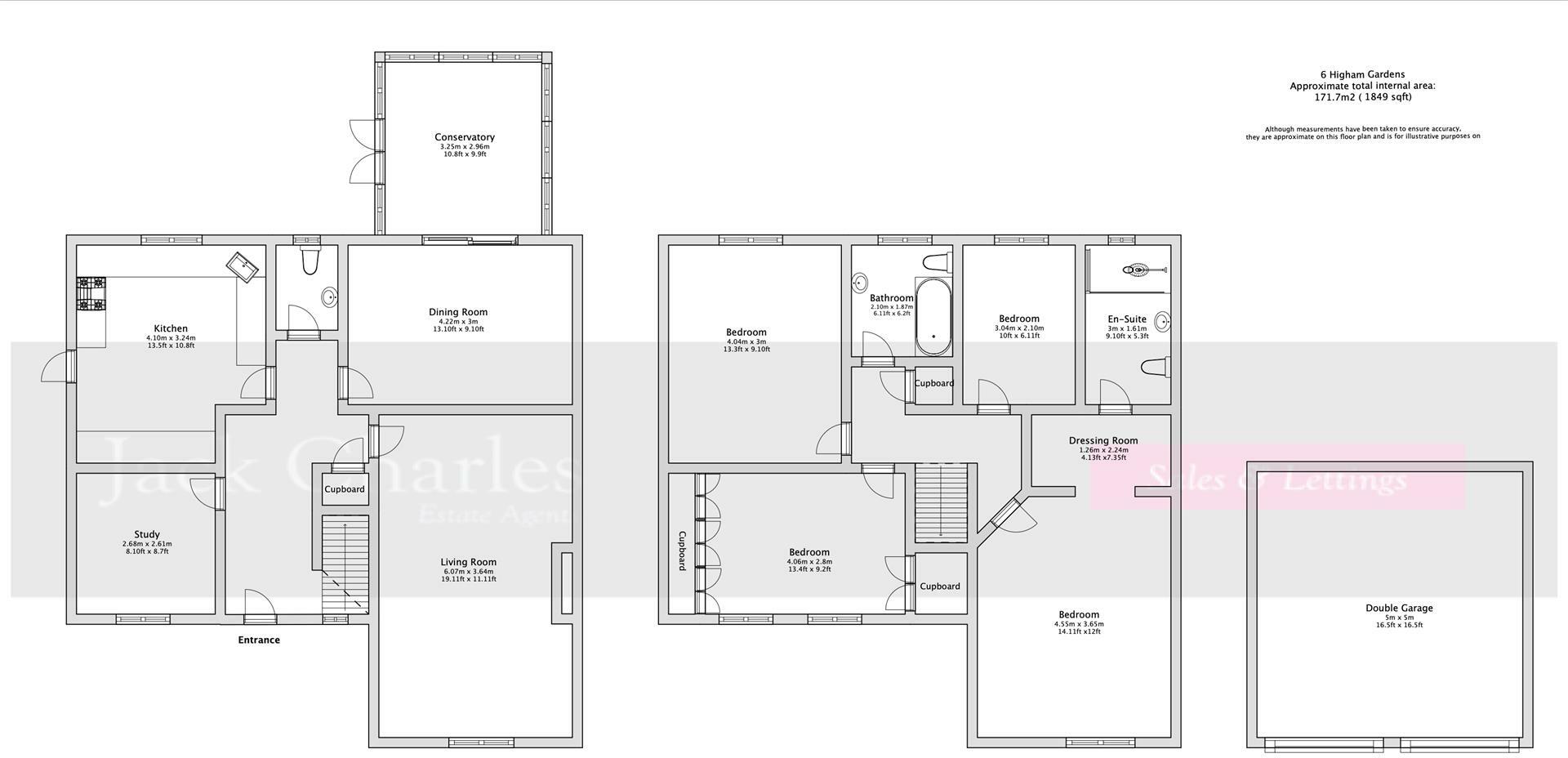
Jack Charles are delighted to offer for sale this attractive four bedroom detached family home situated at the end of a small cul de sac in an extremely desirable area close to the highly sought after Woodlands School catchment area. The property offers a fantastic versatile accommodation throug...
Property Oracle says ..
This is a detached property in Tonbridge, Kent, featuring 4 bedrooms and 2 bathrooms, and spans 1,849 sqft. It includes a well-maintained garden, a modern interior, and an ensuite bathroom. The property is conveniently located near Woodlands Primary School and is approximately 4 KM from Tonbridge station. While the property appears to be in good condition, the listing price of £820,000 seems high compared to the average price per square foot in the area.
Therefore, we give this property 7 / 10. *Disclaimer: This is our option and does constitute a recommendation or financial advice. Do your own research. *
- Price
- 6
- Condition
- 8
- Location
- 7
- Land
- 7
- Bedrooms
- 4
- Bathrooms
- 2
- Sqft (est)
- 1,849.00
The heatmap indicates the level of crime in the area. The color of the heatmap indicates the crime severity and recency.
Metrics Year-on-Year
- Average area value
- 259,821.00 £Increased by 8.05 %
- Est sale value
- 586,133.00 £Increased by 23.83 %
- Average area rental value
- 1,011.00 £/moIncreased by 5.53 %
- Est letting value
- 1,849.00 £/moUnchanged by 0.00 %
- Est rental Yield
- 4.67 %Decreased by 2.30 %
- Crime Rate
- 1.00 %Unchanged by 0.00 %
Agent Activity
Jack Charles created the listing.
Nearby Schools
| Name | Type | Ofsted | Distance |
|---|---|---|---|
| Woodlands Primary School | Community School | Good | 0.74 KM |
| Cage Green Primary School | Academy Sponsor Led | 1.78 KM | |
| Skills For Independence And Employability Ltd | Special Post 16 Institution | 1.87 KM | |
| Hugh Christie School | Foundation School | Good | 2.09 KM |
| Ymca West Kent | Special Post 16 Institution | 2.59 KM |
Images
Nearby Streets
| Name | Average Price | Average Sqft | Distance |
|---|---|---|---|
| Sullivan Road | £ 500,000 | 0 | 0.00 KM |
| Wilson Road | £ 0 | 0 | 0.00 KM |
| Merlin Close | £ 0 | 0 | 0.00 KM |
| Constable Road | £ 0 | 0 | 0.00 KM |
| MU3 | £ 0 | 0 | 0.00 KM |
Nearby Transport
| Name | NLC | TLC | Distance |
|---|---|---|---|
| Tonbridge | 5229 | TON | 3.99 KM |
| High Brooms | 5235 | HIB | 7.44 KM |
| Hildenborough | 5236 | HLB | 8.05 KM |
| Borough Green And Wrotham | 5130 | BRG | 9.04 KM |
Nearby Listings
| Address | Price | Type | Score | Distance |
|---|---|---|---|---|
| Higham Gardens, Tonbridge | £ 650,000 | BUY | 6 / 10 | 0.00 KM |
| Higham Gardens, Tonbridge | £ 820,000 | BUY | 7 / 10 | 0.00 KM |
| Higham Lane, Tonbridge | £ 750,000 | BUY | 6 / 10 | 0.09 KM |
| Higham Lane, Tonbridge, Kent | £ 750,000 | BUY | 6 / 10 | 0.12 KM |
| Frank Woolley Road, Tonbridge, Kent, TN10 | £ 500,000 | BUY | 6 / 10 | 0.12 KM |
Nearby Properties
| Address | Price | Distance |
|---|---|---|
| 6 Higham Gardens | £ 483,500 | 0.01 KM |
| 12 Higham Gardens | £ 398,000 | 0.01 KM |
| 11 Higham Gardens | £ 300,000 | 0.01 KM |
| 2 Higham Gardens | £ 465,000 | 0.01 KM |
| 3 Colin Blythe Road | £ 265,000 | 0.10 KM |