New Road, Begelly, Kilgetty
By West Wales Properties
£ 450,000
Reviews
3 out of 5 stars
West Wales Properties says ..
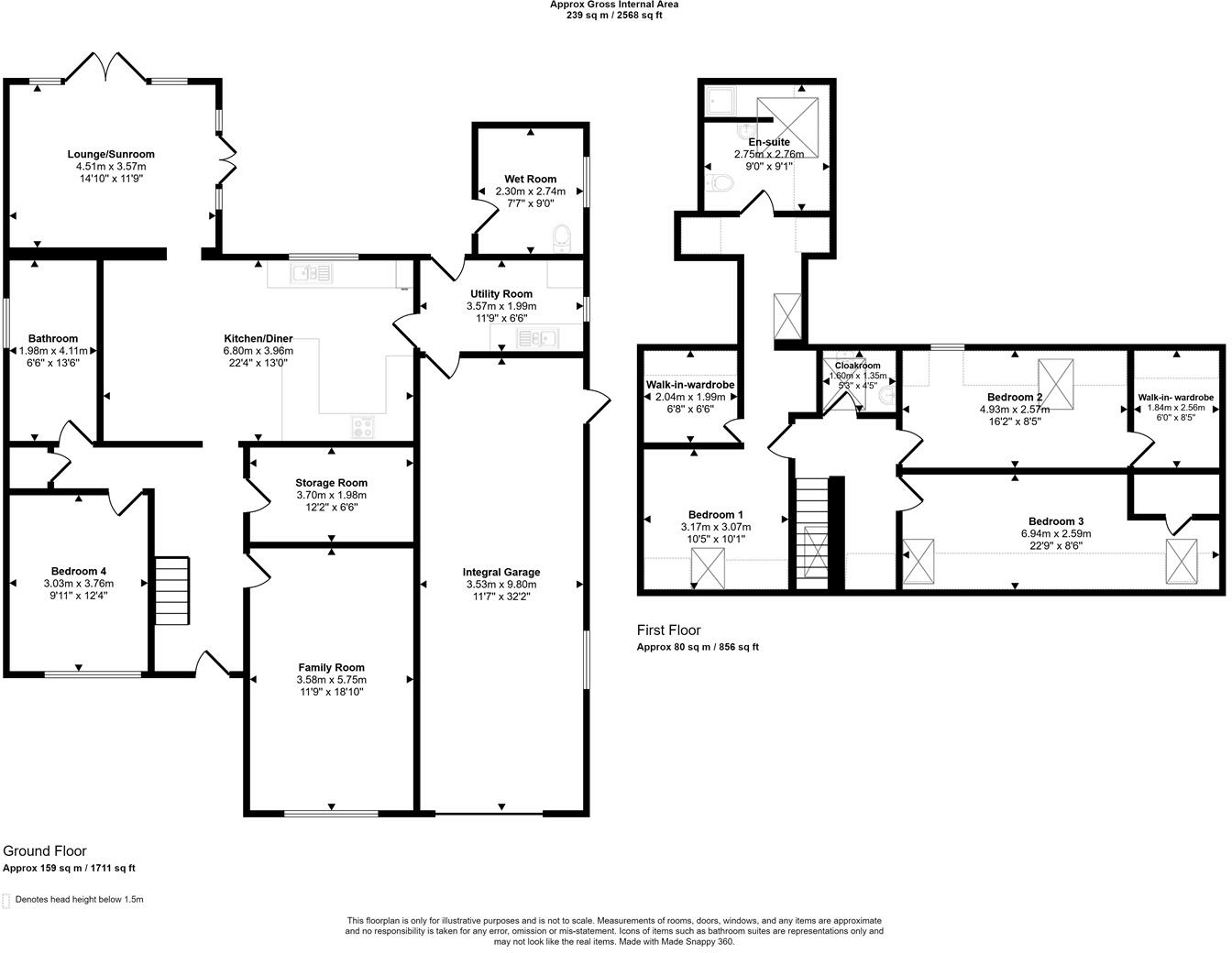
EARLY VIEWING IS HIGHLY RECOMMENDED....... Church View is a substantial detached four bedroom dormer bungalow that also benefits from an Annex, integral double garage, well maintained garden and driveway parking. The property is extremely well presented throughout offering flexible living op...
Property Oracle says ..
This four-bedroom, two-bathroom detached dormer bungalow in Begelly, Pembrokeshire is a substantial family home, presented in excellent condition. The property benefits from a sizable garden, a double garage, and a notable feature – an additional annex or outbuilding. This annex, showcased in the property photos, appears to be a self-contained unit with a bedroom, kitchenette, and bathroom, providing ample potential as a home office, guest accommodation, or rental income generation.
The interior of the main house is presented in a modern style with open-plan living areas providing ample space for comfortable living. The kitchen and bathrooms appear recently updated and well-maintained, and the bedrooms offer adequate space and storage. The overall impression is one of a move-in ready family home. The property has external storage and a good-sized garden area with space for children’s play equipment, enhancing its appeal to families. Its location is advantageous due to relatively close proximity to Kilgetty and Saundersfoot, providing easy access to essential amenities and railway transport connections. Although precise square footage of the plot and annex are absent, the images suggest a generous amount of outdoor space. The presence of nearby schools, though needing further investigation on Ofsted ratings, adds to the property’s desirability for families.
The lack of precise square footage data for similar properties in the area makes a definitive statement on price-per-square-foot comparisons challenging. While some properties in the area may command a higher price due to unique features or coastal views, the asking price appears justifiable based on the house’s size, condition, and the presence of the annex, making this a strong contender within the market for the region. Potential buyers should conduct thorough research and independent valuations to form their conclusion.
Therefore, we give this property 7 / 10. *Disclaimer: This is our option and does constitute a recommendation or financial advice. Do your own research. *
- Price
- 7
- Condition
- 8
- Location
- 7
- Land
- 7
- Bedrooms
- 4
- Bathrooms
- 2
- Sqft (est)
- 2,568.00
The heatmap indicates the level of crime in the area. The color of the heatmap indicates the crime severity and recency.
Metrics Year-on-Year
- Average area value
- 278,905.00 £Increased by 2.67 %
- Est sale value
- 706,200.00 £Increased by 50.27 %
- Average area rental value
- 800.00 £/moDecreased by 34.53 %
- Est letting value
- 0.00 £/mo
- Est rental Yield
- 3.44 %Decreased by 36.30 %
- Crime Rate
- 17.00 %Unchanged by 0.00 %
Agent Activity
West Wales Properties created the listing.
Nearby Schools
| Name | Type | Ofsted | Distance |
|---|---|---|---|
| Stepaside C.P. School | Welsh Establishment | 1.75 KM | |
| Saundersfoot C.P. School | Welsh Establishment | 3.50 KM | |
| Templeton C.P. School | Welsh Establishment | 5.10 KM | |
| The Greenhill School | Welsh Establishment | 6.57 KM | |
| St Teilos V.R.C. School | Welsh Establishment | 6.74 KM |
Images
Nearby Streets
| Name | Average Price | Average Sqft | Distance |
|---|---|---|---|
| New Road | £ 423,750 | 0 | 0.00 KM |
| Pen-y-Bryn | £ 390,000 | 0 | 0.00 KM |
| Newton Terrace | £ 0 | 0 | 0.00 KM |
| Woodfield Avenue | £ 0 | 0 | 0.00 KM |
| Saint Mary's Place | £ 0 | 0 | 0.00 KM |
Nearby Transport
| Name | NLC | TLC | Distance |
|---|---|---|---|
| Kilgetty | 4083 | KGT | 1.33 KM |
| Saundersfoot | 4108 | SDF | 1.50 KM |
| Tenby | 4110 | TEN | 6.79 KM |
| Narberth | 4098 | NAR | 7.62 KM |
| Penally | 4129 | PNA | 7.98 KM |
Nearby Listings
| Address | Price | Type | Score | Distance |
|---|---|---|---|---|
| New Road, Begelly, Kilgetty | £ 450,000 | BUY | 7 / 10 | 0.00 KM |
| Church Close, Begelly, Kilgetty | £ 459,950 | BUY | 7 / 10 | 0.11 KM |
| Begelly | £ 225,000 | BUY | Unknown | 0.12 KM |
| Begelly | £ 225,000 | BUY | Unknown | 0.12 KM |
| Church Close, Begelly, Kilgetty | £ 350,000 | BUY | 6 / 10 | 0.15 KM |
Nearby Properties
| Address | Price | Distance |
|---|---|---|
| Bluebell Cottage | £ 143,500 | 0.04 KM |
| Beeston Tor | £ 189,950 | 0.04 KM |
| Kefalos | £ 199,950 | 0.04 KM |
| Bryn Teg | £ 170,000 | 0.04 KM |
| Melrose | £ 399,950 | 0.04 KM |