72 South Road, Kirkby Stephen, Cumbria
By H&H Land & Estates
£ 225,000
Reviews
3 out of 5 stars
H&H Land & Estates says ..
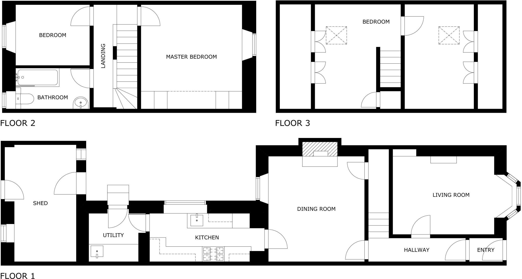
Located on the fringe of this popular Eden Valley market town, within easy walking distance of a wide range of amenities and local schools, a well presented, traditional stone built, 2 reception, 3 bedrooms mid-terrace townhouse, with flexible accommodation and nearby garage. Local occupancy applies
Property Oracle says ..
Therefore, we give this property 6 / 10. *Disclaimer: This is our option and does constitute a recommendation or financial advice. Do your own research. *
- Price
- 9
- Condition
- 5
- Location
- 7
- Land
- 4
- Bedrooms
- 3
- Bathrooms
- 1
- Sqft (est)
- 1,129.00
The heatmap indicates the level of crime in the area. The color of the heatmap indicates the crime severity and recency.
Metrics Year-on-Year
- Average area value
- 722,194.00 £Increased by 1.02 %
- Est sale value
- 528,372.00 £Increased by 2.63 %
- Average area rental value
- 2,810.00 £/moDecreased by 41.46 %
- Est letting value
- 1,129.00 £/moDecreased by 66.67 %
- Est rental Yield
- 4.67 %Decreased by 42.06 %
- Crime Rate
- 28.00 %Unchanged by 0.00 %
from 714,889.00 £
from 514,824.00 £
from 4,800.00 £/mo
from 3,387.00 £/mo
from 8.06 %
from 28.00 %
Agent Activity
H&H Land & Estates created the listing.
Nearby Schools
| Name | Type | Ofsted | Distance |
|---|---|---|---|
| Kirkby Stephen Primary School | Community School | Good | 1.01 KM |
| Kirkby Stephen Grammar School | Academy Converter | Good | 1.06 KM |
| Brough Community Primary School | Community School | Good | 7.53 KM |
| Warcop Cofe Primary School | Voluntary Aided School | Good | 9.12 KM |
Images
Nearby Streets
| Name | Average Price | Average Sqft | Distance |
|---|---|---|---|
| Elderberry Drive | £ 0 | 0 | 0.00 KM |
| Charter Gardens | £ 350,000 | 0 | 0.00 KM |
| Silver Street | £ 0 | 0 | 0.00 KM |
| Charter Gardens | £ 285,000 | 0 | 0.00 KM |
| Saint Lukes Road | £ 216,225 | 0 | 0.00 KM |
Nearby Transport
| Name | NLC | TLC | Distance |
|---|---|---|---|
| Kirkby Stephen | 2057 | KSW | 1.93 KM |
Nearby Listings
| Address | Price | Type | Score | Distance |
|---|---|---|---|---|
| 72 South Road, Kirkby Stephen, Cumbria | £ 225,000 | BUY | 6 / 10 | 0.00 KM |
| Croglam Park, Kirkby Stephen, Cumbria, CA17 | £ 275,000 | BUY | 7 / 10 | 0.05 KM |
| South Road, Kirkby Stephen | £ 205,000 | BUY | 7 / 10 | 0.06 KM |
| Park Terrace, Kirkby Stephen, Cumbria, CA17 | £ 175,000 | BUY | Unknown | 0.10 KM |
| Croglam Park, Kirkby Stephen | £ 395,000 | BUY | 6 / 10 | 0.10 KM |
Nearby Properties
| Address | Price | Distance |
|---|---|---|
| 31 South Road | £ 175,000 | 0.06 KM |
| 33 South Road | £ 267,000 | 0.06 KM |
| 100 South Road | £ 158,000 | 0.06 KM |
| 86 South Road | £ 149,000 | 0.06 KM |
| 74 South Road | £ 125,000 | 0.06 KM |