Park Move says ..
LUXURY RETIREMENT BUNGALOWS FOR SALE Choose from our range of residential park homes for sale, or if you prefer your bespoke retirement home can be manufactured to your exact specifications by the UK’s leading manufacturers.
Property Oracle says ..
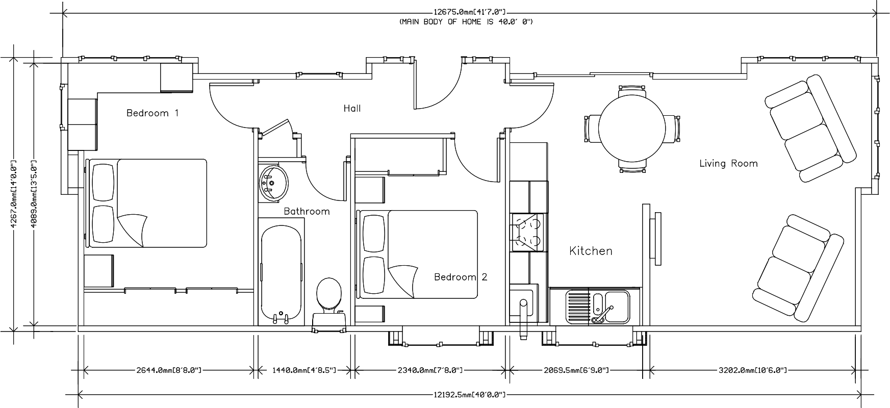
This is a well-presented park home located in the popular residential area of Cheadle Hulme. The property benefits from its proximity to good schools and transport links. The interior is modern and well-maintained, making it a desirable option for those seeking a ready-to-move-in home. While the plot size may be limited, the property offers access to a garden and is situated within a residential park.
Therefore, we give this property 7 / 10. *Disclaimer: This is our option and does constitute a recommendation or financial advice. Do your own research. *
- Price
- 7
- Condition
- 9
- Location
- 7
- Land
- 6
- Bedrooms
- 2
- Bathrooms
- 0
The heatmap indicates the level of crime in the area. The color of the heatmap indicates the crime severity and recency.
Metrics Year-on-Year
- Average area value
- 477,778.00 £Increased by 2.41 %
- Average area rental value
- 1,198.00 £/moDecreased by 27.92 %
- Est rental Yield
- 3.01 %Decreased by 29.51 %
- Crime Rate
- 3.00 %Unchanged by 0.00 %
Agent Activity
Park Move created the listing.
Nearby Schools
| Name | Type | Ofsted | Distance |
|---|---|---|---|
| Thorn Grove Primary School | Community School | Good | 0.94 KM |
| St James' Catholic High School | Voluntary Aided School | Good | 1.09 KM |
| Cheadle Hulme High School | Academy Converter | Outstanding | 1.25 KM |
| Valley School | Community Special School | Outstanding | 1.28 KM |
| Hursthead Infant School | Community School | Outstanding | 1.40 KM |
Images
Nearby Streets
| Name | Average Price | Average Sqft | Distance |
|---|---|---|---|
| May Avenue | £ 0 | 0 | 0.00 KM |
| Dairy House Lane | £ 0 | 0 | 0.00 KM |
| Manchester Airport Eastern Link Road | £ 0 | 0 | 0.00 KM |
| Cherwell Close | £ 415,000 | 0 | 0.00 KM |
| Church Road | £ 340,000 | 0 | 0.00 KM |
Nearby Transport
| Name | NLC | TLC | Distance |
|---|---|---|---|
| Cheadle Hulme | 2870 | CHU | 2.48 KM |
| Handforth | 2767 | HTH | 2.67 KM |
| Bramhall | 2944 | BML | 3.08 KM |
| Wilmslow | 2774 | WML | 4.95 KM |
| Heald Green | 2860 | HDG | 5.38 KM |
Nearby Listings
| Address | Price | Type | Score | Distance |
|---|---|---|---|---|
| Cheadle Hulme, Cheadle, SK8 7NN | £ 295,000 | BUY | 7 / 10 | 0.00 KM |
| Cheadle Hulme, Cheadle, SK8 7NN | £ 199,995 | BUY | Unknown | 0.00 KM |
| Cheadle Hulme, Cheadle, SK8 7NN | £ 294,995 | BUY | Unknown | 0.00 KM |
| Cheadle Hulme, Cheadle, SK8 7NN | £ 249,995 | BUY | 7 / 10 | 0.00 KM |
| Cheadle Hulme, Cheadle, SK8 7NN | £ 225,000 | BUY | 7 / 10 | 0.00 KM |
Nearby Properties
| Address | Price | Distance |
|---|---|---|
| Longacre | £ 460,000 | 0.42 KM |
| 8 Ripley Avenue | £ 380,000 | 0.42 KM |
| 12 Ripley Avenue | £ 350,000 | 0.42 KM |
| 4 Ripley Avenue | £ 280,000 | 0.42 KM |
| 10 Ripley Avenue | £ 297,335 | 0.42 KM |