Manor Road, Eckington, Pershore, WR10
By Engall Castle
£ 450,000
Reviews
3 out of 5 stars
Engall Castle says ..
Beautifully updated and presented, this link detached home is lovely
Property Oracle says ..
This is a well-presented, modern link-detached house in the village of Eckington. The property benefits from a good-sized garden and is within walking distance of the local primary school. While the price is above the average for the area, the property is larger than average and in good condition. The nearby train stations provide good transport links.
Therefore, we give this property 7 / 10. *Disclaimer: This is our option and does constitute a recommendation or financial advice. Do your own research. *
- Price
- 7
- Condition
- 8
- Location
- 7
- Land
- 7
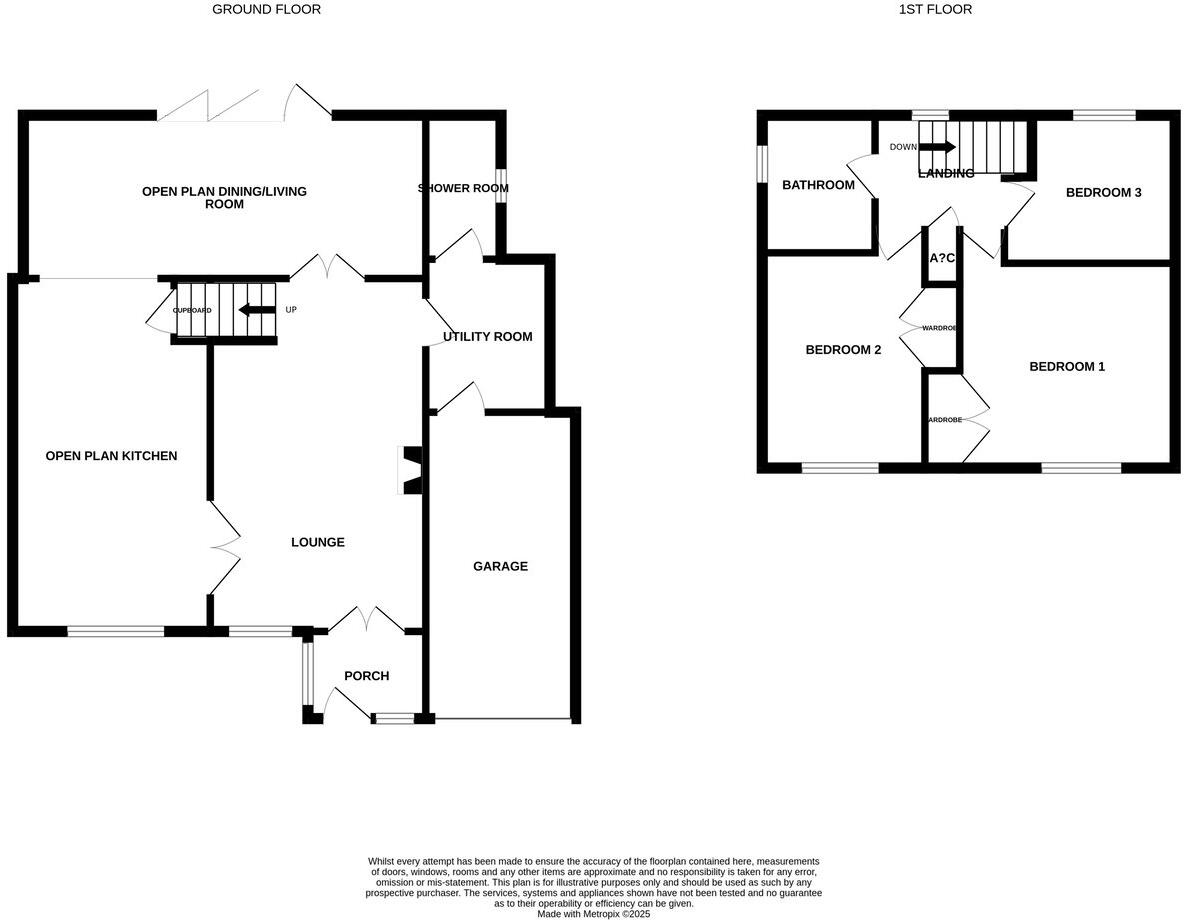
- Bedrooms
- 3
- Bathrooms
- 2
- Sqft (est)
- 1,295.00
The heatmap indicates the level of crime in the area. The color of the heatmap indicates the crime severity and recency.
Metrics Year-on-Year
- Average area value
- 228,000.00 £Increased by 7.96 %
- Est sale value
- 287,490.00 £Increased by 48.00 %
- Average area rental value
- 776.00 £/moDecreased by 23.55 %
- Est letting value
- 0.00 £/mo
- Est rental Yield
- 4.08 %Decreased by 29.29 %
- Crime Rate
- 0.00 %
Agent Activity
Engall Castle created the listing.
Nearby Schools
| Name | Type | Ofsted | Distance |
|---|---|---|---|
| Eckington Cofe First School | Voluntary Controlled School | Good | 0.95 KM |
| Defford-Cum-Besford Cofe School | Voluntary Controlled School | Good | 1.98 KM |
| Bredon Hancock'S Endowed Cofe First School | Voluntary Aided School | Outstanding | 4.41 KM |
| Twyning School | Community School | Good | 5.51 KM |
| Abbey Park First And Nursery School | Community School | Good | 6.14 KM |
Images
Nearby Streets
| Name | Average Price | Average Sqft | Distance |
|---|---|---|---|
| Pudding Alley | £ 0 | 0 | 0.00 KM |
| Damson View | £ 655,000 | 0 | 0.00 KM |
| Drakesbridge Road | £ 0 | 0 | 0.00 KM |
| Spring Bank | £ 0 | 0 | 0.00 KM |
| Mill Lane | £ 0 | 0 | 0.00 KM |
Nearby Transport
| Name | NLC | TLC | Distance |
|---|---|---|---|
| Ashchurch For Tewkesbury | 4700 | ASC | 8.11 KM |
| Pershore | 4887 | PSH | 8.53 KM |
Nearby Listings
| Address | Price | Type | Score | Distance |
|---|---|---|---|---|
| Manor Road, Eckington, Pershore, WR10 | £ 450,000 | BUY | 7 / 10 | 0.00 KM |
| Manor Road, Eckington | £ 625,000 | BUY | 6 / 10 | 0.15 KM |
| Hammock Road, Eckington, Pershore, Worcestershire | £ 595,000 | BUY | Unknown | 0.19 KM |
| Boon Street, Eckington, WR10 | £ 650,000 | BUY | 6 / 10 | 0.19 KM |
| Boon Street, Eckington, WR10 | £ 750,000 | BUY | 7 / 10 | 0.23 KM |
Nearby Properties
| Address | Price | Distance |
|---|---|---|
| Westering | £ 200,000 | 0.15 KM |
| Russetts | £ 405,000 | 0.15 KM |
| Stone End | £ 289,000 | 0.15 KM |
| Court Gate Cottage | £ 525,000 | 0.15 KM |
| Cherry Tree Corner | £ 360,000 | 0.15 KM |