Henry Adams says ..
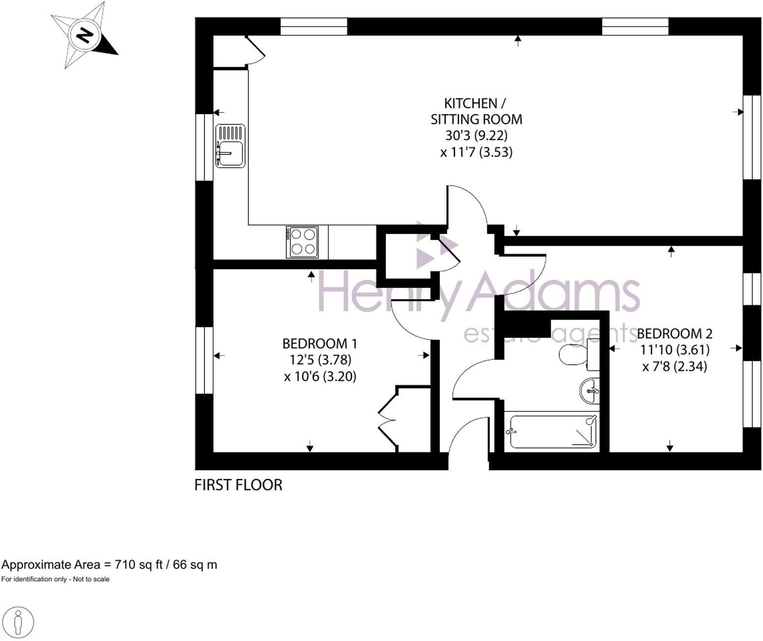
VACANT POSSESSION. A delightful light and spacious FIRST FLOOR APARTMENT. 30' kitchen/sitting room, TWO BEDROOMS, bathroom, ALLOCATED PARKING SPACE. EPC-B
Property Oracle says ..
This is a modern two-bedroom flat in Tangmere, near Chichester. The property is in good condition and includes a garden, which is a significant benefit. The location offers proximity to schools and transport links, making it suitable for families or commuters. The price appears competitive compared to the average price per square foot in the area.
Therefore, we give this property 7 / 10. *Disclaimer: This is our option and does constitute a recommendation or financial advice. Do your own research. *
- Price
- 8
- Condition
- 8
- Location
- 7
- Land
- 7
- Bedrooms
- 2
- Bathrooms
- 1
- Sqft (est)
- 710.00
The heatmap indicates the level of crime in the area. The color of the heatmap indicates the crime severity and recency.
Metrics Year-on-Year
- Average area value
- 508,125.00 £Increased by 2.57 %
- Est sale value
- 325,890.00 £Decreased by 2.75 %
- Average area rental value
- 1,813.00 £/moIncreased by 17.27 %
- Est letting value
- 710.00 £/moUnchanged by 0.00 %
- Est rental Yield
- 4.28 %Increased by 14.44 %
- Crime Rate
- 35.00 %Unchanged by 0.00 %
Agent Activity
Henry Adams created the listing.
Nearby Schools
| Name | Type | Ofsted | Distance |
|---|---|---|---|
| Chichester Children & Family Centre (The Hive, Tangmere) | Children's Centre Linked Site | 0.49 KM | |
| Tangmere Primary Academy | Academy Sponsor Led | Good | 0.55 KM |
| Boxgrove Cofe Primary School | Voluntary Controlled School | Good | 1.27 KM |
| Westbourne House School | Other Independent School | 2.97 KM | |
| The March Cofe Primary School | Academy Converter | 3.87 KM |
Images
Nearby Streets
| Name | Average Price | Average Sqft | Distance |
|---|---|---|---|
| Priory Close | £ 625,000 | 0 | 0.00 KM |
| Mannock Road | £ 350,000 | 0 | 0.00 KM |
| The Close | £ 795,000 | 0 | 0.00 KM |
| Stoneypost Close | £ 0 | 0 | 0.00 KM |
| Park Lane | £ 695,000 | 0 | 0.00 KM |
Nearby Transport
| Name | NLC | TLC | Distance |
|---|---|---|---|
| Chichester | 5255 | CCH | 7.69 KM |
| Bognor Regis | 5253 | BOG | 8.15 KM |
| Barnham | 5252 | BAA | 8.51 KM |
Nearby Listings
| Address | Price | Type | Score | Distance |
|---|---|---|---|---|
| Hangar Drive, Tangmere, PO20 | £ 237,500 | BUY | 7 / 10 | 0.00 KM |
| Hangar Drive, Tangmere, PO20 | £ 295,000 | BUY | 7 / 10 | 0.06 KM |
| Hangar Drive, Tangmere, Chichester, West Sussex, PO20 | £ 205,000 | BUY | 5 / 10 | 0.06 KM |
| Hangar Drive, Tangmere, Chichester | £ 475,000 | BUY | 7 / 10 | 0.10 KM |
| Chichester Drive Tangmere | £ 325,000 | BUY | 7 / 10 | 0.12 KM |
Nearby Properties
| Address | Price | Distance |
|---|---|---|
| 4 Whitebeam Way | £ 110,000 | 0.12 KM |
| 1 Whitebeam Way | £ 220,000 | 0.12 KM |
| 8 Whitebeam Way | £ 95,000 | 0.12 KM |
| 6 Whitebeam Way | £ 190,000 | 0.12 KM |
| 10 Whitebeam Way | £ 159,950 | 0.12 KM |