Pitt Street, Macclesfield
By Gascoigne Halman
£ 240,000
Reviews
3 out of 5 stars
Gascoigne Halman says ..
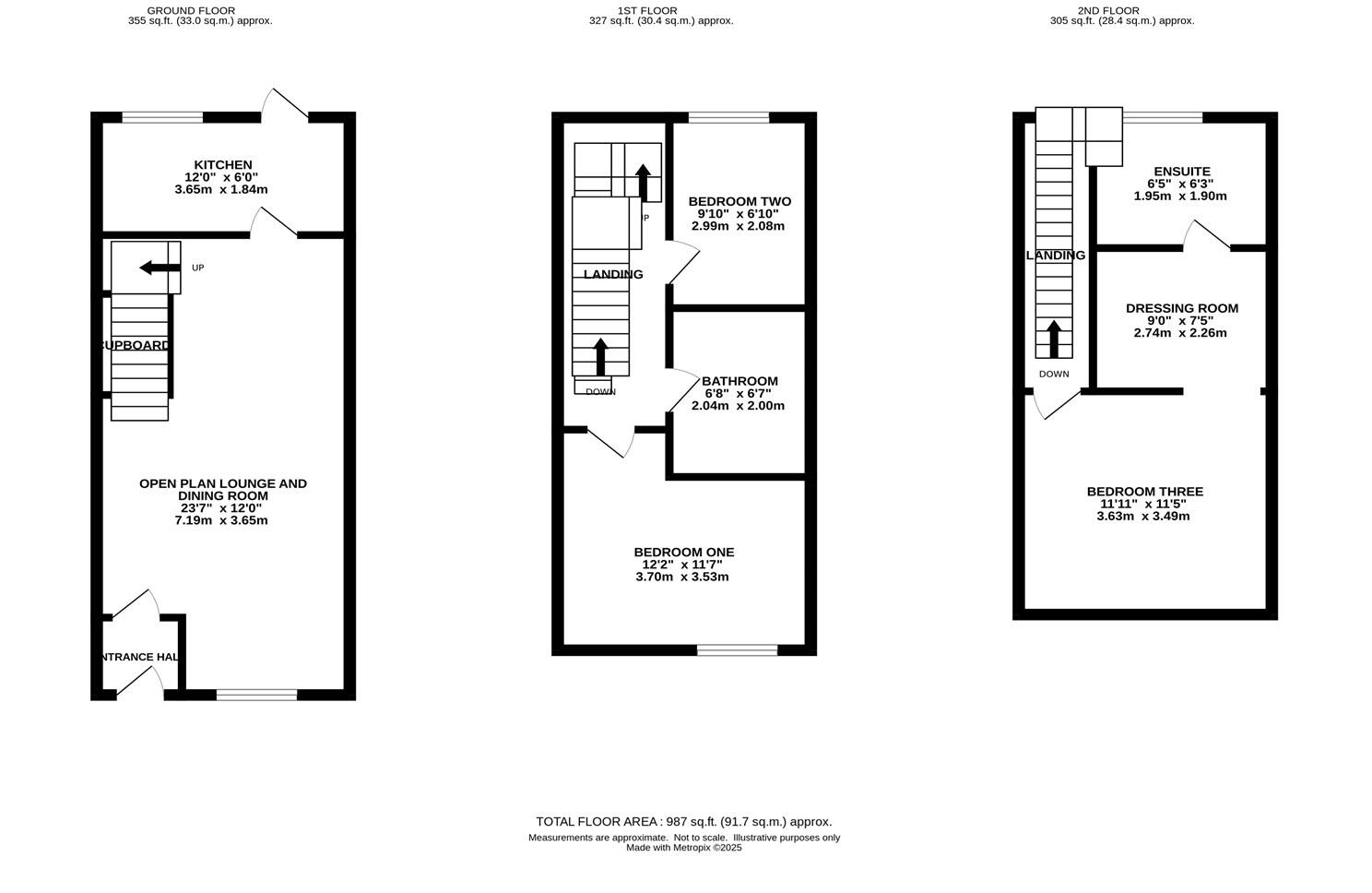
A great size well presented three bedroom two bathroom Weavers cottage with accommodation over three floors. Private rear yard and a great location close to the Town Centre.
Property Oracle says ..
The property is a well-presented 3 bedroom, 2 bathroom terraced house in Macclesfield. It appears to be in good condition with modern fixtures and fittings. The location is convenient, with good transport links and schools nearby. The list price is below the average for the area, potentially representing good value, however, further comparable evidence is needed to confirm this. The small rear yard is a positive feature.
Therefore, we give this property 6 / 10. *Disclaimer: This is our option and does constitute a recommendation or financial advice. Do your own research. *
- Price
- 7
- Condition
- 8
- Location
- 7
- Land
- 3
- Bedrooms
- 3
- Bathrooms
- 2
- Sqft (est)
- 987.00
The heatmap indicates the level of crime in the area. The color of the heatmap indicates the crime severity and recency.
Metrics Year-on-Year
- Average area value
- 296,738.00 £Increased by 1.41 %
- Est sale value
- 365,190.00 £Increased by 42.31 %
- Average area rental value
- 988.00 £/moIncreased by 25.38 %
- Est letting value
- 987.00 £/mo
- Est rental Yield
- 4.00 %Increased by 23.84 %
- Crime Rate
- 16.00 %Unchanged by 0.00 %
Agent Activity
Gascoigne Halman created the listing.
Nearby Schools
| Name | Type | Ofsted | Distance |
|---|---|---|---|
| Christ The King Catholic And Church Of England Primary School | Academy Sponsor Led | 1.03 KM | |
| Ash Grove Children'S Centre | Children's Centre | 1.38 KM | |
| Puss Bank School And Nursery | Academy Converter | 1.38 KM | |
| Ash Grove Academy | Academy Converter | 1.39 KM | |
| Parkroyal Community School | Academy Converter | Good | 1.54 KM |
Images
Nearby Streets
| Name | Average Price | Average Sqft | Distance |
|---|---|---|---|
| Mill Road | £ 0 | 0 | 0.00 KM |
| Smith Street | £ 0 | 0 | 0.00 KM |
| Harpur Close | £ 0 | 0 | 0.00 KM |
| A536 | £ 0 | 0 | 0.00 KM |
| Grapes Street | £ 0 | 0 | 0.00 KM |
Nearby Transport
| Name | NLC | TLC | Distance |
|---|---|---|---|
| Macclesfield | 2871 | MAC | 0.89 KM |
| Prestbury | 2875 | PRB | 5.40 KM |
| Adlington (Cheshire) | 2939 | ADC | 7.71 KM |
Nearby Listings
| Address | Price | Type | Score | Distance |
|---|---|---|---|---|
| Pitt Street, Macclesfield | £ 240,000 | BUY | 6 / 10 | 0.00 KM |
| Coronation Street, Macclesfield | £ 149,950 | BUY | 7 / 10 | 0.04 KM |
| Cross Street, Macclesfield, Cheshire, SK11 | £ 220,000 | BUY | 5 / 10 | 0.06 KM |
| 39 Coronation Street, Macclesfield, Cheshire, SK11 7PQ | £ 80,000 | BUY | 5 / 10 | 0.07 KM |
| Old Mill Lane, Macclesfield | £ 190,000 | BUY | 7 / 10 | 0.07 KM |
Nearby Properties
| Address | Price | Distance |
|---|---|---|
| 23 Old Mill Lane | £ 114,000 | 0.04 KM |
| 42 Old Mill Lane | £ 198,500 | 0.04 KM |
| 18 Old Mill Lane | £ 115,000 | 0.04 KM |
| 24 Old Mill Lane | £ 122,000 | 0.04 KM |
| 20 Old Mill Lane | £ 74,750 | 0.04 KM |