Martin & Co says ..
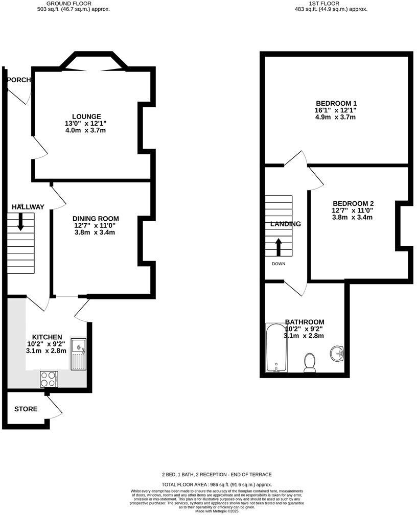
This two-bedroom end-of-terrace house on Ash Road, Aldershot, offers great potential. With spacious rooms, a large bathroom, and a generous rear garden (with parking potential), it’s perfect for personalisation. Though in need of modernisation, its prime location near amenities and transport link...
Property Oracle says ..
This is a two-bedroom house on Ash Road in Aldershot. The property requires extensive renovation throughout. While the location offers reasonable access to schools, transportation, and local amenities, the property’s condition significantly impacts its appeal. The garden offers potential, but requires landscaping. The asking price of £180,000 reflects the condition of the property and offers an opportunity for buyers willing to undertake a renovation project. The property is listed with Martin & Co.
Therefore, we give this property 5 / 10. *Disclaimer: This is our option and does constitute a recommendation or financial advice. Do your own research. *
- Price
- 8
- Condition
- 3
- Location
- 6
- Land
- 6
- Bedrooms
- 2
- Bathrooms
- 1
- Sqft (est)
- 816.00
The heatmap indicates the level of crime in the area. The color of the heatmap indicates the crime severity and recency.
Metrics Year-on-Year
- Average area value
- 250,000.00 £Increased by 29.42 %
- Est sale value
- 243,984.00 £Increased by 32.89 %
- Average area rental value
- 833.00 £/moDecreased by 23.08 %
- Est letting value
- 0.00 £/moDecreased by 100.00 %
- Est rental Yield
- 4.00 %Decreased by 40.56 %
- Crime Rate
- 6.00 %Unchanged by 0.00 %
Agent Activity
Martin & Co created the listing.
Nearby Schools
| Name | Type | Ofsted | Distance |
|---|---|---|---|
| Maple Vue Children'S Centre | Children's Centre | 0.73 KM | |
| Alderwood School | Community School | Good | 0.78 KM |
| St Michael'S Church Of England Controlled Junior School | Voluntary Controlled School | Requires improvement | 0.87 KM |
| Park Primary School | Community School | Good | 0.89 KM |
| Sunflowers Children'S Centre | Children's Centre Linked Site | 1.04 KM |
Images
Nearby Streets
| Name | Average Price | Average Sqft | Distance |
|---|---|---|---|
| Hop Kiln Villas | £ 0 | 0 | 0.00 KM |
| Needhams Place | £ 0 | 0 | 0.00 KM |
| Orchard Way | £ 400,000 | 0 | 0.00 KM |
| Newport Road | £ 307,778 | 0 | 0.00 KM |
| St Marys Close | £ 0 | 0 | 0.00 KM |
Nearby Transport
| Name | NLC | TLC | Distance |
|---|---|---|---|
| Aldershot | 5623 | AHT | 1.54 KM |
| Ash | 5641 | ASH | 3.84 KM |
| North Camp | 5636 | NCM | 4.13 KM |
| Ash Vale | 5547 | AHV | 4.35 KM |
| Farnham | 5545 | FNH | 6.07 KM |
Nearby Listings
| Address | Price | Type | Score | Distance |
|---|---|---|---|---|
| Ash Road, Aldershot | £ 180,000 | BUY | 5 / 10 | 0.00 KM |
| Ash Road, Aldershot, Hampshire, GU12 | £ 415,000 | BUY | 7 / 10 | 0.05 KM |
| Ash Road, Aldershot, Hampshire | £ 350,000 | BUY | 7 / 10 | 0.05 KM |
| Ash Road, Aldershot, Hampshire, GU12 | £ 260,000 | BUY | Unknown | 0.06 KM |
| Ash Road, Aldershot, Hampshire, GU12 | £ 400,000 | BUY | 6 / 10 | 0.06 KM |
Nearby Properties
| Address | Price | Distance |
|---|---|---|
| 83a Ash Road | £ 128,950 | 0.03 KM |
| 85 Ash Road | £ 400,000 | 0.03 KM |
| 105 Ash Road | £ 161,000 | 0.03 KM |
| 79a Ash Road | £ 144,000 | 0.04 KM |
| 95 Ash Road | £ 325,000 | 0.04 KM |