Old Mill Chase, Wethersfield, Braintree, CM7
By Michaels Property Consultants Ltd
£ 230,000
Reviews
2 out of 5 stars
Michaels Property Consultants Ltd says ..
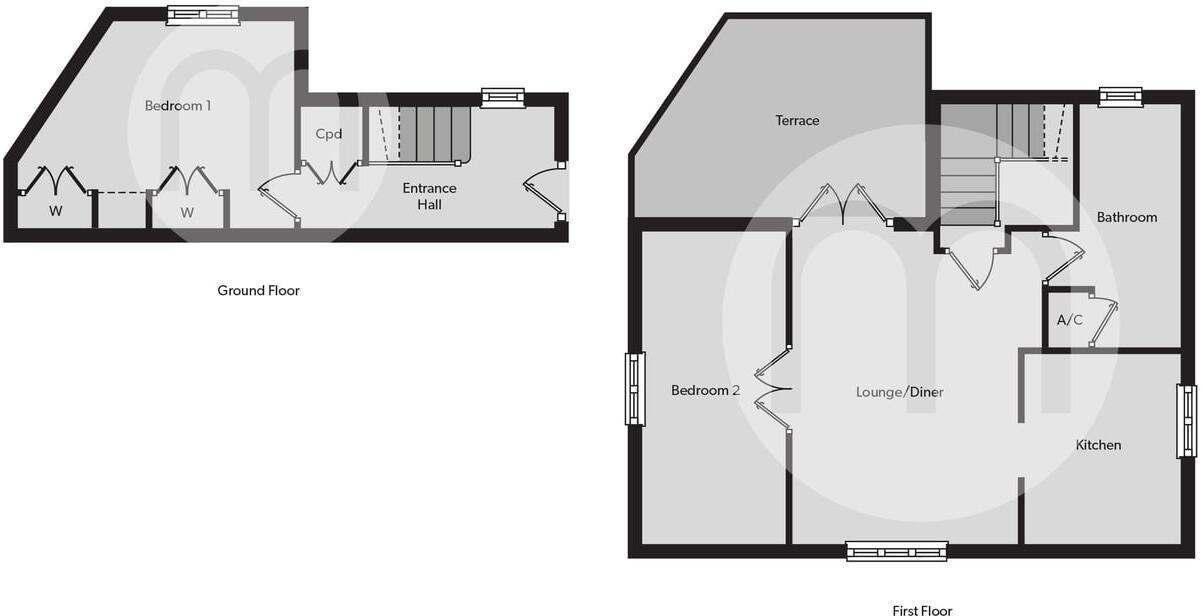
Michaels Property Consultants are delighted to present to the market this deceptively spacious two bedroom coach house, which we feel would benefit from a schedule of refurbishment, lending itself perfectly to a purchaser wanting to add their own stamp. Occupying a tranquil Cul-de-sac position...
Property Oracle says ..
This property is a coach house located in Wethersfield, Essex. It benefits from being close to Wethersfield Cofe Vc Primary School (0.15 KM away), which is rated as good by Ofsted. The property itself is a two-bedroom, one-bathroom coach house with a total area of 745 sqft. The asking price is £230,000. While the property includes a small garden, the images suggest it is in need of some modernisation and updating. The kitchen appears to be in need of some repair and the overall condition of the property seems to be below average for the area. Compared to other properties in the area, the price per sqft is significantly lower than the average of £423. However, the average house price in the area is substantially higher at £744,025, suggesting that this property is priced competitively, considering its size and condition. The lack of information regarding plot size and the condition of the property makes a definitive statement about value difficult.
Therefore, we give this property 5 / 10. *Disclaimer: This is our option and does constitute a recommendation or financial advice. Do your own research. *
- Price
- 7
- Condition
- 4
- Location
- 7
- Land
- 2
- Bedrooms
- 2
- Bathrooms
- 1
- Sqft (est)
- 745.00
The heatmap indicates the level of crime in the area. The color of the heatmap indicates the crime severity and recency.
Metrics Year-on-Year
- Average area value
- 503,333.00 £Decreased by 23.15 %
- Est sale value
- 337,485.00 £Increased by 61.21 %
- Average area rental value
- 2,825.00 £/moIncreased by 41.25 %
- Est letting value
- 1,490.00 £/mo
- Est rental Yield
- 6.74 %Increased by 84.15 %
- Crime Rate
- 19.00 %Unchanged by 0.00 %
Agent Activity
Michaels Property Consultants Ltd created the listing.
Nearby Schools
| Name | Type | Ofsted | Distance |
|---|---|---|---|
| Wethersfield Cofe Vc Primary School | Voluntary Controlled School | Good | 0.15 KM |
| Shalford Primary School | Academy Sponsor Led | Good | 3.68 KM |
| Finchingfield St John The Baptist Cofe Primary Academy | Academy Converter | 3.94 KM | |
| Great Bardfield Primary School | Community School | Good | 5.31 KM |
| St Margaret'S Church Of England Voluntary Controlled Primary School Toppesfield | Voluntary Controlled School | Good | 7.96 KM |
Images
Nearby Streets
| Name | Average Price | Average Sqft | Distance |
|---|---|---|---|
| West Drive | £ 0 | 0 | 0.00 KM |
| Hudson's Hill | £ 0 | 0 | 0.00 KM |
| Lombard Street | £ 625,000 | 0 | 0.00 KM |
| Redfants Farm Road | £ 0 | 0 | 0.00 KM |
Nearby Listings
| Address | Price | Type | Score | Distance |
|---|---|---|---|---|
| Old Mill Chase, Wethersfield, Braintree, CM7 | £ 230,000 | BUY | 5 / 10 | 0.00 KM |
| Silver Street, Wethersfield, Braintree, CM7 | £ 475,000 | BUY | 5 / 10 | 0.03 KM |
| Silver Street, Wethersfield, CM7 | £ 400,000 | BUY | Unknown | 0.10 KM |
| West Drive, Wethersfield, Braintree | £ 425,000 | BUY | 6 / 10 | 0.14 KM |
| Saffron Gardens, Wethersfield, Braintree | £ 400,000 | BUY | 7 / 10 | 0.17 KM |
Nearby Properties
| Address | Price | Distance |
|---|---|---|
| 6 Old Mill Chase | £ 60,000 | 0.01 KM |
| 2 Old Mill Chase | £ 217,500 | 0.01 KM |
| 4 Old Mill Chase | £ 239,000 | 0.01 KM |
| 5 Old Mill Chase | £ 313,500 | 0.01 KM |
| Mill Cottage | £ 210,000 | 0.01 KM |