Whitcliffe Drive, Ripon
DA

Whitcliffe Drive, Ripon

By Davis & Lund

£ 285,000

Reviews

3 out of 5 stars

Davis & Lund says ..

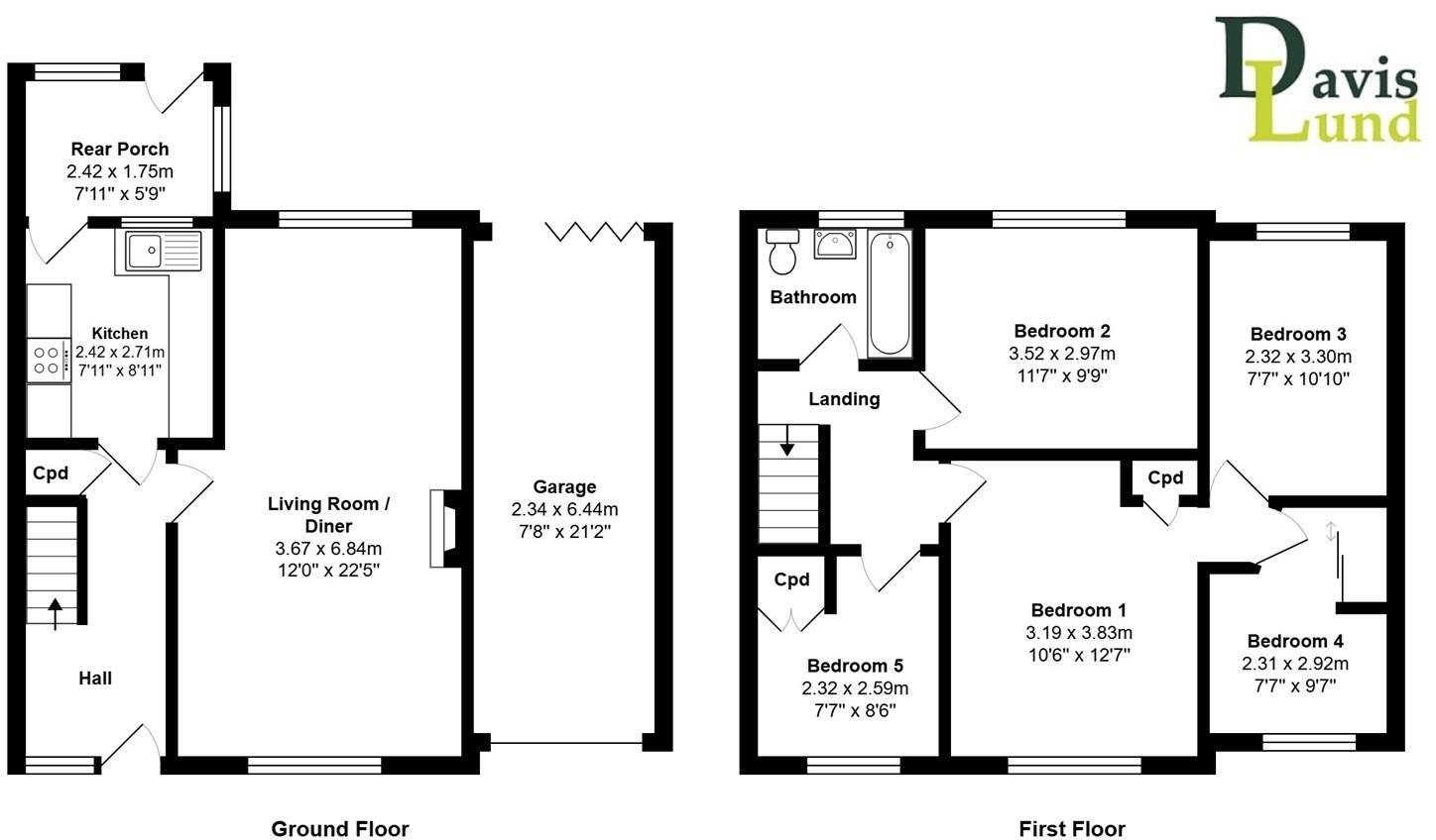
The good size extended semi-detached house, revealing a spacious interior, which is now in need of renovation and modernisation, but offering an exciting opportunity for the right buyer. Located in a sought-after residential area on the south side of the city, the house has undergone a f...

Property Oracle says ..

This is a 5-bedroom semi-detached property located in Ripon Moorside, Ripon. The property is listed for £285,000. While the property benefits from a garden, shed and garage, the interior is dated and requires renovation. The property is located near several schools, including Moorside Primary School & Nursery and the ‘Outstanding’ St Wilfrid’s Catholic Primary School. The average price in the area is significantly higher, suggesting the property is competitively priced, taking into account the condition.

Therefore, we give this property 6 / 10. *Disclaimer: This is our option and does constitute a recommendation or financial advice. Do your own research. *

Price
8
Condition
4
Location
7
Land
7
Bedrooms
5
Bathrooms
1

The heatmap indicates the level of crime in the area. The color of the heatmap indicates the crime severity and recency.

Metrics Year-on-Year

Average area value
688,333.00 £
Decreased by 8.54 %
from 752,601.00 £
Average area rental value
1,650.00 £/mo
Decreased by 35.09 %
from 2,542.00 £/mo
Est rental Yield
2.88 %
Decreased by 28.89 %
from 4.05 %
Crime Rate
9.00 %
Unchanged by 0.00 %
from 9.00 %

Agent Activity

  • Davis & Lund created the listing.

Nearby Schools

NameTypeOfstedDistance
Moorside Primary School & NurseryCommunity SchoolGood0.17 KM
Outwood Primary Academy GreystoneAcademy Sponsor Led0.84 KM
St Wilfrid'S Catholic Primary SchoolVoluntary Aided SchoolOutstanding1.18 KM
Holy Trinity Cofe Junior SchoolVoluntary Controlled SchoolGood1.28 KM
Outwood Academy RiponAcademy ConverterOutstanding1.44 KM

Images

IMG_1115 copy.jpg IMG_1002.jpg IMG_1026.jpg IMG_1103 copy.jpg Whitcliffe-Drive-Ripon-11212025_163258.jpg IMG_1005.jpg IMG_0998 copy.jpg IMG_1025.jpg IMG_1095 copy.jpg IMG_1107 copy.jpg IMG_1043.jpg IMG_0996 copy.jpg IMG_1087 copy.jpg IMG_1098 copy.jpg IMG_1048.jpg IMG_1012.jpg IMG_1082 copy.jpg IMG_1030.jpg IMG_1034 copy.jpg IMG_1051.jpg IMG_1067.jpg IMG_1092 copy.jpg IMG_1111 copy.jpg IMG_1116 copy.jpg

Nearby Streets

NameAverage PriceAverage SqftDistance
Sycamore Road £ 200,00000.00 KM
Harewood Road £ 000.00 KM
Grove Close £ 000.00 KM
Catherdral Mews £ 625,00000.00 KM
King George Road £ 175,00000.00 KM

Nearby Listings

AddressPriceTypeScoreDistance
Whitcliffe Drive, Ripon £ 285,000BUY6 / 100.00 KM
Newlands Drive, Ripon £ 125,000BUYUnknown0.11 KM
Elm Road, Ripon, HG4 2PE £ 119,500BUY7 / 100.19 KM
Elm Road, Ripon £ 220,000BUY8 / 100.19 KM
Elm Road, Ripon, HG4 2PE £ 199,950BUY6 / 100.19 KM

Nearby Properties

AddressPriceDistance
5 Highfield Road £ 177,9500.09 KM
25 Highfield Road £ 225,0000.09 KM
52 Highfield Road £ 200,0000.09 KM
24 Highfield Road £ 255,0000.09 KM
34 Highfield Road £ 160,0000.09 KM