TA
Quantock Close, Halesowen, B63 1HF
By Taylors Estate Agents
£ 285,000
Reviews
3 out of 5 stars
Taylors Estate Agents says ..
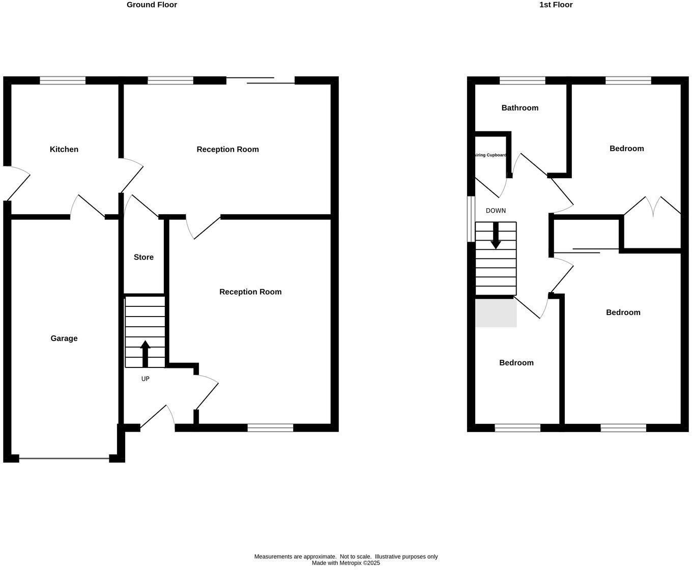
Situated in a delightful and respected cul de sac on the popular Squirrels. A looked after, attractive looking and EXTENDED semi detached home with a SUPERB REAR GARDEN and a LOVELY OUTLOOK BEYOND. Having gas central heating, PVC double glazing and NO UPWARD CHAIN. With good size block paved d...
Property Oracle says ..
Therefore, we give this property 6 / 10. *Disclaimer: This is our option and does constitute a recommendation or financial advice. Do your own research. *
- Price
- 7
- Condition
- 5
- Location
- 7
- Land
- 7
- Bedrooms
- 3
- Bathrooms
- 1
The heatmap indicates the level of crime in the area. The color of the heatmap indicates the crime severity and recency.
Metrics Year-on-Year
- Average area value
- 290,495.00 £Decreased by 11.63 %
- Average area rental value
- 1,124.00 £/moIncreased by 4.46 %
- Est rental Yield
- 4.64 %Increased by 18.07 %
- Crime Rate
- 2.00 %Unchanged by 0.00 %
from 328,713.00 £
from 1,076.00 £/mo
from 3.93 %
from 2.00 %
Agent Activity
Taylors Estate Agents marked this listing as sold.
Taylors Estate Agents created the listing.
Nearby Schools
| Name | Type | Ofsted | Distance |
|---|---|---|---|
| Lutley Primary School | Academy Converter | Good | 0.30 KM |
| Huntingtree Primary School | Community School | Good | 1.34 KM |
| Caslon Primary Community School | Community School | Good | 1.65 KM |
| St Margaret'S At Hasbury Cofe Primary School | Voluntary Controlled School | Requires improvement | 1.88 KM |
| Windsor High School And Sixth Form | Academy Converter | Good | 2.25 KM |
Images
Nearby Streets
| Name | Average Price | Average Sqft | Distance |
|---|---|---|---|
| Quantock Close | £ 365,000 | 0 | 0.00 KM |
| Ennerdale Drive | £ 0 | 0 | 0.00 KM |
| Blckford Close | £ 0 | 0 | 0.00 KM |
| Lansdowne Road | £ 323,333 | 0 | 0.00 KM |
| Campion Grove | £ 775,000 | 0 | 0.00 KM |
Nearby Transport
| Name | NLC | TLC | Distance |
|---|---|---|---|
| Cradley Heath | 4639 | CRA | 3.32 KM |
| Old Hill | 4641 | OHL | 4.00 KM |
| Lye (West Midlands) | 4640 | LYE | 4.60 KM |
| Stourbridge Junction | 4646 | SBJ | 6.18 KM |
| Rowley Regis | 4606 | ROW | 6.52 KM |
Nearby Listings
| Address | Price | Type | Score | Distance |
|---|---|---|---|---|
| Quantock Close, Halesowen, B63 1HF | £ 285,000 | BUY | 6 / 10 | 0.00 KM |
| Quantock Close, Halesowen | £ 375,000 | BUY | 6 / 10 | 0.00 KM |
| Ennerdale Drive, Halesowen | £ 355,000 | BUY | 6 / 10 | 0.15 KM |
| HALESOWEN, Ennerdale Drive | £ 365,000 | BUY | 7 / 10 | 0.15 KM |
| Oxenton Croft, Halesowen | £ 260,000 | BUY | 7 / 10 | 0.15 KM |
Nearby Properties
| Address | Price | Distance |
|---|---|---|
| 11 Quantock Close | £ 322,000 | 0.00 KM |
| 7 Quantock Close | £ 302,000 | 0.00 KM |
| 4 Quantock Close | £ 218,000 | 0.03 KM |
| 17 Quantock Close | £ 195,000 | 0.03 KM |
| 26 Quantock Close | £ 262,000 | 0.03 KM |