Baxendale Grove, Bamber Bridge, Preston
By Ben Rose Estate Agents
£ 105,000
Reviews
3 out of 5 stars
Ben Rose Estate Agents says ..
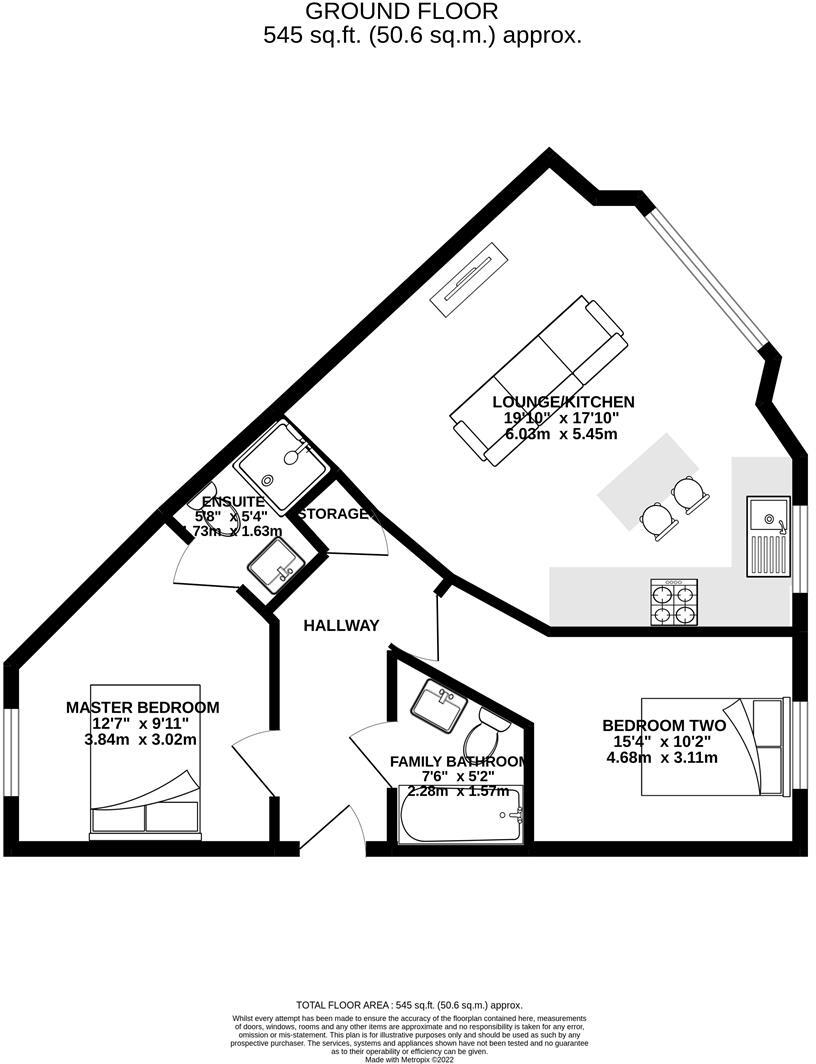
Ben Rose Estate Agents are delighted to bring to market this beautifully maintained two-bedroom, first-floor apartment, ideally situated in a highly desirable residential area of Bamber Bridge. Perfectly suited for first-time buyers eager to take their first step onto the property ladder, this ho...
Property Oracle says ..
The property is a 2-bedroom, 2-bathroom apartment located in Bamber Bridge, Preston, Lancashire. The location benefits from being within 0.83km of Bamber Bridge train station, providing convenient access to public transport. Several well-regarded schools are also nearby, including St Mary’s and St Benedict’s Roman Catholic Primary School (0.32km) and Brownedge St Mary’s Catholic High School (0.85km), both rated ‘Good’ by Ofsted. This makes the property attractive to families with children.
The apartment appears to be in good condition. The provided images show a modern, well-maintained interior with updated fixtures and fittings. There is no evidence of significant repair or renovation needs. The property also includes a small garden area, adding to its appeal.
Considering the list price of £105,000 and the absence of square footage information, a precise price per square foot calculation is not possible. However, comparing it to similar properties in the area, such as those on Baxendale Grove (ranging from £97,000 to £122,500) and Brampton Drive (ranging from £110,000 to £117,500), the asking price appears to be within the reasonable range for a 2-bedroom apartment in this location. The average price for properties in the area is significantly higher (£772,179), but this reflects the average across all property types, not just apartments. The average price per sqft of £617 is also not directly comparable due to the missing sqft data for the subject property. The presence of a garden, a desirable feature in the UK housing market, may further justify the asking price.
In summary, this property offers a convenient location, good condition, and a small garden. While a precise price-per-square-foot analysis is impossible without the property’s square footage, the list price seems reasonable in comparison to similar properties in the area.
Therefore, we give this property 7 / 10. *Disclaimer: This is our option and does constitute a recommendation or financial advice. Do your own research. *
- Price
- 7
- Condition
- 8
- Location
- 7
- Land
- 6
- Bedrooms
- 2
- Bathrooms
- 2
- Lot (est)
- 545.00
The heatmap indicates the level of crime in the area. The color of the heatmap indicates the crime severity and recency.
Metrics Year-on-Year
- Average area value
- 472,750.00 £Decreased by 21.88 %
- Average area rental value
- 1,418.00 £/moDecreased by 35.04 %
- Est rental Yield
- 3.60 %Decreased by 16.86 %
- Crime Rate
- 7.00 %Unchanged by 0.00 %
Agent Activity
Ben Rose Estate Agents created the listing.
Nearby Schools
| Name | Type | Ofsted | Distance |
|---|---|---|---|
| St Mary'S And St Benedict'S Roman Catholic Primary School | Voluntary Aided School | Good | 0.32 KM |
| Walton-Le-Dale Community Primary School | Community School | Good | 0.64 KM |
| Brownedge St Mary'S Catholic High School | Voluntary Aided School | Good | 0.85 KM |
| Cuerden Church School, Bamber Bridge | Voluntary Aided School | Good | 0.96 KM |
| Bridgeway School | Other Independent Special School | 1.04 KM |
Images
Nearby Streets
| Name | Average Price | Average Sqft | Distance |
|---|---|---|---|
| Buttermere Close | £ 0 | 0 | 0.00 KM |
| Brownedge Walk | £ 0 | 0 | 0.00 KM |
| Old Hall Close | £ 0 | 0 | 0.00 KM |
| Farm Lane | £ 0 | 0 | 0.00 KM |
| Jackson Street | £ 0 | 0 | 0.00 KM |
Nearby Transport
| Name | NLC | TLC | Distance |
|---|---|---|---|
| Bamber Bridge | 2561 | BMB | 0.83 KM |
| Lostock Hall | 2689 | LOH | 2.26 KM |
| Leyland | 2710 | LEY | 4.04 KM |
| Preston (Lancs) | 2753 | PRE | 5.39 KM |
| Buckshaw Parkway | 7501 | BSV | 6.31 KM |
Nearby Listings
| Address | Price | Type | Score | Distance |
|---|---|---|---|---|
| Baxendale Grove, Bamber Bridge, Preston | £ 115,000 | BUY | 6 / 10 | 0.00 KM |
| Baxendale Grove, Bamber Bridge, Preston | £ 105,000 | BUY | 7 / 10 | 0.00 KM |
| Baxendale Grove, Bamber Bridge, Preston, Lancashire, PR5 | £ 105,000 | BUY | 6 / 10 | 0.00 KM |
| Brampton Drive, Bamber Bridge, Preston, Lancashire, PR5 | £ 90,000 | BUY | 5 / 10 | 0.05 KM |
| Brampton Drive, Preston, PR5 | £ 110,000 | BUY | 6 / 10 | 0.06 KM |
Nearby Properties
| Address | Price | Distance |
|---|---|---|
| 3 Baxendale Grove | £ 80,000 | 0.00 KM |
| 1 Baxendale Grove | £ 118,000 | 0.00 KM |
| 14 Baxendale Grove | £ 97,000 | 0.00 KM |
| 11 Baxendale Grove | £ 122,500 | 0.00 KM |
| 16 Baxendale Grove | £ 126,800 | 0.00 KM |