Hunters says ..
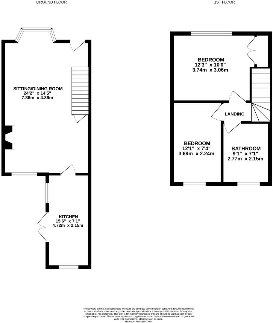
Guide price: £270,000-£290,000. Situated within the well regarded Glover Road in Willesborough, lies this well cared for two-bedroom end-of-terrace home dating back to the early 1900’s offering a perfect balance of those looking to get on the ladder and being in touch of all great transport links...
Property Oracle says ..
This two-bedroom end-of-terrace house in Willesborough, Ashford, presents a potentially attractive option for first-time buyers or investors. The property’s proximity to Ashford International train station is a significant advantage, offering excellent commuter links. The presence of several well-regarded schools nearby is also a positive aspect for families.
The property itself appears in reasonable condition from the provided images. While not luxurious, it is seemingly well-maintained and habitable. Some updating or redecoration could enhance its appeal. The kitchen seems functional, though somewhat dated.
The garden offers some outdoor space, although it may need some attention. The lack of precise plot size information prevents a conclusive assessment of the land’s size.
The listed price appears to be in line with comparable properties in the area, suggesting good value for money. However, a more detailed comparison with properties of similar size and condition would provide a firmer conclusion. Overall, this property is a potentially good investment opportunity, but potential buyers should consider undertaking their own thorough inspection of the property to assess its condition and potential further requirements.
Therefore, we give this property 6 / 10. *Disclaimer: This is our option and does constitute a recommendation or financial advice. Do your own research. *
- Price
- 7
- Condition
- 6
- Location
- 7
- Land
- 4
- Bedrooms
- 2
- Bathrooms
- 1
- Sqft (est)
- 889.85
The heatmap indicates the level of crime in the area. The color of the heatmap indicates the crime severity and recency.
Metrics Year-on-Year
- Average area value
- 257,097.00 £Decreased by 8.25 %
- Est sale value
- 293,650.50 £Increased by 14.98 %
- Average area rental value
- 956.00 £/moIncreased by 1.92 %
- Est letting value
- 889.85 £/mo
- Est rental Yield
- 4.46 %Increased by 10.95 %
- Crime Rate
- 4.00 %Unchanged by 0.00 %
Agent Activity
Hunters created the listing.
Nearby Schools
| Name | Type | Ofsted | Distance |
|---|---|---|---|
| The Norton Knatchbull School | Academy Converter | Good | 0.54 KM |
| Cornfields School | Other Independent Special School | Good | 0.64 KM |
| The North School | Academy Converter | 0.83 KM | |
| Willesborough Junior School | Foundation School | Good | 1.06 KM |
| Waterside Children'S Centre | Children's Centre | 1.10 KM |
Images
Nearby Streets
| Name | Average Price | Average Sqft | Distance |
|---|---|---|---|
| Foxglove Road | £ 0 | 0 | 0.00 KM |
| Trechard Close | £ 0 | 0 | 0.00 KM |
| Park Place | £ 0 | 0 | 0.00 KM |
| Ellison Close | £ 0 | 0 | 0.00 KM |
| The Courtyard | £ 230,000 | 0 | 0.00 KM |
Nearby Transport
| Name | NLC | TLC | Distance |
|---|---|---|---|
| Ashford International | 5004 | AFK | 1.89 KM |
| Wye | 5031 | WYE | 6.18 KM |
| Ham Street | 5037 | HMT | 9.30 KM |
Nearby Listings
| Address | Price | Type | Score | Distance |
|---|---|---|---|---|
| Glover Road, Willesborough | £ 270,000 | BUY | 6 / 10 | 0.00 KM |
| Glover Road, Willesborough | £ 365,000 | BUY | 6 / 10 | 0.03 KM |
| Willesborough, Ashford TN24 | £ 400,000 | BUY | 7 / 10 | 0.03 KM |
| Glover Road, Willesborough, Ashford TN24 | £ 325,000 | BUY | 6 / 10 | 0.03 KM |
| Glover Road, Willesborough | £ 350,000 | BUY | 5 / 10 | 0.03 KM |
Nearby Properties
| Address | Price | Distance |
|---|---|---|
| 20 Glover Road | £ 200,000 | 0.03 KM |
| Athena House | £ 400,000 | 0.03 KM |
| 7b Glover Road | £ 172,500 | 0.03 KM |
| 12 Glover Road | £ 248,000 | 0.03 KM |
| 18 Glover Road | £ 239,950 | 0.03 KM |