AU
Cemetery Road, Leeds, West Yorkshire
By Auction House
£ 165,000
Reviews
3 out of 5 stars
Auction House says ..
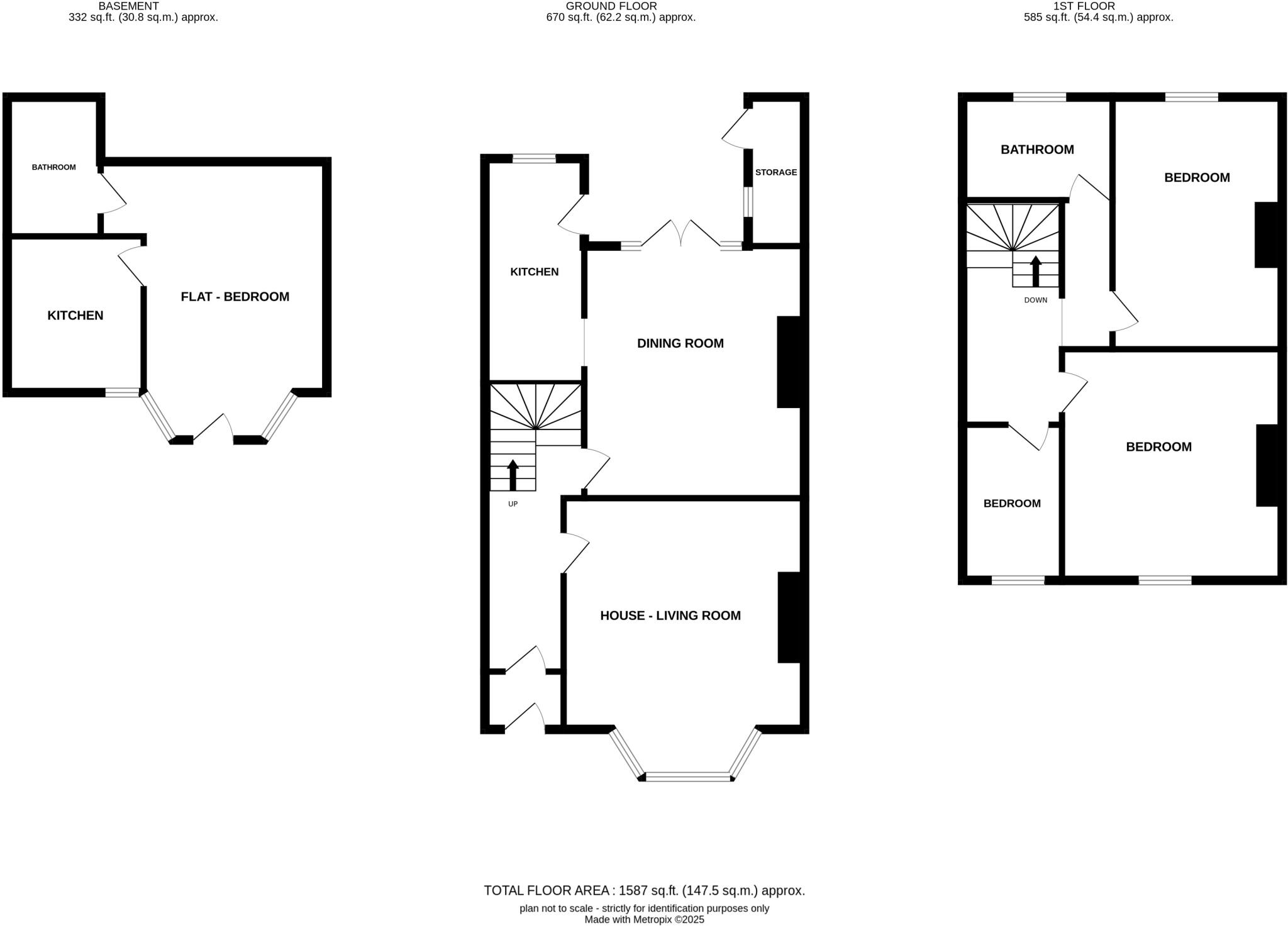
This large, three bedroom terraced house with garden, and separate studio flat is offered for sale via traditional auction. It’s sold with tenants in situ, and, in total, is generating £17,400pa. Both tenants have been in situ for numerous years, and internally the property would bene...
Property Oracle says ..
Therefore, we give this property 6 / 10. *Disclaimer: This is our option and does constitute a recommendation or financial advice. Do your own research. *
- Price
- 8
- Condition
- 5
- Location
- 7
- Land
- 7
- Bedrooms
- 4
- Bathrooms
- 2
- Sqft (est)
- 1,512.00
The heatmap indicates the level of crime in the area. The color of the heatmap indicates the crime severity and recency.
Metrics Year-on-Year
- Average area value
- 488,600.00 £Decreased by 6.01 %
- Est sale value
- 951,048.00 £Increased by 9.01 %
- Average area rental value
- 1,814.00 £/moIncreased by 6.02 %
- Est letting value
- 3,024.00 £/moIncreased by 100.00 %
- Est rental Yield
- 4.46 %Increased by 12.91 %
- Crime Rate
- 10.00 %Unchanged by 0.00 %
from 519,839.00 £
from 872,424.00 £
from 1,711.00 £/mo
from 1,512.00 £/mo
from 3.95 %
from 10.00 %
Agent Activity
Auction House created the listing.
Nearby Schools
| Name | Type | Ofsted | Distance |
|---|---|---|---|
| Greenmount Primary School | Community School | Good | 0.42 KM |
| Beeston Hill St Luke'S Church Of England Primary School | Voluntary Aided School | Outstanding | 0.50 KM |
| Park View Primary Academy | Academy Sponsor Led | Requires improvement | 0.64 KM |
| Lane End Primary School | Foundation School | Good | 0.92 KM |
| St Anthony'S Catholic Primary School, Beeston | Voluntary Aided School | Outstanding | 0.99 KM |
Images
Nearby Streets
| Name | Average Price | Average Sqft | Distance |
|---|---|---|---|
| Back Cranbrook Avenue | £ 0 | 0 | 0.00 KM |
| Park View | £ 0 | 0 | 0.00 KM |
| St. Luke's Road | £ 0 | 0 | 0.00 KM |
| Hill Street | £ 325,000 | 0 | 0.00 KM |
| Back Dalton Avenue | £ 0 | 0 | 0.00 KM |
Nearby Transport
| Name | NLC | TLC | Distance |
|---|---|---|---|
| Leeds | 8487 | LDS | 2.16 KM |
| Cottingley | 8505 | COT | 3.62 KM |
| Burley Park | 8500 | BUY | 4.43 KM |
| Morley | 8504 | MLY | 4.93 KM |
| Headingley | 8498 | HDY | 6.06 KM |
Nearby Listings
| Address | Price | Type | Score | Distance |
|---|---|---|---|---|
| Cemetery Road, Leeds, West Yorkshire | £ 165,000 | BUY | 6 / 10 | 0.00 KM |
| Beeston Road, Leeds, West Yorkshire | £ 215,000 | BUY | Unknown | 0.06 KM |
| Temple Crescent, Leeds, West Yorkshire | £ 140,000 | BUY | 5 / 10 | 0.10 KM |
| West View, Leeds, West Yorkshire, LS11 | £ 134,000 | BUY | 6 / 10 | 0.12 KM |
| Cranbrook Avenue, Leeds, West Yorkshire | £ 155,000 | BUY | 4 / 10 | 0.16 KM |
Nearby Properties
| Address | Price | Distance |
|---|---|---|
| 100 Cemetery Road | £ 132,000 | 0.01 KM |
| 138 Beeston Road | £ 142,500 | 0.06 KM |
| 164 Beeston Road | £ 163,000 | 0.07 KM |
| 205 Beeston Road | £ 60,000 | 0.11 KM |
| 187 Beeston Road | £ 75,000 | 0.11 KM |