Finkle Green Birdbrook, Halstead
Jamie Warner Estate Agents logo

Finkle Green Birdbrook, Halstead

By Jamie Warner Estate Agents

£ 500,000

Reviews

2 out of 5 stars

Jamie Warner Estate Agents says ..

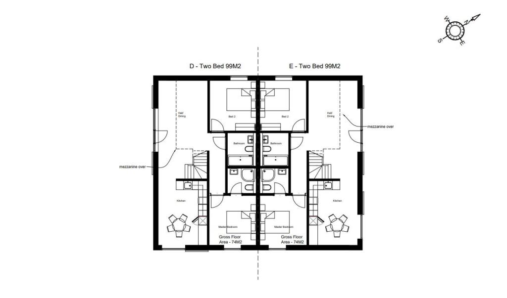
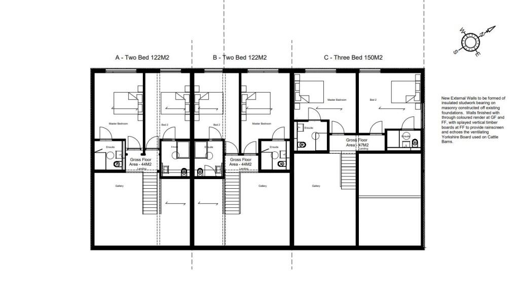
STUNNING RURAL DEVELOPMENT OPPORTUNITY – PART Q BARN CONVERSION WITH PANORAMIC VIEWS A prime rural development site with Part Q planning consent for five barn conversions, located near Birdbrook with sweeping views across open countryside and Moyns Park. Approved under Braintree District...

Property Oracle says ..

Therefore, we give this property 5 / 10. *Disclaimer: This is our option and does constitute a recommendation or financial advice. Do your own research. *

Price
4
Condition
0
Location
6
Land
7
Bedrooms
0
Bathrooms
0

The heatmap indicates the level of crime in the area. The color of the heatmap indicates the crime severity and recency.

Metrics Year-on-Year

Average area value
596,800.00 £
Increased by 10.80 %
from 538,641.00 £
Average area rental value
1,549.00 £/mo
Increased by 27.07 %
from 1,219.00 £/mo
Est rental Yield
3.11 %
Increased by 14.34 %
from 2.72 %
Crime Rate
0.00 %
from 0.00 %

Agent Activity

  • Jamie Warner Estate Agents created the listing.

Nearby Schools

NameTypeOfstedDistance
Steeple Bumpstead Primary SchoolAcademy Sponsor Led4.74 KM
Ridgewell Church Of England Primary SchoolAcademy Sponsor Led5.04 KM
Coupals Primary AcademyAcademy Sponsor LedGood5.29 KM
Churchill Special Free SchoolFree Schools SpecialOutstanding5.30 KM
Kedington Primary AcademyAcademy ConverterGood5.69 KM

Images

Please note blurred areas are to respect privacy a Please note blurred areas are to respect privacy a Please note blurred areas are to respect privacy a site plan proposed elevations 1 A,B,C proposed ground floor 1 A,B,C proposed first floor 1 D,E, proposed elevations 2 D,E, proposed ground floor 2 D,E, proposed first floor 2

Nearby Streets

NameAverage PriceAverage SqftDistance
Fell Road £ 000.00 KM
Schoolfield £ 000.00 KM
Birdbrook Road £ 1,300,00000.00 KM

Nearby Listings

AddressPriceTypeScoreDistance
Finkle Green Birdbrook, Halstead £ 500,000BUY5 / 100.00 KM
Birdbrook £ 650,000BUYUnknown0.37 KM
Moat Road, Birdbrook £ 280,000BUY7 / 100.43 KM
Birdbrook, Halstead £ 525,000BUY7 / 100.61 KM
School Field, Birdbrook, Essex £ 550,000BUY7 / 100.65 KM

Nearby Properties

AddressPriceDistance
Wren Cottage £ 320,0000.14 KM
Fairways £ 334,0000.14 KM
The Haven £ 180,0000.14 KM
Fauve £ 312,0000.14 KM
The Old Stores £ 377,5000.23 KM