Fletton Row, Stewartby
By Marston Vale Properties
£ 335,000
Reviews
3 out of 5 stars
Marston Vale Properties says ..
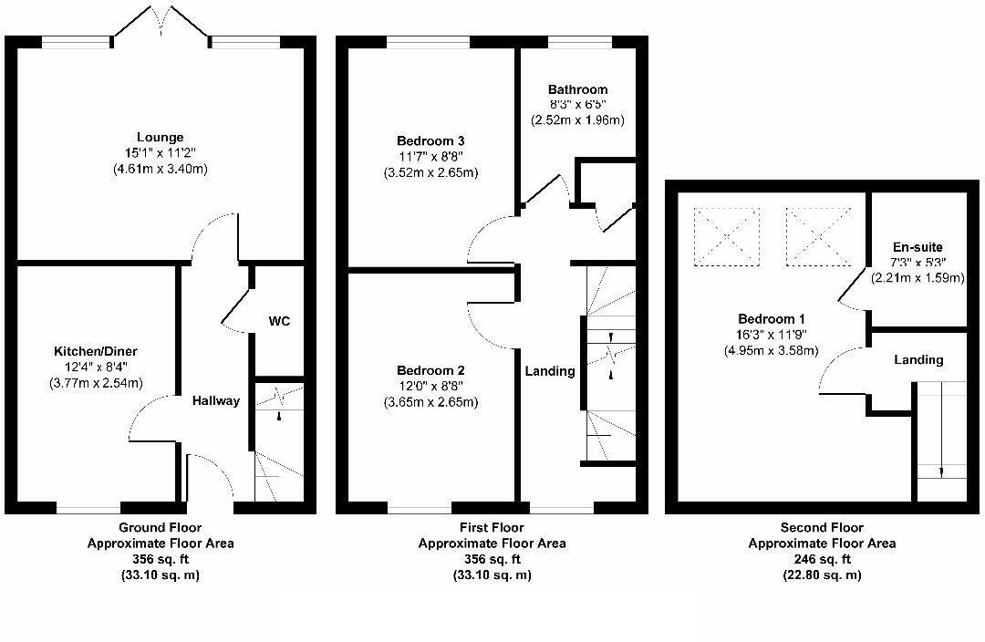
** THREE DOUBLE BEDROOMS ** EXCELLENT CONDITION THROUGHOUT ** TOP FLOOR "LOFT STYLE" MASTER BEDROOM WITH EN-SUITE SHOWER ROOM ** FITTED KITCHEN / DINER ** LOUNGE TO REAR ** FITTED FAMILY BATHROOM ** LANDSCAPED REAR GARDEN ** ALLOCATED PARKING TO FRONT ** CLOSE TO SHOPS & SCHOOLS **
Property Oracle says ..
This is a three-bedroom terraced house in Stewartby, Bedfordshire. The property appears to be in good condition, with modern interiors and a well-maintained garden that includes a shed. The location offers a balance of community living with reasonable access to schools and transportation. The asking price is slightly above the average for the area, but this seems justified by the property’s condition and features. Overall, it presents as a desirable family home in a convenient location.
Therefore, we give this property 7 / 10. *Disclaimer: This is our option and does constitute a recommendation or financial advice. Do your own research. *
- Price
- 7
- Condition
- 8
- Location
- 7
- Land
- 7
- Bedrooms
- 3
- Bathrooms
- 0
- Sqft (est)
- 955.19
The heatmap indicates the level of crime in the area. The color of the heatmap indicates the crime severity and recency.
Metrics Year-on-Year
- Average area value
- 325,000.00 £Decreased by 13.31 %
- Est sale value
- 331,450.93 £Increased by 13.40 %
- Average area rental value
- 1,000.00 £/moIncreased by 2.15 %
- Est letting value
- 955.19 £/mo
- Est rental Yield
- 3.69 %Increased by 17.89 %
- Crime Rate
- 26.00 %Unchanged by 0.00 %
Agent Activity
Marston Vale Properties created the listing.
Nearby Schools
| Name | Type | Ofsted | Distance |
|---|---|---|---|
| Broadmead Lower School | Community School | Requires improvement | 0.17 KM |
| Marston Vale Middle School | Academy Converter | Requires improvement | 0.66 KM |
| Kimberley 16 - 19 Stem College | Free Schools 16 To 19 | Good | 1.79 KM |
| Wootton Lower School | Community School | Good | 3.34 KM |
| Ridgeway School | Community Special School | Good | 3.93 KM |
Images
Nearby Streets
| Name | Average Price | Average Sqft | Distance |
|---|---|---|---|
| Kiln Drive | £ 385,718 | 0 | 0.00 KM |
| Heather Lane | £ 316,667 | 0 | 0.00 KM |
| George Close | £ 500,000 | 0 | 0.00 KM |
| The Pastures | £ 0 | 0 | 0.00 KM |
| Costwold Drive | £ 505,000 | 0 | 0.00 KM |
Nearby Transport
| Name | NLC | TLC | Distance |
|---|---|---|---|
| Stewartby | 1386 | SWR | 1.38 KM |
| Kempston Hardwick | 1384 | KMH | 2.13 KM |
| Millbrook (Bedfordshire) | 1537 | MLB | 3.42 KM |
| Lidlington | 1579 | LID | 6.57 KM |
| Bedford | 1512 | BDM | 7.68 KM |
Nearby Listings
| Address | Price | Type | Score | Distance |
|---|---|---|---|---|
| Fletton Row, Stewartby | £ 335,000 | BUY | 7 / 10 | 0.00 KM |
| Oxford Blue Way, Stewartby, Bedfordshire, MK43 | £ 330,000 | BUY | Unknown | 0.03 KM |
| Coronation Way, Stewartby, Bedford, MK43 | £ 232,500 | BUY | 7 / 10 | 0.07 KM |
| Kiln Drive, Stewartby, Bedford, MK43 9GA | £ 325,000 | BUY | 7 / 10 | 0.08 KM |
| Coronation Way, Stewartby, Bedford, MK43 | £ 152,500 | BUY | 7 / 10 | 0.08 KM |
Nearby Properties
| Address | Price | Distance |
|---|---|---|
| 4 Forder Close | £ 217,500 | 0.20 KM |
| 27 Pillinge Road | £ 285,000 | 0.30 KM |
| 15 Pillinge Road | £ 180,000 | 0.30 KM |
| 12 Pillinge Road | £ 59,995 | 0.30 KM |
| 7 Pillinge Road | £ 185,100 | 0.30 KM |