Old Lane, Shevington, Wigan
By Tracy Phillips Estates
£ 180,000
Reviews
3 out of 5 stars
Tracy Phillips Estates says ..
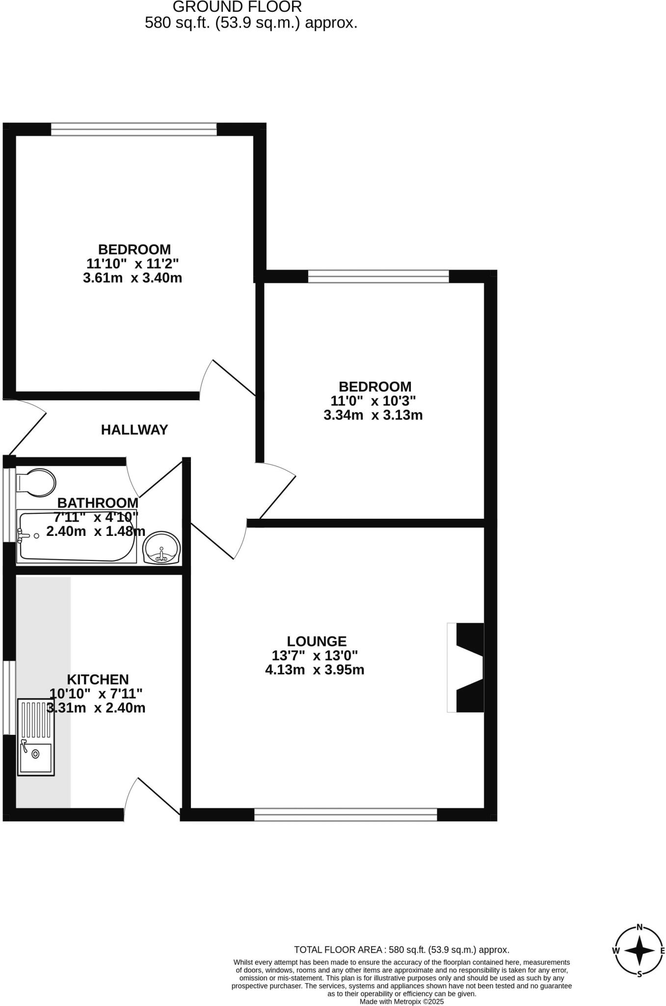
Situated in the sought-after centre of Shevington village, this delightful semi-detached bungalow offers comfortable and convenient living in a prime location. Upon entering, a bright and welcoming hallway leads to a modern bathroom fitted with a three-piece suite, including a bath with WC, a...
Property Oracle says ..
This property is a 2 bedroom semi-detached bungalow located on Old Lane, Shevington, Wigan. The property benefits from a garden and is within reasonable proximity to local schools and transport links.
The property appears to be in generally good condition, although some modernisation may be desirable to enhance its appeal. The kitchen and bathrooms appear dated, and the decor throughout suggests a need for some updating. However, the structure of the property seems sound. The presence of a fireplace is a positive feature.
The plot size is relatively small at 580 sqft, which is typical for a semi-detached bungalow in this area. The property itself is 532 sqft, which is smaller than the average for the area (965 sqft).
The list price of £180,000 is lower than the average house price in the area (£259,700), but this needs to be considered in the context of the smaller size and the potential need for some modernisation. The average price per sqft in the area is £269, while this property is listed at approximately £338 per sqft. This suggests the property might be priced competitively, potentially reflecting the need for modernisation. However, comparable properties on Old Lane have sold for higher prices, suggesting that the list price could be considered on the lower end of the market value.
Considering the proximity to schools and transport links, the presence of a garden, and the potential for modernisation, the property presents a reasonable opportunity for a buyer looking for a project. The smaller size and the need for updating are factors that should be considered.
Therefore, we give this property 7 / 10. *Disclaimer: This is our option and does constitute a recommendation or financial advice. Do your own research. *
- Price
- 7
- Condition
- 7
- Location
- 8
- Land
- 6
- Bedrooms
- 2
- Bathrooms
- 1
- Sqft (est)
- 532.00
- Lot (est)
- 580.00
The heatmap indicates the level of crime in the area. The color of the heatmap indicates the crime severity and recency.
Metrics Year-on-Year
- Average area value
- 270,000.00 £Increased by 5.95 %
- Est sale value
- 89,908.00 £Decreased by 28.99 %
- Average area rental value
- 1,038.00 £/moDecreased by 7.73 %
- Est letting value
- 0.00 £/moDecreased by 100.00 %
- Est rental Yield
- 4.61 %Decreased by 13.02 %
- Crime Rate
- 0.00 %
Agent Activity
Tracy Phillips Estates created the listing.
Nearby Schools
| Name | Type | Ofsted | Distance |
|---|---|---|---|
| St Bernadette'S Catholic Primary School | Voluntary Aided School | Good | 0.27 KM |
| Millbrook Primary School | Community School | Good | 0.51 KM |
| Shevington High School | Community School | Good | 0.75 KM |
| Shevington Sure Start Children'S Centre | Children's Centre Linked Site | 1.57 KM | |
| Fir Tree Fishery Cic | Special Post 16 Institution | 2.07 KM |
Images
Nearby Streets
| Name | Average Price | Average Sqft | Distance |
|---|---|---|---|
| Hall Close | £ 0 | 0 | 0.00 KM |
| Wood View | £ 170,000 | 0 | 0.00 KM |
| Wilton Road | £ 0 | 0 | 0.00 KM |
| Dixon Drive | £ 0 | 0 | 0.00 KM |
| Vicarage Lane | £ 260,000 | 0 | 0.00 KM |
Nearby Transport
| Name | NLC | TLC | Distance |
|---|---|---|---|
| Gathurst | 2397 | GST | 1.79 KM |
| Appley Bridge | 2396 | APB | 3.62 KM |
| Pemberton | 2403 | PEM | 5.15 KM |
| Orrell | 2259 | ORR | 5.40 KM |
| Wigan Wallgate | 2406 | WGW | 6.76 KM |
Nearby Listings
| Address | Price | Type | Score | Distance |
|---|---|---|---|---|
| Old Lane, Shevington, Wigan | £ 180,000 | BUY | 7 / 10 | 0.00 KM |
| Old Lane, Shevington, WN6 | £ 190,000 | BUY | 6 / 10 | 0.06 KM |
| Coach House Drive, Shevington, WN6 8AU | £ 225,000 | BUY | 6 / 10 | 0.08 KM |
| Central Drive, Shevington, WN6 | £ 250,000 | BUY | 8 / 10 | 0.09 KM |
| Central Drive, Shevington, Wigan, WN6 8BA | £ 230,000 | BUY | 7 / 10 | 0.12 KM |
Nearby Properties
| Address | Price | Distance |
|---|---|---|
| 73 Old Lane | £ 220,000 | 0.00 KM |
| 65 Old Lane | £ 120,000 | 0.00 KM |
| 60 Old Lane | £ 134,000 | 0.00 KM |
| 70 Old Lane | £ 199,000 | 0.00 KM |
| 61 Old Lane | £ 143,000 | 0.00 KM |