Langford Russell says ..
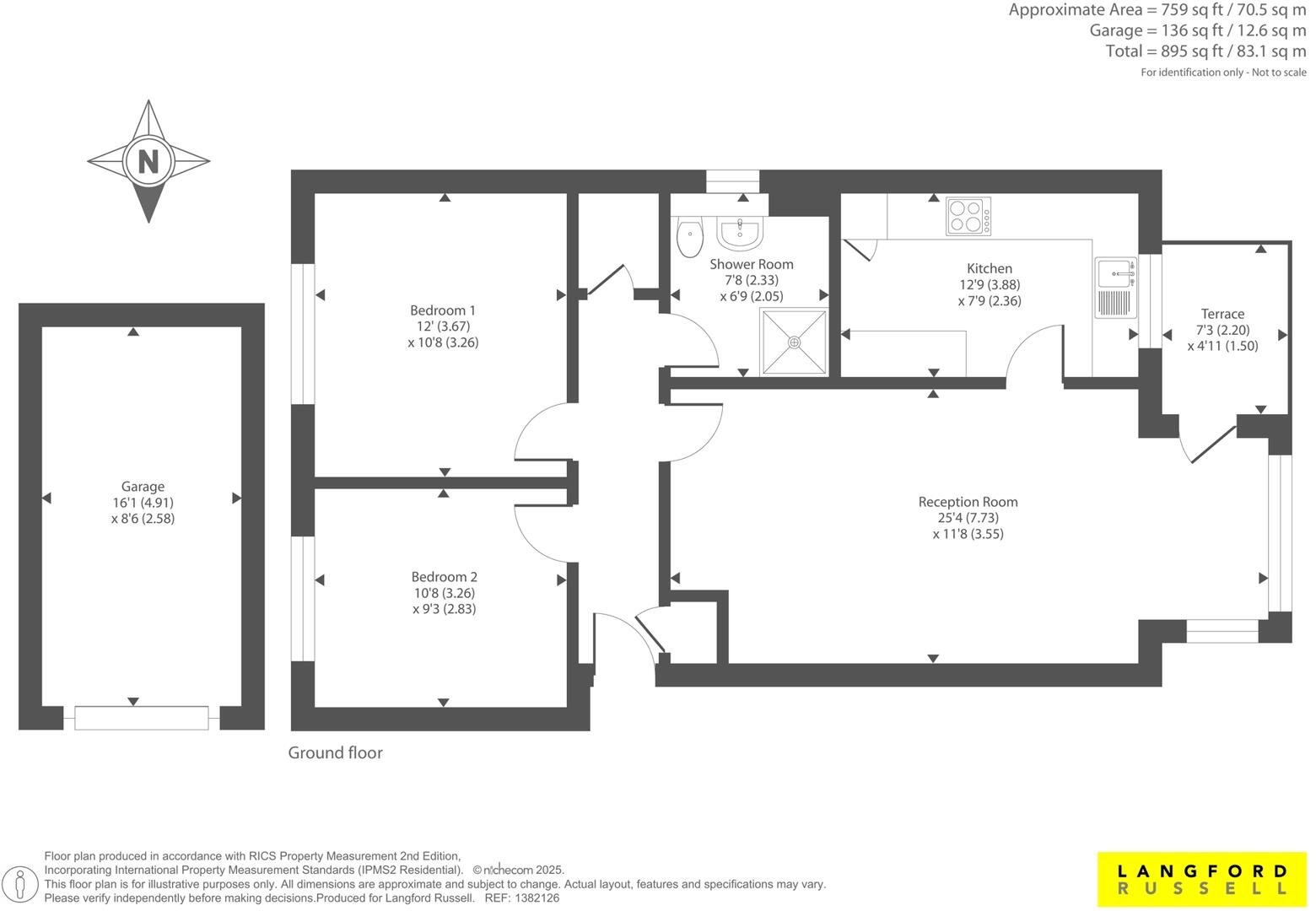
Langford Russell are delighted to present this spacious two double bedroom ground floor apartment, beautifully positioned in a residential block in the heart of Sidcup and offered to the market chain free. This well-proportioned home features a generous light-filled reception room, a s...
Property Oracle says ..
This is a two-bedroom apartment located on Langford Place in Sidcup. The property is within walking distance of Sidcup station and several schools. The apartment has a balcony and access to communal gardens. While the interior is generally well-maintained, the kitchen and bathroom could benefit from modernisation. The listing price of £350,000 appears reasonable compared to the average property prices in the area, making it an attractive option for first-time buyers or investors willing to undertake some renovation work. The square footage is 895 sqft.
Therefore, we give this property 6 / 10. *Disclaimer: This is our option and does constitute a recommendation or financial advice. Do your own research. *
- Price
- 7
- Condition
- 6
- Location
- 7
- Land
- 5
- Bedrooms
- 2
- Bathrooms
- 1
- Sqft (est)
- 895.00
The heatmap indicates the level of crime in the area. The color of the heatmap indicates the crime severity and recency.
Metrics Year-on-Year
- Average area value
- 456,667.00 £Decreased by 3.43 %
- Est sale value
- 752,695.00 £Increased by 89.41 %
- Average area rental value
- 2,099.00 £/moIncreased by 30.13 %
- Est letting value
- 2,685.00 £/moIncreased by 200.00 %
- Est rental Yield
- 5.52 %Increased by 34.96 %
- Crime Rate
- 12.00 %Unchanged by 0.00 %
Agent Activity
Langford Russell created the listing.
Nearby Schools
| Name | Type | Ofsted | Distance |
|---|---|---|---|
| West Lodge School | Other Independent School | 0.11 KM | |
| Benedict House Preparatory School | Other Independent School | Good | 0.37 KM |
| Birkbeck Primary School | Community School | Good | 0.44 KM |
| Holy Trinity Lamorbey Church Of England School | Academy Converter | Good | 0.81 KM |
| Burnt Oak Junior School | Academy Sponsor Led | Outstanding | 0.87 KM |
Images
Nearby Streets
| Name | Average Price | Average Sqft | Distance |
|---|---|---|---|
| Sandhurst Road | £ 0 | 0 | 0.00 KM |
| Victoria Road | £ 0 | 0 | 0.00 KM |
| Aston Close | £ 0 | 0 | 0.00 KM |
| Grange Close | £ 320,000 | 0 | 0.00 KM |
| Kingsmead Close | £ 0 | 0 | 0.00 KM |
Nearby Transport
| Name | NLC | TLC | Distance |
|---|---|---|---|
| Sidcup | 5125 | SID | 0.46 KM |
| Albany Park | 5132 | AYP | 2.65 KM |
| New Eltham | 5119 | NEH | 3.64 KM |
| Welling | 5128 | WLI | 3.88 KM |
| St Mary Cray | 5073 | SMY | 3.95 KM |
Nearby Listings
| Address | Price | Type | Score | Distance |
|---|---|---|---|---|
| Station Road, Sidcup | £ 350,000 | BUY | 6 / 10 | 0.00 KM |
| Station Road, Sidcup, DA15 7DA | £ 375,000 | BUY | 7 / 10 | 0.01 KM |
| Langford Place, Sidcup, DA14 4AZ | £ 450,000 | BUY | Unknown | 0.06 KM |
| Langford Place, Bexley, Sidcup, DA14 | £ 424,000 | BUY | 7 / 10 | 0.06 KM |
| Langford Place, Sidcup, Kent, DA14 | £ 425,000 | BUY | 7 / 10 | 0.06 KM |
Nearby Properties
| Address | Price | Distance |
|---|---|---|
| 72 Langford Place | £ 234,995 | 0.06 KM |
| 87 Langford Place | £ 420,000 | 0.06 KM |
| 78a Langford Place | £ 206,000 | 0.06 KM |
| 82 Langford Place | £ 215,000 | 0.06 KM |
| 77 Langford Place | £ 415,000 | 0.06 KM |