George Hill Road, Broadstairs, Kent, CT10
By Miles & Barr
£ 650,000
Reviews
3 out of 5 stars
Miles & Barr says ..
West Lodge, found on the corner of Whiteness Green is steeped in history. The property dates back to 1860-1863 when it was built as a lodge to serve White Ness, later called Whiteness Manor, which was demolished in the 1960's but the Lodge remains standing! The Lodge has been extended and moderni...
Property Oracle says ..
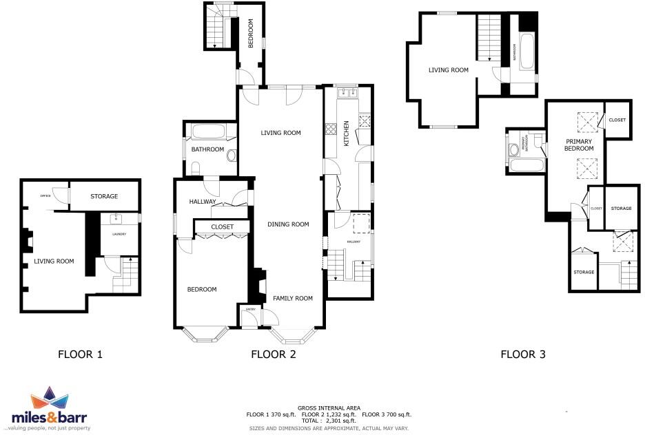
This is a detached bungalow located in Kingsgate, Broadstairs. The property features two bedrooms and three bathrooms, with a generous square footage of 2,302. The property includes a well-maintained garden with a greenhouse, shed, and pond. The interior is a mix of modern and traditional elements, with a recently updated kitchen and bathrooms. While generally in good condition, some aspects of the interior design might benefit from updating to appeal to a broader range of buyers. The property is situated in a desirable coastal location, close to local amenities and transportation links, including nearby train stations. Several schools are located within a reasonable distance. The property benefits from off-street parking and a garage. Overall, this property offers a blend of comfortable living space, outdoor amenities, and a convenient location.
Therefore, we give this property 7 / 10. *Disclaimer: This is our option and does constitute a recommendation or financial advice. Do your own research. *
- Price
- 6
- Condition
- 7
- Location
- 7
- Land
- 8
- Bedrooms
- 2
- Bathrooms
- 3
- Sqft (est)
- 2,302.00
The heatmap indicates the level of crime in the area. The color of the heatmap indicates the crime severity and recency.
Metrics Year-on-Year
- Average area value
- 517,499.00 £Decreased by 30.62 %
- Est sale value
- 1,187,832.00 £Increased by 30.63 %
- Average area rental value
- 1,500.00 £/moDecreased by 3.35 %
- Est letting value
- 2,302.00 £/mo
- Est rental Yield
- 3.48 %Increased by 39.20 %
- Crime Rate
- 0.00 %
Agent Activity
Miles & Barr created the listing.
Nearby Schools
| Name | Type | Ofsted | Distance |
|---|---|---|---|
| Callis Grange Nursery And Infant School | Community School | Outstanding | 1.13 KM |
| St Peter-In-Thanet Cofe Junior School | Voluntary Aided School | Good | 1.13 KM |
| Callis Grange Children'S Centre | Children's Centre | 1.21 KM | |
| St Joseph'S Catholic Primary School, Broadstairs | Academy Converter | Good | 1.80 KM |
| Kms Kent Ltd | Special Post 16 Institution | 1.83 KM |
Images
Nearby Streets
| Name | Average Price | Average Sqft | Distance |
|---|---|---|---|
| First Avenue | £ 780,000 | 0 | 0.00 KM |
| Woodland Way | £ 566,667 | 0 | 0.00 KM |
| Old Road | £ 0 | 0 | 0.00 KM |
| Oakridge | £ 877,500 | 0 | 0.00 KM |
| Astor Road | £ 0 | 0 | 0.00 KM |
Nearby Transport
| Name | NLC | TLC | Distance |
|---|---|---|---|
| Broadstairs | 5006 | BSR | 2.25 KM |
| Dumpton Park | 5034 | DMP | 3.94 KM |
| Ramsgate | 5023 | RAM | 5.22 KM |
| Margate | 5018 | MAR | 6.56 KM |
Nearby Listings
| Address | Price | Type | Score | Distance |
|---|---|---|---|---|
| George Hill Road, Broadstairs, Kent, CT10 | £ 650,000 | BUY | 7 / 10 | 0.00 KM |
| George Hill Road, Broadstairs, Kent | £ 429,500 | BUY | Unknown | 0.00 KM |
| George Hill Road, Broadstairs, Kent | £ 750,000 | BUY | 7 / 10 | 0.00 KM |
| Whiteness Green, Broadstairs, CT10 | £ 695,000 | BUY | 7 / 10 | 0.08 KM |
| Whiteness Green, Broadstairs, Kent, CT10 | £ 650,000 | BUY | 7 / 10 | 0.12 KM |
Nearby Properties
| Address | Price | Distance |
|---|---|---|
| Latimers | £ 127,000 | 0.02 KM |
| Yogam | £ 450,000 | 0.02 KM |
| Autumn Leaves | £ 470,000 | 0.02 KM |
| Enil Lodge | £ 319,000 | 0.02 KM |
| 36 Whiteness Green | £ 450,000 | 0.12 KM |