Roman Way, Uckfield, East Sussex, TN22
VI

Roman Way, Uckfield, East Sussex, TN22

By Vince Taylor Tofts

£ 625,000

Reviews

3 out of 5 stars

Vince Taylor Tofts says ..

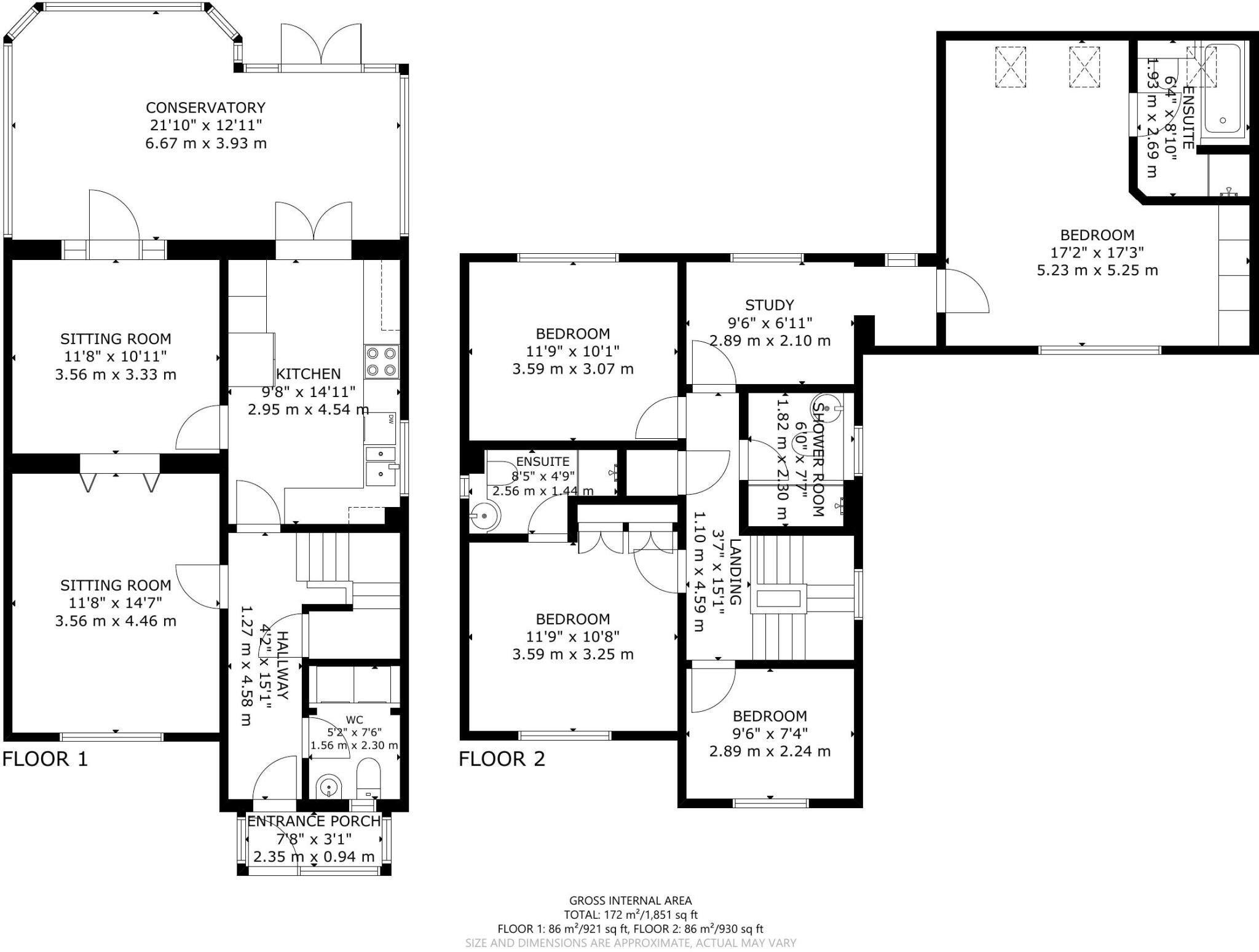
A considerably extended modern detached house situated in a much sought after residential area within easy reach of schools and the town centre.

Property Oracle says ..

This is a 4-bedroom detached house in Uckfield, East Sussex. The property is in good condition and has a modern kitchen and bathrooms. It also has a good-sized garden and a garage. The property is located close to schools and transport links, making it ideal for families and commuters. However, the property is overpriced for its size.

Therefore, we give this property 7 / 10. *Disclaimer: This is our option and does constitute a recommendation or financial advice. Do your own research. *

Price
6
Condition
8
Location
7
Land
7
Bedrooms
4
Bathrooms
3
Sqft (est)
469.20

The heatmap indicates the level of crime in the area. The color of the heatmap indicates the crime severity and recency.

Metrics Year-on-Year

Average area value
435,000.00 £
Increased by 34.82 %
from 322,647.00 £
Est sale value
217,239.60 £
Increased by 20.26 %
from 180,642.00 £
Average area rental value
1,300.00 £/mo
Increased by 1.96 %
from 1,275.00 £/mo
Est letting value
469.20 £/mo
Unchanged by 0.00 %
from 469.20 £/mo
Est rental Yield
3.59 %
Decreased by 24.26 %
from 4.74 %
Crime Rate
3.00 %
Unchanged by 0.00 %
from 3.00 %

Agent Activity

  • Vince Taylor Tofts created the listing.

Nearby Schools

NameTypeOfstedDistance
Manor Primary SchoolCommunity SchoolGood0.28 KM
Uckfield CollegeCommunity SchoolGood0.71 KM
Harlands Primary SchoolCommunity SchoolGood1.15 KM
Uckfield Children'S CentreChildren's Centre1.35 KM
St Philip'S Catholic Primary SchoolVoluntary Aided SchoolGood1.61 KM

Images

Picture No. 45 Picture No. 16 Picture No. 06 Picture No. 15 Picture No. 08 Picture No. 40 Picture No. 18 Picture No. 07 Picture No. 01 Picture No. 13 Picture No. 11 Picture No. 31 Picture No. 33 Picture No. 35 Picture No. 20 Picture No. 23 Picture No. 26 Picture No. 19 Picture No. 27 Picture No. 30 Picture No. 38 Picture No. 43 Picture No. 44

Nearby Streets

NameAverage PriceAverage SqftDistance
Hempstead Meadows Nature Walk £ 000.00 KM
Isobel Cottages £ 000.00 KM
Willow Close £ 000.00 KM
Kings Court £ 175,00000.00 KM
Hurstwood Mews £ 225,00000.00 KM

Nearby Transport

NameNLCTLCDistance
Uckfield5334UCK1.41 KM
Buxted5324BXD3.19 KM

Nearby Listings

AddressPriceTypeScoreDistance
Roman Way, Uckfield, East Sussex, TN22 £ 625,000BUY7 / 100.00 KM
Roman Way, Uckfield, TN22 £ 450,000BUYUnknown0.06 KM
Roman Way, Uckfield £ 600,000BUYUnknown0.14 KM
Barnett Way, Uckfield, TN22 1XH £ 400,000BUYUnknown0.21 KM
Roman Way, Uckfield £ 550,000BUY7 / 100.23 KM

Nearby Properties

AddressPriceDistance
18 Roman Way £ 470,0000.06 KM
22 Roman Way £ 235,0000.06 KM
24 Furnace Way £ 139,9000.10 KM
1 Furnace Way £ 243,0000.10 KM
13 Furnace Way £ 181,0000.10 KM