DEVELOPMENT OPPORTUNITY - Land at The Ridgeway, Tonbridge, TN10 4NL
By Bracketts Chartered Surveyors
£ 185,000
Reviews
2 out of 5 stars
Bracketts Chartered Surveyors says ..
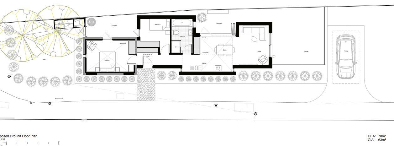
GUIDE PRICE £185,000 - £200,000 ** CASH BUYERS ONLY ** DEVELOPMENT OPPORTUNITY * Offered for sale is this opportunity to purchase a detached brick building / land on corner of Shipbourne Road / The Ridgeway housing former WCs, Tonbridge, Kent, TN10 3ER Proposed residential deve...
Property Oracle says ..
Therefore, we give this property 5 / 10. *Disclaimer: This is our option and does constitute a recommendation or financial advice. Do your own research. *
- Price
- 8
- Condition
- 1
- Location
- 7
- Land
- 6
- Bedrooms
- 2
- Bathrooms
- 1
- Sqft (est)
- 839.59
The heatmap indicates the level of crime in the area. The color of the heatmap indicates the crime severity and recency.
Metrics Year-on-Year
- Average area value
- 259,821.00 £Increased by 8.05 %
- Est sale value
- 266,150.03 £Increased by 23.83 %
- Average area rental value
- 1,011.00 £/moIncreased by 5.53 %
- Est letting value
- 839.59 £/moUnchanged by 0.00 %
- Est rental Yield
- 4.67 %Decreased by 2.30 %
- Crime Rate
- 6.00 %Unchanged by 0.00 %
from 240,470.00 £
from 214,935.04 £
from 958.00 £/mo
from 839.59 £/mo
from 4.78 %
from 6.00 %
Agent Activity
Bracketts Chartered Surveyors created the listing.
Nearby Schools
| Name | Type | Ofsted | Distance |
|---|---|---|---|
| Ymca West Kent | Special Post 16 Institution | 0.43 KM | |
| Skills For Independence And Employability Ltd | Special Post 16 Institution | 0.49 KM | |
| Hugh Christie School | Foundation School | Good | 0.64 KM |
| Cage Green Primary School | Academy Sponsor Led | 0.66 KM | |
| Hilden Grange School | Other Independent School | 0.90 KM |
Images
Nearby Streets
| Name | Average Price | Average Sqft | Distance |
|---|---|---|---|
| Rochester Road | £ 0 | 0 | 0.00 KM |
| Severn Close | £ 0 | 0 | 0.00 KM |
| Darenth Avenue | £ 0 | 0 | 0.00 KM |
| Thames Road | £ 0 | 0 | 0.00 KM |
| Wye Road | £ 0 | 0 | 0.00 KM |
Nearby Transport
| Name | NLC | TLC | Distance |
|---|---|---|---|
| Tonbridge | 5229 | TON | 2.19 KM |
| Hildenborough | 5236 | HLB | 5.96 KM |
| High Brooms | 5235 | HIB | 6.56 KM |
| Leigh (Kent) | 5294 | LIH | 7.97 KM |
| Tunbridge Wells | 5230 | TBW | 8.92 KM |
Nearby Listings
| Address | Price | Type | Score | Distance |
|---|---|---|---|---|
| DEVELOPMENT OPPORTUNITY - Land at The Ridgeway, Tonbridge, TN10 4NL | £ 185,000 | BUY | 5 / 10 | 0.00 KM |
| Exeter Close, Tonbridge, Tn10 4NS | £ 800,000 | BUY | 6 / 10 | 0.13 KM |
| Town Acres, Tonbridge, Kent, TN10 | £ 525,000 | BUY | 6 / 10 | 0.16 KM |
| Town Acres, Tonbridge, TN10 | £ 425,000 | BUY | 6 / 10 | 0.18 KM |
| Coventry Road, Tonbridge | £ 395,000 | BUY | 7 / 10 | 0.23 KM |
Nearby Properties
| Address | Price | Distance |
|---|---|---|
| 77 The Ridgeway | £ 660,000 | 0.01 KM |
| 69 The Ridgeway | £ 900,000 | 0.01 KM |
| 66a The Ridgeway | £ 905,000 | 0.01 KM |
| 71 The Ridgeway | £ 1,075,000 | 0.01 KM |
| 62 The Ridgeway | £ 360,000 | 0.01 KM |