Sandringham Avenue, Benton, Newcastle upon Tyne
By Bailey & Co.
£ 285,000
Reviews
3 out of 5 stars
Bailey & Co. says ..
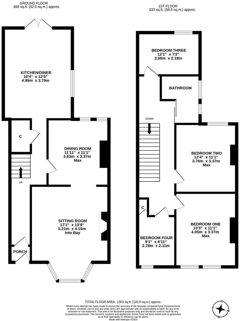
This delightful period semi-detached family home is ideally located on the south backing side Sandringham Avenue, one of Benton's most popular residential roads. Close to Station Road the property is perfectly placed to give access to surrounding greenery, the Newcastle hospitals and is placed wi...
Property Oracle says ..
This four-bedroom property is situated on Sandringham Avenue in Benton, Newcastle upon Tyne. The property benefits from a good location, being close to several schools, including Benton Dene Primary School (Outstanding Ofsted rating) and St Bartholomew’s Church of England Primary School (Good Ofsted rating). Transport links are also convenient, with several train stations within a reasonable distance. The property itself appears to be well-maintained and in good condition, as evidenced by the provided photographs. It includes a well-landscaped rear garden, adding to its appeal. While the average price per square foot in the area is £302, this property is listed at a price that seems relatively reasonable considering its condition, location, and features. However, it is worth noting that the average house price in the area is significantly higher than the list price.
Therefore, we give this property 7 / 10. *Disclaimer: This is our option and does constitute a recommendation or financial advice. Do your own research. *
- Price
- 7
- Condition
- 8
- Location
- 9
- Land
- 7
- Bedrooms
- 4
- Bathrooms
- 1
- Sqft (est)
- 987.55
- Lot (est)
- 1,301.00
The heatmap indicates the level of crime in the area. The color of the heatmap indicates the crime severity and recency.
Metrics Year-on-Year
- Average area value
- 911,990.00 £Increased by 52.54 %
- Est sale value
- 472,048.90 £Decreased by 4.59 %
- Average area rental value
- 1,200.00 £/moDecreased by 18.81 %
- Est letting value
- 0.00 £/moDecreased by 100.00 %
- Est rental Yield
- 1.58 %Decreased by 46.80 %
- Crime Rate
- 14.00 %Unchanged by 0.00 %
Agent Activity
Bailey & Co. created the listing.
Nearby Schools
| Name | Type | Ofsted | Distance |
|---|---|---|---|
| Percy Hedley Hedleys College | Special Post 16 Institution | Good | 0.35 KM |
| St Bartholomew'S Church Of England Primary School (Aided) | Voluntary Aided School | Good | 0.70 KM |
| Benton Dene School | Foundation Special School | Good | 0.83 KM |
| Benton Dene Primary School | Foundation School | Outstanding | 0.83 KM |
| Longbenton High School | Foundation School | Requires improvement | 0.83 KM |
Images
Nearby Streets
| Name | Average Price | Average Sqft | Distance |
|---|---|---|---|
| Station Approach | £ 0 | 0 | 0.00 KM |
| Connaught Gardens | £ 0 | 0 | 0.00 KM |
| St. Bartholomews Court | £ 0 | 0 | 0.00 KM |
| Front Street | £ 254,998 | 0 | 0.00 KM |
| Alford Green | £ 0 | 0 | 0.00 KM |
Nearby Transport
| Name | NLC | TLC | Distance |
|---|---|---|---|
| Manors | 7603 | MAS | 6.11 KM |
| Heworth | 7766 | HEW | 7.08 KM |
| Newcastle | 7728 | NCL | 7.42 KM |
| Cramlington | 7579 | CRM | 8.87 KM |
Nearby Listings
| Address | Price | Type | Score | Distance |
|---|---|---|---|---|
| Sandringham Avenue, Benton, Newcastle upon Tyne | £ 285,000 | BUY | 7 / 10 | 0.00 KM |
| Sandringham Avenue, Benton, Newcastle upon Tyne | £ 285,000 | BUY | 7 / 10 | 0.01 KM |
| Sandringham Avenue, Benton, Newcastle upon Tyne | £ 265,000 | BUY | Unknown | 0.04 KM |
| Sandringham Avenue, Benton, NE12 | £ 260,000 | BUY | Unknown | 0.05 KM |
| Eastfield Terrace, Benton, Newcastle upon Tyne | £ 350,000 | BUY | 7 / 10 | 0.10 KM |
Nearby Properties
| Address | Price | Distance |
|---|---|---|
| 3 Eastfield Terrace | £ 301,000 | 0.11 KM |
| 5 Maddox Road | £ 235,000 | 0.16 KM |
| 9 Oakhurst Terrace | £ 380,000 | 0.16 KM |
| 4 Oakhurst Terrace | £ 380,000 | 0.16 KM |
| 2 Oakhurst Terrace | £ 338,000 | 0.16 KM |