Harris & Co says ..
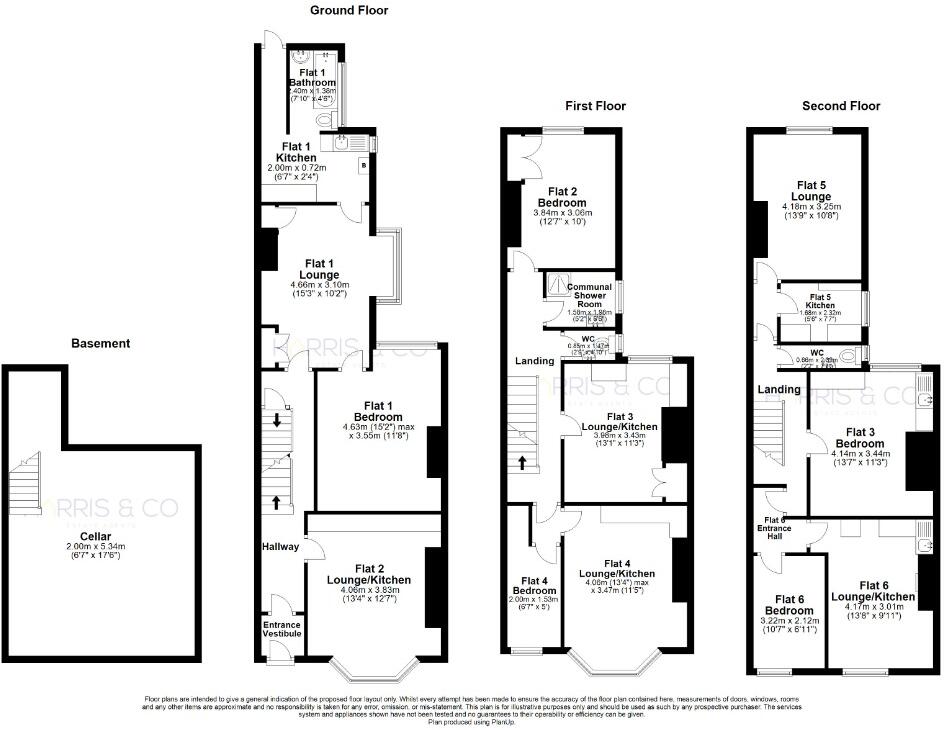
** GENEROUSLY SIZED TERRACE PROPERTY SET UP AS HMO WITH 7 UNITS - SOLD PARTLY OCCUPIED **The property is situated on the Tree Lined London Street which onlooks The Mount, Fleetwood and is just off Lord Street being very conveniently placed for Local Shops as well as Sch...
Property Oracle says ..
This seven-bedroom property on London Street in Fleetwood, Lancashire, is listed for £150,000. Marketing materials describe it as a generously sized terrace property set up as an HMO (House in Multiple Occupancy), currently sold partially occupied. The property is conveniently located near local shops and schools, including St. Mary’s Catholic Primary School. The images show a basic but functional interior, suggesting a property suitable for renovation or as a potential investment opportunity. While the lack of information on square footage is a concern, the list price seems relatively competitive in comparison to some other areas nearby. The absence of a garden is a significant drawback, especially given the property’s intended use as an HMO. Additional information on local comparable property sales, the condition of services and infrastructure, and the overall rental market in Fleetwood would improve the assessment. The property presents both opportunities and challenges, particularly considering the need for updates and the lack of exterior space. A potential investor or buyer should conduct thorough due diligence before making a purchase decision to ensure a fair price and accurate assessment of potential returns. The property’s seven bedrooms could be attractive to students or those seeking rental income, but a lack of external space might be a detriment. The nearby amenities and schools might be a positive for families or those concerned about proximity to amenities.
Therefore, we give this property 4 / 10. *Disclaimer: This is our option and does constitute a recommendation or financial advice. Do your own research. *
- Price
- 7
- Condition
- 5
- Location
- 6
- Land
- 1
- Bedrooms
- 7
- Bathrooms
- 2
- Sqft (est)
- 2,505.19
The heatmap indicates the level of crime in the area. The color of the heatmap indicates the crime severity and recency.
Metrics Year-on-Year
- Average area value
- 149,279.00 £Increased by 11.60 %
- Est sale value
- 373,273.31 £Decreased by 28.37 %
- Average area rental value
- 713.00 £/moIncreased by 19.23 %
- Est letting value
- 0.00 £/mo
- Est rental Yield
- 5.73 %Increased by 6.90 %
- Crime Rate
- 28.00 %Unchanged by 0.00 %
Agent Activity
Harris & Co created the listing.
Nearby Schools
| Name | Type | Ofsted | Distance |
|---|---|---|---|
| St Mary'S Catholic Primary School, Fleetwood | Voluntary Aided School | Good | 0.00 KM |
| Sure Start Fleetwood Children'S Centre | Children's Centre | 0.47 KM | |
| Fleetwood Chaucer Community Primary School | Community School | Requires improvement | 0.59 KM |
| Shakespeare Primary School | Community School | Outstanding | 1.81 KM |
| St Wulstan'S And St Edmund'S Catholic Primary School And Nursery | Voluntary Aided School | Requires improvement | 2.20 KM |
Images
Nearby Streets
| Name | Average Price | Average Sqft | Distance |
|---|---|---|---|
| Queen Street | £ 0 | 0 | 0.00 KM |
| A585 | £ 0 | 0 | 0.00 KM |
| Albert Street | £ 0 | 0 | 0.00 KM |
| Darbishire Road | £ 350,000 | 0 | 0.00 KM |
| Deepdale Road | £ 84,950 | 0 | 0.00 KM |
Nearby Transport
| Name | NLC | TLC | Distance |
|---|---|---|---|
| Poulton-Le-Fylde | 2671 | PFY | 8.85 KM |
Nearby Listings
| Address | Price | Type | Score | Distance |
|---|---|---|---|---|
| Flat 3, London Street, Fleetwood, FY7 | £ 95,000 | BUY | 6 / 10 | 0.00 KM |
| London Street, Fleetwood, FY7 | £ 150,000 | BUY | 4 / 10 | 0.00 KM |
| Westby Grove, Fleetwood, FY7 | £ 105,000 | BUY | 5 / 10 | 0.06 KM |
| London Street, Fleetwood, Lancashire, FY7 6EU | £ 120,000 | BUY | 6 / 10 | 0.08 KM |
| Blakiston Street, Fleetwood, FY7 | £ 160,000 | BUY | 5 / 10 | 0.08 KM |
Nearby Properties
| Address | Price | Distance |
|---|---|---|
| 104 London Street | £ 105,000 | 0.00 KM |
| 96 - 98 London Street | £ 52,000 | 0.00 KM |
| 118 London Street | £ 130,000 | 0.02 KM |
| 122 London Street | £ 152,500 | 0.02 KM |
| 120 London Street | £ 120,000 | 0.02 KM |