Robert Watts says ..
** OFFERED WITH NO CHAIN ** POPULAR STYLE OF SEMI DETACHED BUNGALOW ** LOTS OF POTENTIAL ** LARGE ATTIC ROOM ** Viewing is strongly advised for this SEMI DETACHED BUNGALOW situated within a cul de sac position, close to many amenities, and well placed for commute to the city centre. Briefly compr...
Property Oracle says ..
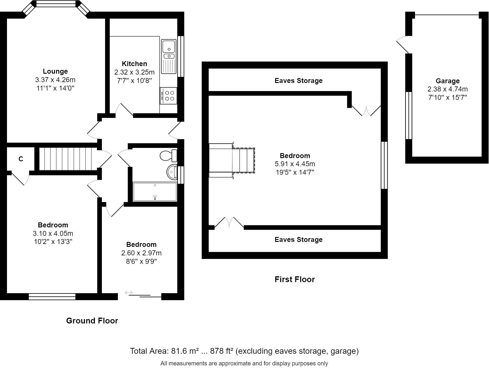
The property is a 2 bedroom bungalow situated on Fairway Drive, Bradford. It has 854.22 sqft of living space and an 878.34 sqft plot. The asking price is £189,000.
The property appears to be in generally good condition, although some aspects suggest it may benefit from some modernisation. The interior shows dated decor and furnishings, indicating a potential need for updating to enhance its appeal and value. The kitchen and bathroom appear functional but could benefit from refurbishment. The exterior is well-maintained with a garden and shed.
The location in Great Horton, Bradford, is reasonably convenient. Nearby schools like Reevy Hill Primary School and Brackenhill Primary School are rated ‘Good’ by Ofsted, and several train stations are within a reasonable distance, providing access to commuting options. However, the area’s average house price is significantly higher than the subject property’s asking price, suggesting a possible lower demand or desirability in the immediate vicinity.
The property includes a garden, which is a positive feature. The size of the plot is relatively modest, but sufficient for a bungalow of this size.
Considering the property’s condition, location, and land, the asking price of £189,000 appears to be relatively reasonable compared to other properties in the area. While the average house price in the area is much higher, the smaller size and potential need for modernisation explain the lower price point. The nearby listings show a range of prices, with some properties being listed at similar or slightly higher prices. However, the lack of sqft data for these comparable properties makes a precise comparison difficult.
Therefore, we give this property 6 / 10. *Disclaimer: This is our option and does constitute a recommendation or financial advice. Do your own research. *
- Price
- 7
- Condition
- 7
- Location
- 6
- Land
- 6
- Bedrooms
- 2
- Bathrooms
- 1
- Sqft (est)
- 854.22
- Lot (est)
- 878.34
The heatmap indicates the level of crime in the area. The color of the heatmap indicates the crime severity and recency.
Metrics Year-on-Year
- Average area value
- 856,250.00 £Increased by 15.74 %
- Est sale value
- 606,496.20 £Increased by 21.37 %
- Average area rental value
- 2,000.00 £/moDecreased by 15.25 %
- Est letting value
- 854.22 £/moUnchanged by 0.00 %
- Est rental Yield
- 2.80 %Decreased by 26.89 %
- Crime Rate
- 2.00 %Unchanged by 0.00 %
Agent Activity
Robert Watts created the listing.
Nearby Schools
| Name | Type | Ofsted | Distance |
|---|---|---|---|
| Reevy Hill Children'S Centre | Children's Centre | 0.65 KM | |
| Buttershaw Business & Enterprise College Academy | Academy Sponsor Led | Requires improvement | 0.69 KM |
| Reevy Hill Primary School | Academy Sponsor Led | Good | 0.77 KM |
| Brackenhill Primary School | Community School | Good | 0.87 KM |
| Southmere Primary Academy | Academy Sponsor Led | 1.07 KM |
Images
Nearby Streets
| Name | Average Price | Average Sqft | Distance |
|---|---|---|---|
| Beacon Grove | £ 0 | 0 | 0.00 KM |
| Kenley Avenue | £ 0 | 0 | 0.00 KM |
| Farhills | £ 145,000 | 0 | 0.00 KM |
| Beacon Road | £ 180,421 | 0 | 0.00 KM |
| The Crescent | £ 0 | 0 | 0.00 KM |
Nearby Transport
| Name | NLC | TLC | Distance |
|---|---|---|---|
| Low Moor | 8416 | LMR | 4.80 KM |
| Bradford Interchange | 8345 | BDI | 5.09 KM |
| Bradford Forster Square | 8346 | BDQ | 5.09 KM |
| Frizinghall | 8556 | FZH | 5.98 KM |
| Shipley (Yorks) | 8347 | SHY | 7.14 KM |
Nearby Listings
| Address | Price | Type | Score | Distance |
|---|---|---|---|---|
| Fairway Drive, Bradford, BD7 | £ 189,000 | BUY | 6 / 10 | 0.00 KM |
| Fairway Drive, Bradford | £ 220,000 | BUY | 5 / 10 | 0.01 KM |
| Fairway, Bradford | £ 170,000 | BUY | 7 / 10 | 0.13 KM |
| Fairway Walk, Bradford, BD7 | £ 240,000 | BUY | 7 / 10 | 0.14 KM |
| Fairway Walk, Horton Bank Top, Bradford, BD7 | £ 185,000 | BUY | Unknown | 0.19 KM |
Nearby Properties
| Address | Price | Distance |
|---|---|---|
| 7 Fairway Drive | £ 129,000 | 0.01 KM |
| 4 Fairway Drive | £ 122,500 | 0.01 KM |
| 11 Fairway Drive | £ 165,000 | 0.01 KM |
| 10 Fairway Drive | £ 127,000 | 0.01 KM |
| 2 Fairway Drive | £ 160,000 | 0.01 KM |