Priory Grove, South Tonbridge
By Waghorn & Company
£ 395,000
Reviews
4 out of 5 stars
Waghorn & Company says ..
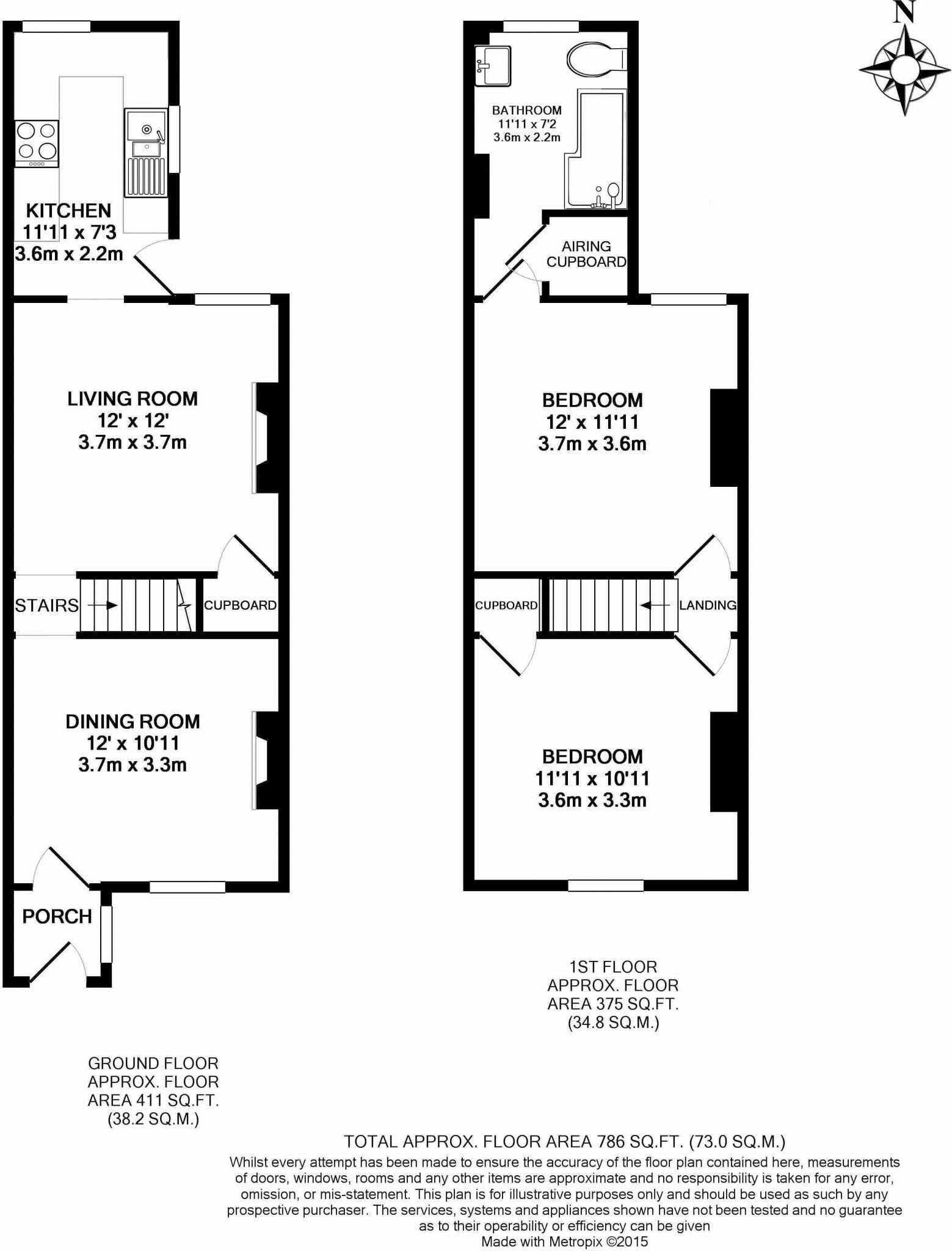
Waghorn and Company are proud to offer for sale this charming two bedroom Victorian cottage located in a quiet location just a short walk from Tonbridge Mainline Railway Station and Town Centre. This property has been vastly improved by the current owners with the added benefits of an allocated ...
Property Oracle says ..
This property is a charming 2-bedroom terraced house located in South Tonbridge, Kent. The asking price of £395,000 is significantly lower than the average house price in the area (£814,660), suggesting it could represent good value for money, especially considering its renovated and well-maintained condition. The property benefits from a private garden, adding to its appeal. While the plot size is small, the garden is well-maintained and offers a pleasant outdoor space. The location is convenient, with nearby schools (including highly-rated grammar schools) and transport links. Overall, this property presents a compelling opportunity for buyers seeking a well-presented home in a desirable location at a competitive price.
Therefore, we give this property 8 / 10. *Disclaimer: This is our option and does constitute a recommendation or financial advice. Do your own research. *
- Price
- 9
- Condition
- 9
- Location
- 8
- Land
- 6
- Bedrooms
- 2
- Bathrooms
- 1
- Sqft (est)
- 785.77
The heatmap indicates the level of crime in the area. The color of the heatmap indicates the crime severity and recency.
Metrics Year-on-Year
- Average area value
- 432,250.00 £Decreased by 1.11 %
- Est sale value
- 808,557.33 £Increased by 80.84 %
- Average area rental value
- 1,183.00 £/moDecreased by 16.87 %
- Est letting value
- 1,571.54 £/moIncreased by 100.00 %
- Est rental Yield
- 3.28 %Decreased by 16.11 %
- Crime Rate
- 9.00 %Unchanged by 0.00 %
Agent Activity
Waghorn & Company marked this listing as sold.
Waghorn & Company created the listing.
Nearby Schools
| Name | Type | Ofsted | Distance |
|---|---|---|---|
| South Tonbridge Children'S Centre | Children's Centre | 0.40 KM | |
| Tonbridge Grammar School | Academy Converter | Outstanding | 0.59 KM |
| Royal Rise Primary School | Academy Sponsor Led | Good | 0.86 KM |
| The Judd School | Voluntary Aided School | Outstanding | 0.92 KM |
| Slade Primary School And Attached Unit For Children With Hearing Impairment | Community School | Outstanding | 0.94 KM |
Images
Nearby Streets
| Name | Average Price | Average Sqft | Distance |
|---|---|---|---|
| High Street | £ 252,000 | 0 | 0.00 KM |
| MU31 | £ 0 | 0 | 0.00 KM |
| Northcote Road | £ 0 | 0 | 0.00 KM |
| High Street | £ 260,500 | 0 | 0.00 KM |
| Fairview Close | £ 0 | 0 | 0.00 KM |
Nearby Transport
| Name | NLC | TLC | Distance |
|---|---|---|---|
| Tonbridge | 5229 | TON | 0.27 KM |
| High Brooms | 5235 | HIB | 4.50 KM |
| Hildenborough | 5236 | HLB | 5.69 KM |
| Tunbridge Wells | 5230 | TBW | 6.69 KM |
| Leigh (Kent) | 5294 | LIH | 6.88 KM |
Nearby Listings
| Address | Price | Type | Score | Distance |
|---|---|---|---|---|
| Priory Grove, South Tonbridge | £ 395,000 | BUY | 8 / 10 | 0.00 KM |
| Priory Mews , Priory Street, Tonbridge, Kent. TN9 2AW | £ 595,000 | BUY | 8 / 10 | 0.06 KM |
| Plot 11 Priory Mews , Priory Street, Tonbridge, Kent. TN9 2GG | £ 650,000 | BUY | 7 / 10 | 0.06 KM |
| Priory Mews , Priory Street, Tonbridge, Kent. TN9 2AW | £ 595,000 | BUY | 5 / 10 | 0.06 KM |
| Priory Mews , Priory Street, Tonbridge, Kent. TN9 2AW | £ 575,000 | BUY | Unknown | 0.06 KM |
Nearby Properties
| Address | Price | Distance |
|---|---|---|
| 1 Priory Grove | £ 285,000 | 0.01 KM |
| 8 Priory Grove | £ 240,000 | 0.01 KM |
| 2 Priory Grove | £ 227,500 | 0.01 KM |
| 12 Priory Grove | £ 301,000 | 0.01 KM |
| 11 Priory Grove | £ 300,000 | 0.01 KM |