QU
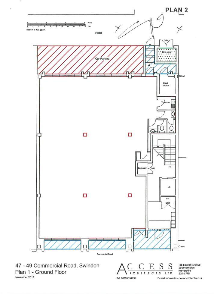
Westcott House, 47-49 Commercial Road, Swindon, Wiltshire
By Quintons
£ 250,000
Quintons says ..
The property comprises the ground floor retail / office space and the freehold of 14 residential apartments (sold off). The building is a 4 storey brick built structure converted in 2007. The ground floor comprises open plan space with double entrance doors, carpets to the floors, suspended cei...
- Bedrooms
- 0
- Bathrooms
- 0
The heatmap indicates the level of crime in the area. The color of the heatmap indicates the crime severity and recency.
Metrics Year-on-Year
- Average area value
- 487,124.00 £Increased by 94.35 %
- Average area rental value
- 1,220.00 £/moIncreased by 6.46 %
- Est rental Yield
- 3.01 %Decreased by 45.17 %
- Crime Rate
- 12.00 %Unchanged by 0.00 %
from 250,641.00 £
from 1,146.00 £/mo
from 5.49 %
from 12.00 %
Agent Activity
Quintons created the listing.
Nearby Schools
| Name | Type | Ofsted | Distance |
|---|---|---|---|
| Utc Swindon | University Technical College | Requires improvement | 0.84 KM |
| Holy Rood Catholic Primary School | Academy Converter | Requires improvement | 0.90 KM |
| King William Street Church Of England Primary School | Academy Converter | Good | 0.95 KM |
| The Commonweal School | Academy Converter | Good | 1.10 KM |
| Robert Le Kyng Primary School | Community School | Good | 1.13 KM |
Images
Nearby Streets
| Name | Average Price | Average Sqft | Distance |
|---|---|---|---|
| Market Street | £ 0 | 0 | 0.00 KM |
| Havelock Square | £ 0 | 0 | 0.00 KM |
| King Street | £ 0 | 0 | 0.00 KM |
| Fleet Square | £ 0 | 0 | 0.00 KM |
| Chester Street | £ 240,000 | 0 | 0.00 KM |
Nearby Transport
| Name | NLC | TLC | Distance |
|---|---|---|---|
| Swindon (Wilts) | 3333 | SWI | 0.74 KM |
Nearby Listings
| Address | Price | Type | Score | Distance |
|---|---|---|---|---|
| Westcott House, 47-49 Commercial Road, Swindon, Wiltshire | £ 250,000 | BUY | Unknown | 0.00 KM |
| Morse Street, Swindon, Wiltshire, SN1 | £ 185,000 | BUY | 5 / 10 | 0.06 KM |
| Newhall Street, Town Centre, Swindon, SN1 | £ 250,000 | BUY | 6 / 10 | 0.11 KM |
| Morse Street, Swindon | £ 200,000 | BUY | 6 / 10 | 0.15 KM |
| Deacon Street, Swindon, Wiltshire, SN1 | £ 200,000 | BUY | 6 / 10 | 0.16 KM |
Nearby Properties
| Address | Price | Distance |
|---|---|---|
| 11 Morse Street | £ 162,000 | 0.06 KM |
| 63 Morse Street | £ 225,000 | 0.06 KM |
| 13 Morse Street | £ 160,000 | 0.06 KM |
| 9 Morse Street | £ 142,000 | 0.06 KM |
| 64 Morse Street | £ 215,000 | 0.06 KM |