Lower Hollins, Sowerby Bridge
By Wainhouse Properties Limited
£ 90,000
Reviews
2 out of 5 stars
Wainhouse Properties Limited says ..
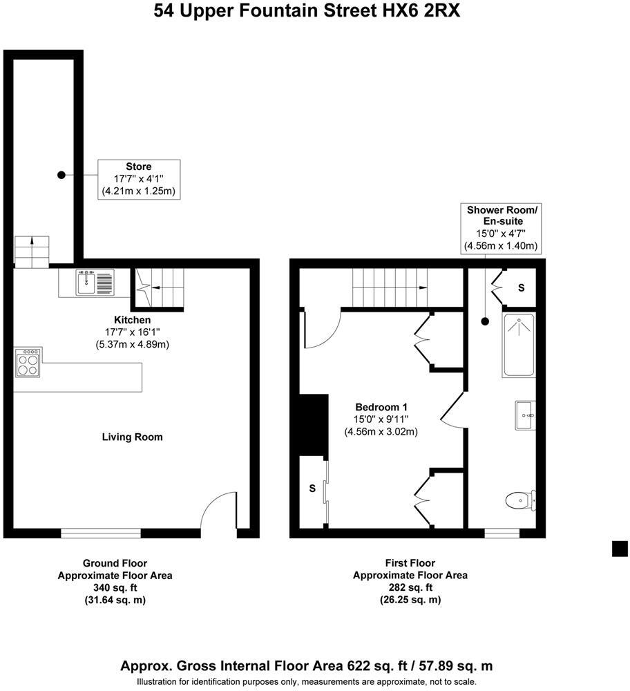
Nestled in the charming area of Lower Hollins, Sowerby Bridge, this delightful mid-terrace house presents an excellent opportunity for investors. Built in 1900, the property has been well maintained throughout, ensuring a comfortable living environment for its occupants. Spanning an area of 527 s...
Property Oracle says ..
This property is a one-bedroom, one-bathroom terraced house located in Sowerby Bridge, Calderdale. The property benefits from a small front garden, and appears to be in reasonable condition although some modernisation may be desirable. The location is convenient with nearby schools and a train station. However, the provided data does not include sufficient information to accurately assess the price per square foot, making a definitive judgement on value difficult. More information on comparable properties and the local market is needed for a complete price evaluation.
Therefore, we give this property 5 / 10. *Disclaimer: This is our option and does constitute a recommendation or financial advice. Do your own research. *
- Price
- 5
- Condition
- 6
- Location
- 7
- Land
- 3
- Bedrooms
- 1
- Bathrooms
- 1
- Sqft (est)
- 622.00
The heatmap indicates the level of crime in the area. The color of the heatmap indicates the crime severity and recency.
Metrics Year-on-Year
- Average area value
- 225,000.00 £Increased by 3.20 %
- Est sale value
- 115,070.00 £Decreased by 26.29 %
- Average area rental value
- 809.00 £/moIncreased by 21.84 %
- Est letting value
- 0.00 £/mo
- Est rental Yield
- 4.31 %Increased by 18.08 %
- Crime Rate
- 22.00 %Unchanged by 0.00 %
Agent Activity
Wainhouse Properties Limited created the listing.
Nearby Schools
| Name | Type | Ofsted | Distance |
|---|---|---|---|
| Tuel Lane Infant School | Community School | Good | 0.20 KM |
| New Road Primary School | Community School | Good | 0.68 KM |
| New Road Children'S Centre | Children's Centre | 0.68 KM | |
| Trinity Academy Grammar | Academy Sponsor Led | 0.69 KM | |
| Warley Town School | Community School | Good | 0.83 KM |
Images
Nearby Streets
| Name | Average Price | Average Sqft | Distance |
|---|---|---|---|
| Fern Lea Street | £ 200,000 | 0 | 0.00 KM |
| Dalton Street | £ 100,000 | 0 | 0.00 KM |
| Belgrave Street | £ 0 | 0 | 0.00 KM |
| Hollins Bungalows | £ 0 | 0 | 0.00 KM |
| Poplar Avenue | £ 150,000 | 0 | 0.00 KM |
Nearby Transport
| Name | NLC | TLC | Distance |
|---|---|---|---|
| Sowerby Bridge | 8527 | SOW | 0.90 KM |
| Halifax | 8411 | HFX | 6.82 KM |
| Mytholmroyd | 8526 | MYT | 7.67 KM |
Nearby Listings
| Address | Price | Type | Score | Distance |
|---|---|---|---|---|
| Lower Hollins, Sowerby Bridge | £ 90,000 | BUY | 5 / 10 | 0.00 KM |
| HOLLINS LANE, SOWERBY BRIDGE, HX6 | £ 200,000 | BUY | 6 / 10 | 0.03 KM |
| Industrial Road, SOWERBY BRIDGE | £ 110,000 | BUY | 6 / 10 | 0.04 KM |
| Industrial Road, Sowerby Bridge | £ 100,000 | BUY | Unknown | 0.04 KM |
| Upper Fountain Street, Sowerby Bridge | £ 135,950 | BUY | 5 / 10 | 0.07 KM |
Nearby Properties
| Address | Price | Distance |
|---|---|---|
| 29 Hollins Lane | £ 160,000 | 0.03 KM |
| 41 Hollins Lane | £ 75,000 | 0.03 KM |
| 17 Hollins Lane | £ 199,999 | 0.03 KM |
| 31 Hollins Lane | £ 152,500 | 0.03 KM |
| 23 Hollins Lane | £ 200,000 | 0.03 KM |