Kingshurst Gardens, Badsey, Evesham, Worcestershire, WR11
By Reeds Rains
£ 370,000
Reviews
3 out of 5 stars
Reeds Rains says ..
A SUPERB HOUSE, WITH GREAT STYLE AND FINISH IN AN EXCLUSIVE VILLAGE SETTING. Kingshurst is a most attractive location with open greens, and located on the edge of this very popular village. Badsey has local shops, pubs, sports facilities, church and is close to Broadway, the Cotswolds and a rail ...
Property Oracle says ..
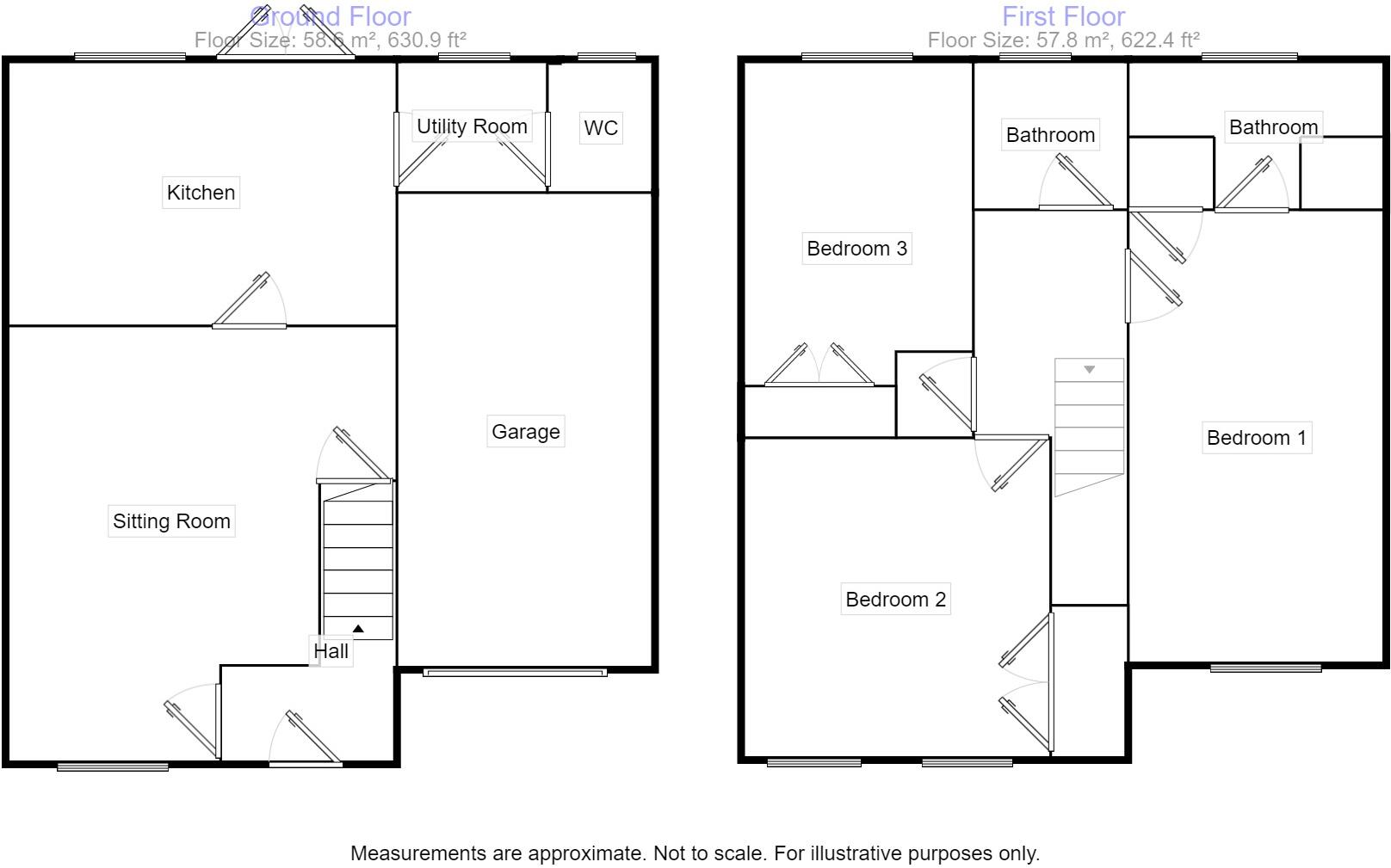
This 3-bedroom, 2-bathroom property located in Kingshurst Gardens, Badsey, offers a pleasant blend of village living and modern convenience. Badsey itself is a charming village with local amenities, and its proximity to the Cotswolds adds to its appeal. The property itself appears well-maintained based on the images, showcasing a modern kitchen and bathrooms, and a generally clean and tidy interior. The presence of a garden is a plus, although its size isn’t specified. The asking price of £370,000 positions it within the market range for similar properties in the area, though a detailed analysis of local price per square foot would offer further insight. Buyers seeking a balance between village tranquility and access to amenities may find this property attractive. The lack of information on plot size makes a definitive pricing analysis challenging. Future buyers should verify property features and dimensions independently before reaching a final decision.
Therefore, we give this property 6 / 10. *Disclaimer: This is our option and does constitute a recommendation or financial advice. Do your own research. *
- Price
- 7
- Condition
- 8
- Location
- 7
- Land
- 4
- Bedrooms
- 3
- Bathrooms
- 2
- Sqft (est)
- 1,203.30
The heatmap indicates the level of crime in the area. The color of the heatmap indicates the crime severity and recency.
Metrics Year-on-Year
- Average area value
- 228,000.00 £Increased by 7.96 %
- Est sale value
- 267,132.60 £Increased by 48.00 %
- Average area rental value
- 776.00 £/moDecreased by 23.55 %
- Est letting value
- 0.00 £/mo
- Est rental Yield
- 4.08 %Decreased by 29.29 %
- Crime Rate
- 9.00 %Unchanged by 0.00 %
Agent Activity
Reeds Rains marked this listing as sold.
Reeds Rains created the listing.
Nearby Schools
| Name | Type | Ofsted | Distance |
|---|---|---|---|
| Badsey First School | Academy Sponsor Led | 1.01 KM | |
| Blackminster Middle School | Community School | Good | 1.70 KM |
| The Littletons Church Of England Academy | Academy Converter | Good | 2.65 KM |
| Bretforton Village School | Academy Sponsor Led | 2.87 KM | |
| Offenham Church Of England First School | Academy Converter | Good | 4.62 KM |
Images
Nearby Streets
| Name | Average Price | Average Sqft | Distance |
|---|---|---|---|
| The Quarry | £ 0 | 0 | 0.00 KM |
| The Hop Gardens | £ 675,000 | 0 | 0.00 KM |
| Manor Gardens | £ 0 | 0 | 0.00 KM |
| Chestnut Close | £ 230,000 | 0 | 0.00 KM |
Nearby Transport
| Name | NLC | TLC | Distance |
|---|---|---|---|
| Evesham | 4740 | EVE | 6.25 KM |
| Honeybourne | 4794 | HYB | 6.45 KM |
Nearby Listings
| Address | Price | Type | Score | Distance |
|---|---|---|---|---|
| Kingshurst Gardens, Badsey, Evesham, Worcestershire, WR11 | £ 370,000 | BUY | 6 / 10 | 0.00 KM |
| Kingshurst Drive, Badsey, WR11 7ZF | £ 390,000 | BUY | 7 / 10 | 0.01 KM |
| Bourton Gardens, Kingshurst Drive, Badsey, Worcestershire, WR11 | £ 684,950 | BUY | 7 / 10 | 0.03 KM |
| Bourton Gardens, Kingshurst Drive, Badsey, Worcestershire, WR11 | £ 734,950 | BUY | 7 / 10 | 0.03 KM |
| Bourton Gardens, Kingshurst Drive, Badsey, Worcestershire, WR11 | £ 734,950 | BUY | 8 / 10 | 0.03 KM |
Nearby Properties
| Address | Price | Distance |
|---|---|---|
| 61a Bretforton Road | £ 345,000 | 0.13 KM |
| 36a Bretforton Road | £ 350,000 | 0.14 KM |
| 111 Bretforton Road | £ 180,000 | 0.15 KM |
| 40a Bretforton Road | £ 217,000 | 0.15 KM |
| 61b Bretforton Road | £ 250,000 | 0.15 KM |