TA
Birch Road, Oldbury, B68 0EP
By Taylors Estate Agents
£ 249,950
Reviews
3 out of 5 stars
Taylors Estate Agents says ..
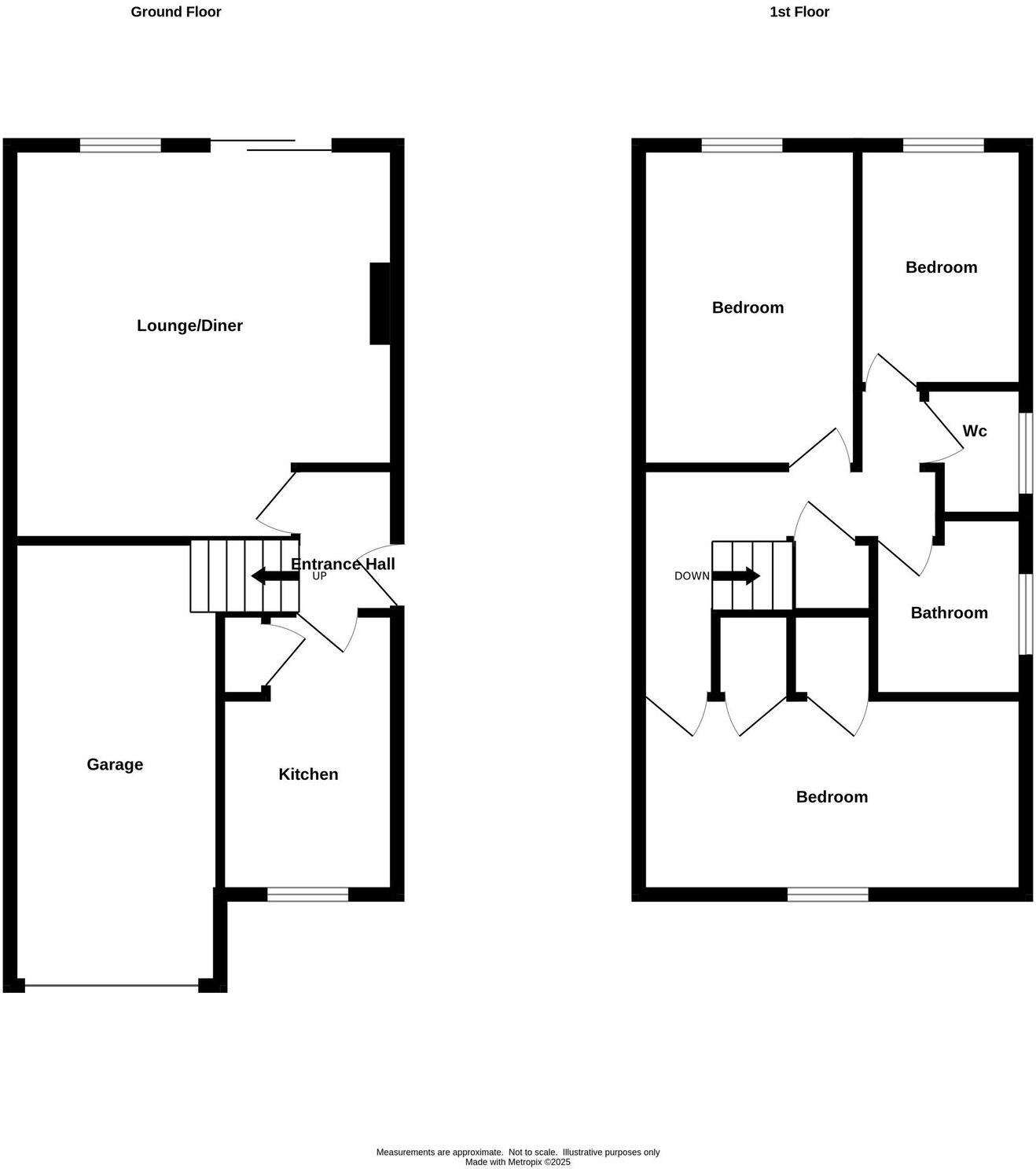
A three bedroom semi detached home in convenient position. Having NO UPWARD CHAIN, gas central heating and PVC double glazing. Requiring some updating - Hall, Spacious Living Room, Kitchen, Three Decent Bedrooms, Bathroom, Separate WC. Garage and pleasant Rear Garden.
Property Oracle says ..
Therefore, we give this property 6 / 10. *Disclaimer: This is our option and does constitute a recommendation or financial advice. Do your own research. *
- Price
- 7
- Condition
- 4
- Location
- 7
- Land
- 6
- Bedrooms
- 3
- Bathrooms
- 1
The heatmap indicates the level of crime in the area. The color of the heatmap indicates the crime severity and recency.
Metrics Year-on-Year
- Average area value
- 317,500.00 £Increased by 26.46 %
- Average area rental value
- 900.00 £/moDecreased by 13.71 %
- Est rental Yield
- 3.40 %Decreased by 31.86 %
- Crime Rate
- 3.00 %Unchanged by 0.00 %
from 251,061.00 £
from 1,043.00 £/mo
from 4.99 %
from 3.00 %
Agent Activity
Taylors Estate Agents marked this listing as sold.
Taylors Estate Agents created the listing.
Nearby Schools
| Name | Type | Ofsted | Distance |
|---|---|---|---|
| Lightwoods Primary Academy | Academy Sponsor Led | 0.35 KM | |
| Bleakhouse Primary School | Community School | Good | 1.16 KM |
| Woodhouse Primary Academy | Academy Sponsor Led | Good | 1.30 KM |
| Brandhall Primary School | Community School | Good | 1.41 KM |
| World'S End Infant And Nursery School | Community School | Good | 1.53 KM |
Images
Nearby Streets
| Name | Average Price | Average Sqft | Distance |
|---|---|---|---|
| Birch Grove | £ 363,750 | 0 | 0.00 KM |
| Kenilworth Road | £ 311,667 | 0 | 0.00 KM |
| Birch Road | £ 315,769 | 0 | 0.00 KM |
| Albert Road | £ 0 | 0 | 0.00 KM |
| Hollybush Grove | £ 225,000 | 0 | 0.00 KM |
Nearby Transport
| Name | NLC | TLC | Distance |
|---|---|---|---|
| Langley Green | 4607 | LGG | 3.27 KM |
| Smethwick Rolfe Street | 1150 | SMR | 4.07 KM |
| Smethwick Galton Bridge | 1114 | SGB | 4.09 KM |
| Rowley Regis | 4606 | ROW | 4.37 KM |
| Sandwell And Dudley | 1149 | SAD | 5.07 KM |
Nearby Listings
| Address | Price | Type | Score | Distance |
|---|---|---|---|---|
| Birch Road, Oldbury, B68 0EP | £ 249,950 | BUY | 6 / 10 | 0.00 KM |
| Birch Road, Oldbury, West Midlands, B68 | £ 320,000 | BUY | 7 / 10 | 0.00 KM |
| Birch Road, Oldbury | £ 525,000 | BUY | 7 / 10 | 0.06 KM |
| Birch Road, Oldbury | £ 260,000 | BUY | Unknown | 0.06 KM |
| Birch Walk, Oldbury | £ 350,000 | BUY | Unknown | 0.08 KM |
Nearby Properties
| Address | Price | Distance |
|---|---|---|
| 153 Birch Road | £ 154,950 | 0.00 KM |
| 157 Birch Road | £ 170,000 | 0.00 KM |
| 69 Birch Road | £ 165,000 | 0.00 KM |
| 63 Birch Road | £ 125,000 | 0.00 KM |
| 165 Birch Road | £ 65,000 | 0.00 KM |