Williams Road, Shoreham by Sea
By Jacobs Steel
£ 600,000
Reviews
3 out of 5 stars
Jacobs Steel says ..
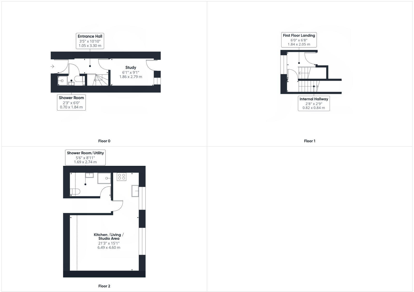
We are delighted to offer for sale this unique opportunely to acquire this Freehold development formed of a Three Bedroom Maisonette and Studio Flat, offered with no onward chain.
Property Oracle says ..
The property is located on Williams Road in Shoreham by Sea, a town in West Sussex. Based on the provided information and images, the property appears to be a three-bedroom, three-bathroom house. The property has a garden, which includes a patio area and a lawn. The property seems to be in good condition, with well-maintained interiors and exteriors. The property is within a reasonable distance of several schools, including Shoreham Academy, which has an ‘Outstanding’ Ofsted rating, and several other schools with ‘Good’ ratings. The nearest train station, Shoreham-By-Sea, is approximately 2.09 KM away.
The average house price in the area is significantly higher than the list price of this property. However, the average square footage of homes in the area is also much larger than this property at 1415 sqft compared to 517.93 sqft. The average price per square foot in the area is £498.00. While the list price of £600,000 may seem reasonable considering the location and condition, the smaller size of the property compared to the average in the area is a factor to consider. The lack of plot size information makes it difficult to fully assess the value for money but the provided images show a garden.
Therefore, we give this property 7 / 10. *Disclaimer: This is our option and does constitute a recommendation or financial advice. Do your own research. *
- Price
- 7
- Condition
- 8
- Location
- 8
- Land
- 7
- Bedrooms
- 3
- Bathrooms
- 3
- Sqft (est)
- 517.93
The heatmap indicates the level of crime in the area. The color of the heatmap indicates the crime severity and recency.
Metrics Year-on-Year
- Average area value
- 830,864.00 £Increased by 21.56 %
- Est sale value
- 458,885.98 £Increased by 57.65 %
- Average area rental value
- 1,899.00 £/moIncreased by 17.22 %
- Est letting value
- 1,035.86 £/moIncreased by 100.00 %
- Est rental Yield
- 2.74 %Decreased by 3.52 %
- Crime Rate
- 5.00 %Unchanged by 0.00 %
Agent Activity
Jacobs Steel created the listing.
Nearby Schools
| Name | Type | Ofsted | Distance |
|---|---|---|---|
| Shoreham College | Other Independent School | 0.82 KM | |
| Shoreham Academy | Academy Sponsor Led | Outstanding | 0.82 KM |
| Kingston Buci Children & Family Centre | Children's Centre | 0.89 KM | |
| Herons Dale School | Community Special School | Good | 1.00 KM |
| Holmbush Primary Academy | Academy Converter | Good | 1.10 KM |
Images
Nearby Streets
| Name | Average Price | Average Sqft | Distance |
|---|---|---|---|
| Middle Road | £ 300,000 | 0 | 0.00 KM |
| Middle Road | £ 325,000 | 0 | 0.00 KM |
| Chiltern Close | £ 400,000 | 0 | 0.00 KM |
| Kent Close | £ 0 | 0 | 0.00 KM |
| Royal George Parade | £ 0 | 0 | 0.00 KM |
Nearby Transport
| Name | NLC | TLC | Distance |
|---|---|---|---|
| Southwick | 5286 | SWK | 1.94 KM |
| Shoreham-By-Sea | 5277 | SSE | 2.09 KM |
| Fishersgate | 5284 | FSG | 3.72 KM |
| Portslade | 5276 | PLD | 5.27 KM |
| Aldrington | 5280 | AGT | 7.65 KM |
Nearby Listings
| Address | Price | Type | Score | Distance |
|---|---|---|---|---|
| Williams Road, Shoreham by Sea | £ 600,000 | BUY | 7 / 10 | 0.00 KM |
| Williams Road, Shoreham by Sea | £ 225,000 | BUY | 6 / 10 | 0.00 KM |
| Williams Road, Shoreham by Sea | £ 375,000 | BUY | 7 / 10 | 0.01 KM |
| Williams Road, Shoreham-by-Sea | £ 350,000 | BUY | 7 / 10 | 0.08 KM |
| Williams Road, Shoreham-by-Sea | £ 300,000 | BUY | 6 / 10 | 0.08 KM |
Nearby Properties
| Address | Price | Distance |
|---|---|---|
| 90 Williams Road | £ 190,000 | 0.06 KM |
| 104 Williams Road | £ 420,000 | 0.06 KM |
| 66 Williams Road | £ 325,000 | 0.06 KM |
| 100 Williams Road | £ 370,000 | 0.06 KM |
| 92 Williams Road | £ 218,000 | 0.06 KM |