Fairfax Road, Woking, Surrey, GU22
By Seymours Estate Agents
£ 425,000
Reviews
3 out of 5 stars
Seymours Estate Agents says ..
Set on a popular road, backing on to allotments, within a highly sought-after residential neighbourhood, this delightful semi-detached bungalow offers an exceptional opportunity for those seeking comfort, space, and convenience in equal measure. Thoughtfully laid out and well-presented, the prope...
Property Oracle says ..
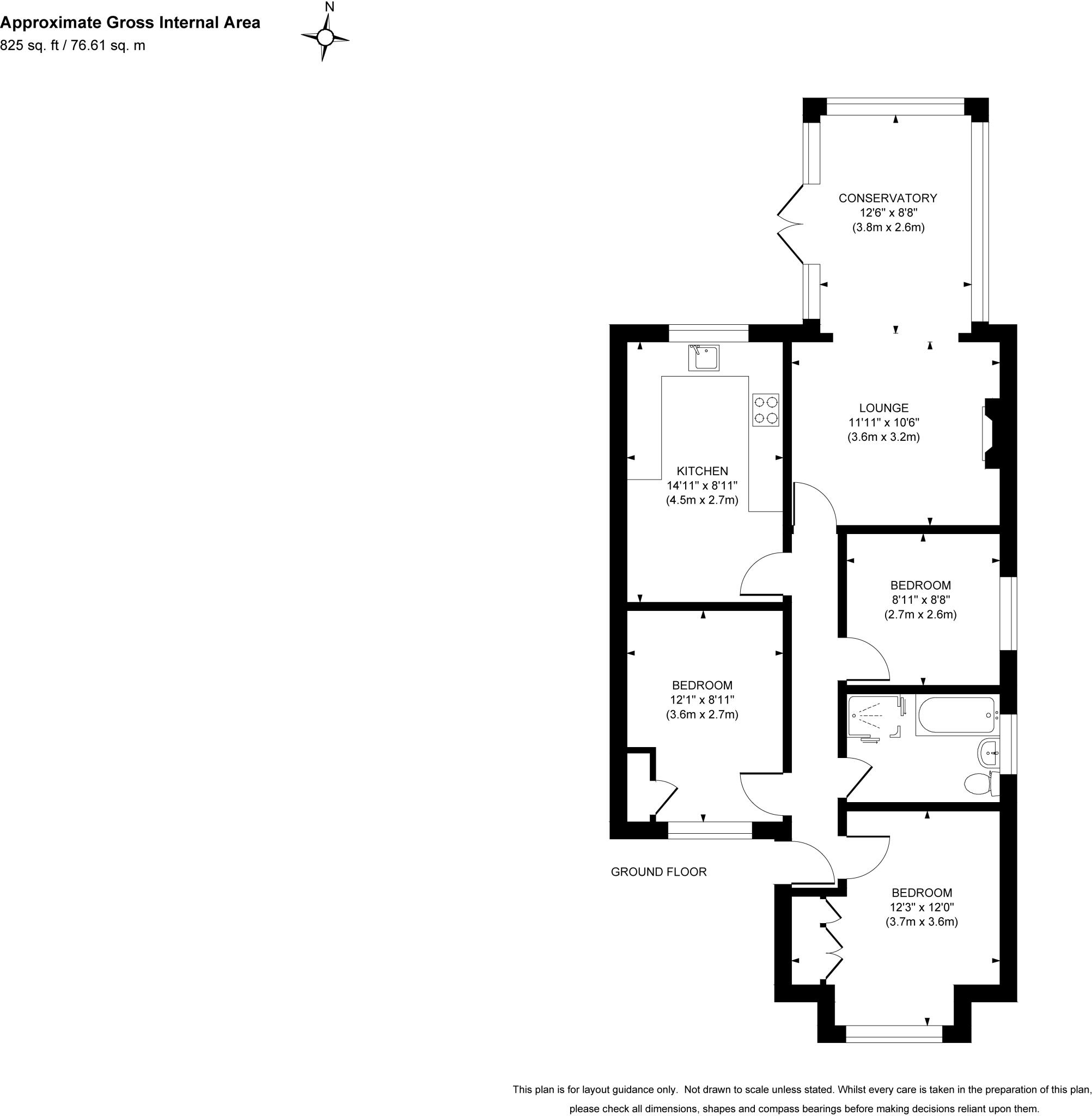
This 3-bedroom bungalow in Woking is listed at £425,000. The property is situated on Fairfax Road in the Hoe Valley area, which benefits from being close to local schools such as Hoe Bridge School (0.59km) and Woking College (0.73km). Woking train station is also within a reasonable distance (2.06km), providing convenient access to London and other areas. The bungalow itself appears to be in reasonable condition, though some minor modernisation might enhance its appeal. The kitchen and bathroom seem functional, and the property includes a conservatory and a garden, adding to its overall value. Compared to the average house price of £530,828 and average price per sqft of £451 in the area, the listed price appears relatively competitive, especially considering its size (771.15 sqft) and features. However, a detailed survey would be recommended to assess any potential maintenance needs.
Therefore, we give this property 7 / 10. *Disclaimer: This is our option and does constitute a recommendation or financial advice. Do your own research. *
- Price
- 7
- Condition
- 7
- Location
- 8
- Land
- 6
- Bedrooms
- 3
- Bathrooms
- 1
- Sqft (est)
- 771.15
The heatmap indicates the level of crime in the area. The color of the heatmap indicates the crime severity and recency.
Metrics Year-on-Year
- Average area value
- 531,250.00 £Increased by 10.45 %
- Est sale value
- 555,999.15 £Increased by 52.43 %
- Average area rental value
- 2,200.00 £/moIncreased by 7.53 %
- Est letting value
- 1,542.30 £/moUnchanged by 0.00 %
- Est rental Yield
- 4.97 %Decreased by 2.55 %
- Crime Rate
- 3.00 %Unchanged by 0.00 %
Agent Activity
Seymours Estate Agents created the listing.
Nearby Schools
| Name | Type | Ofsted | Distance |
|---|---|---|---|
| Hoe Bridge School | Other Independent School | 0.59 KM | |
| Woking College | Academy 16-19 Converter | Good | 0.73 KM |
| St John The Baptist Catholic Comprehensive School, Woking | Academy Converter | 0.78 KM | |
| Sythwood At Old Woking Sure Start Children'S Centre | Children's Centre Linked Site | 0.91 KM | |
| Kingfield Primary School | Academy Converter | 1.04 KM |
Images
Nearby Streets
| Name | Average Price | Average Sqft | Distance |
|---|---|---|---|
| Manor Way | £ 498,750 | 0 | 0.00 KM |
| Round Hill | £ 0 | 0 | 0.00 KM |
| Robinson Close | £ 0 | 0 | 0.00 KM |
| Queen Elizabeth Way | £ 1,200,000 | 0 | 0.00 KM |
| Church Street | £ 0 | 0 | 0.00 KM |
Nearby Transport
| Name | NLC | TLC | Distance |
|---|---|---|---|
| Woking | 5685 | WOK | 2.06 KM |
| Worplesdon | 5686 | WPL | 4.91 KM |
| West Byfleet | 5684 | WBY | 5.39 KM |
| Clandon | 5555 | CLA | 6.49 KM |
| London Road (Guildford) | 5632 | LRD | 7.83 KM |
Nearby Listings
| Address | Price | Type | Score | Distance |
|---|---|---|---|---|
| Fairfax Road, Woking, Surrey, GU22 | £ 425,000 | BUY | 7 / 10 | 0.00 KM |
| Fairfax Road, Old Woking, Woking, Surrey, GU22 | £ 425,000 | BUY | 7 / 10 | 0.07 KM |
| WOKING | £ 425,000 | BUY | 7 / 10 | 0.10 KM |
| WOKING | £ 385,000 | BUY | 6 / 10 | 0.10 KM |
| Selwood Road, Woking | £ 625,000 | BUY | 7 / 10 | 0.10 KM |
Nearby Properties
| Address | Price | Distance |
|---|---|---|
| 45 Fairfax Road | £ 249,950 | 0.01 KM |
| 41 Fairfax Road | £ 417,000 | 0.01 KM |
| 17 Fairfax Road | £ 250,000 | 0.01 KM |
| 19 Fairfax Road | £ 525,000 | 0.01 KM |
| 35 Fairfax Road | £ 273,113 | 0.01 KM |