Lower Lane, Chinley, High Peak
By Gascoigne Halman
£ 325,000
Reviews
2 out of 5 stars
Gascoigne Halman says ..
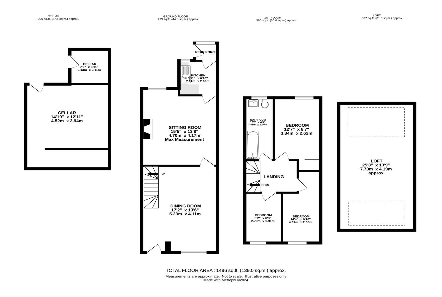
A PERIOD STONE SEMI DETACHED property which is located within the popular village of CHINLEY. The accommodation is well presented and has scope to create a LOFT ROOM (subject to relevant approvals). The property has TWO RECEPTION rooms plus a kitchen and THREE BEDROOMS. Externally there are usefu...
Property Oracle says ..
This property is a 3-bedroom semi-detached house located in Chinley, Derbyshire. The property benefits from being close to Chinley train station, providing convenient access to nearby towns and cities. There are also several primary and secondary schools within a reasonable distance. While the property shows some signs of age and may require some modernisation, it offers a small garden and is priced slightly above the average for the area. The property appears to be in generally good condition but could benefit from some cosmetic upgrades. The overall value for money is moderate considering the condition and location.
Therefore, we give this property 5 / 10. *Disclaimer: This is our option and does constitute a recommendation or financial advice. Do your own research. *
- Price
- 6
- Condition
- 6
- Location
- 7
- Land
- 4
- Bedrooms
- 3
- Bathrooms
- 1
- Sqft (est)
- 1,496.00
The heatmap indicates the level of crime in the area. The color of the heatmap indicates the crime severity and recency.
Metrics Year-on-Year
- Average area value
- 257,500.00 £Decreased by 19.56 %
- Est sale value
- 432,344.00 £Increased by 4.71 %
- Average area rental value
- 929.00 £/moDecreased by 8.38 %
- Est letting value
- 1,496.00 £/mo
- Est rental Yield
- 4.33 %Increased by 13.95 %
- Crime Rate
- 53.00 %Unchanged by 0.00 %
Agent Activity
Gascoigne Halman created the listing.
Nearby Schools
| Name | Type | Ofsted | Distance |
|---|---|---|---|
| Peak School | Academy Special Converter | 1.19 KM | |
| Chinley Primary School | Foundation School | Good | 1.91 KM |
| Buxworth Primary School | Community School | Good | 2.52 KM |
| Chapel-En-Le-Frith High School | Community School | Good | 3.29 KM |
| Combs Infant School | Community School | Outstanding | 4.10 KM |
Images
Nearby Streets
| Name | Average Price | Average Sqft | Distance |
|---|---|---|---|
| Devonshire Drive | £ 240,000 | 0 | 0.00 KM |
| Glenside | £ 0 | 0 | 0.00 KM |
| Derwent Drive | £ 0 | 0 | 0.00 KM |
| Gardenhead Cottages | £ 0 | 0 | 0.00 KM |
| St Mary's Close | £ 0 | 0 | 0.00 KM |
Nearby Transport
| Name | NLC | TLC | Distance |
|---|---|---|---|
| Chinley | 2823 | CLY | 0.14 KM |
| Chapel-En-Le-Frith | 2762 | CEF | 4.06 KM |
| Whaley Bridge | 2772 | WBR | 4.63 KM |
| Furness Vale | 2952 | FNV | 5.11 KM |
| Dove Holes | 2766 | DVH | 7.38 KM |
Nearby Listings
| Address | Price | Type | Score | Distance |
|---|---|---|---|---|
| Lower Lane, Chinley, High Peak | £ 325,000 | BUY | 5 / 10 | 0.00 KM |
| Lower Lane, Chinley, SK23 | £ 275,000 | BUY | 6 / 10 | 0.04 KM |
| Lower Lane, Chinley, High Peak | £ 400,000 | BUY | 7 / 10 | 0.06 KM |
| Manners Close, Chinley, SK23 | £ 325,000 | BUY | 6 / 10 | 0.16 KM |
| Manners Close, Chinley, SK23 | £ 265,000 | BUY | Unknown | 0.17 KM |
Nearby Properties
| Address | Price | Distance |
|---|---|---|
| 15 Cracken Close | £ 164,950 | 0.09 KM |
| 3 Cracken Close | £ 222,500 | 0.09 KM |
| 5 Cracken Close | £ 232,000 | 0.09 KM |
| 14 Cracken Close | £ 240,000 | 0.09 KM |
| 8 Cracken Close | £ 174,000 | 0.09 KM |