Machin Lane says ..
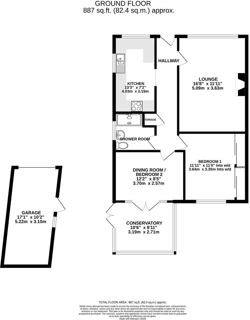
Welcome to this charming 1-bedroom detached bungalow, nestled in the quiet and sought-after location of Argyle Close, Rochester, Kent. This delightful home is being offered to the market for the first time in 20 years, presenting a rare opportunity to own a well-maintained property in a peaceful ...
Property Oracle says ..
Therefore, we give this property 8 / 10. *Disclaimer: This is our option and does constitute a recommendation or financial advice. Do your own research. *
- Price
- 9
- Condition
- 8
- Location
- 8
- Land
- 7
- Bedrooms
- 2
- Bathrooms
- 1
- Sqft (est)
- 887.00
The heatmap indicates the level of crime in the area. The color of the heatmap indicates the crime severity and recency.
Metrics Year-on-Year
- Average area value
- 394,944.00 £Increased by 20.71 %
- Est sale value
- 455,031.00 £Increased by 36.07 %
- Average area rental value
- 1,293.00 £/moDecreased by 22.11 %
- Est letting value
- 887.00 £/moUnchanged by 0.00 %
- Est rental Yield
- 3.93 %Decreased by 35.47 %
- Crime Rate
- 1.00 %Unchanged by 0.00 %
from 327,173.00 £
from 334,399.00 £
from 1,660.00 £/mo
from 887.00 £/mo
from 6.09 %
from 1.00 %
Agent Activity
Machin Lane created the listing.
Nearby Schools
| Name | Type | Ofsted | Distance |
|---|---|---|---|
| Holcombe Grammar School | Academy Converter | Good | 0.83 KM |
| New Horizons Children'S Academy | Academy Sponsor Led | Good | 0.91 KM |
| Warren Wood Primary Academy | Academy Sponsor Led | Good | 0.92 KM |
| Balfour Infant School | Community School | Good | 0.98 KM |
| Delce Children'S Centre | Children's Centre | 1.20 KM |
Images
Nearby Streets
| Name | Average Price | Average Sqft | Distance |
|---|---|---|---|
| Downer Court | £ 0 | 0 | 0.00 KM |
| Hurst Close | £ 290,000 | 0 | 0.00 KM |
| Field Close | £ 290,000 | 0 | 0.00 KM |
| Leander Road | £ 0 | 0 | 0.00 KM |
| Thorndike Close | £ 0 | 0 | 0.00 KM |
Nearby Transport
| Name | NLC | TLC | Distance |
|---|---|---|---|
| Chatham | 5199 | CTM | 2.26 KM |
| Rochester | 5203 | RTR | 2.72 KM |
| Strood (Kent) | 5191 | SOO | 4.19 KM |
| Gillingham (Kent) | 5169 | GLM | 4.87 KM |
| Cuxton | 5201 | CUX | 5.93 KM |
Nearby Listings
| Address | Price | Type | Score | Distance |
|---|---|---|---|---|
| Argyle Close, Rochester | £ 350,000 | BUY | 8 / 10 | 0.00 KM |
| Argyle Close, Rochester, Kent, ME1 | £ 375,000 | BUY | Unknown | 0.05 KM |
| Wilson Avenue, ROCHESTER, Kent, ME1 | £ 700,000 | BUY | 6 / 10 | 0.05 KM |
| Argyle Close, Rochester, Kent, ME1 | £ 375,000 | BUY | 6 / 10 | 0.05 KM |
| Wallace Road, Rochester, Kent | £ 425,000 | BUY | 6 / 10 | 0.17 KM |
Nearby Properties
| Address | Price | Distance |
|---|---|---|
| 132 Wilson Avenue | £ 258,000 | 0.05 KM |
| 81 Wilson Avenue | £ 499,550 | 0.05 KM |
| 136 Wilson Avenue | £ 202,500 | 0.05 KM |
| 107 Wilson Avenue | £ 360,000 | 0.05 KM |
| 79 Wilson Avenue | £ 270,000 | 0.05 KM |