Attfield Close, Ash, Surrey, GU12
Bridges Estate Agents logo

Attfield Close, Ash, Surrey, GU12

By Bridges Estate Agents

£ 550,000

Reviews

3 out of 5 stars

Bridges Estate Agents says ..

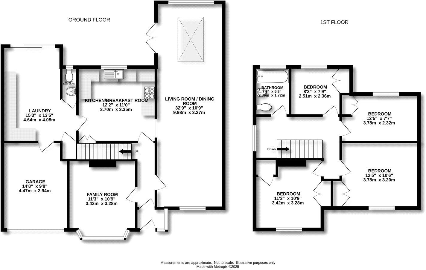
This spacious four bedroom semi-detached home offers strong kerb appeal with a block paved driveway for several cars and a new porch with a contemporary door. Inside, a generous hallway leads to a versatile reception room suited to use as a lounge, playroom or home office. A rear exten...

Property Oracle says ..

This semi-detached property in Ash, Surrey, offers four bedrooms and one bathroom. The house appears to be in good condition, featuring a modern kitchen and bathroom. A standout feature is the large garden, providing ample outdoor space. The property benefits from off-street parking and a garage. While the asking price is higher than the average for the area, the condition and garden size may justify the premium. The property is located within a reasonable distance of local schools and transportation links, making it suitable for families and commuters.

Therefore, we give this property 7 / 10. *Disclaimer: This is our option and does constitute a recommendation or financial advice. Do your own research. *

Price
6
Condition
8
Location
7
Land
9
Bedrooms
4
Bathrooms
1

The heatmap indicates the level of crime in the area. The color of the heatmap indicates the crime severity and recency.

Metrics Year-on-Year

Average area value
415,000.00 £
Decreased by 13.65 %
from 480,598.00 £
Average area rental value
1,095.00 £/mo
Decreased by 45.71 %
from 2,017.00 £/mo
Est rental Yield
3.17 %
Decreased by 37.10 %
from 5.04 %
Crime Rate
9.00 %
Unchanged by 0.00 %
from 9.00 %

Agent Activity

  • Bridges Estate Agents created the listing.

Nearby Schools

NameTypeOfstedDistance
Walsh Cofe Junior SchoolVoluntary Controlled SchoolRequires improvement0.49 KM
Walsh Memorial Cofe Controlled Infant SchoolVoluntary Controlled SchoolOutstanding0.49 KM
Ash Manor SchoolCommunity SchoolGood0.65 KM
Shawfield Primary SchoolCommunity SchoolGood1.28 KM
St Paul'S C/E Infant School & Sure Start Children'S CentreChildren's Centre1.28 KM

Images

Picture No. 48 Picture No. 69 Picture No. 59 Picture No. 63 Picture No. 71 Picture No. 50 Picture No. 52 Picture No. 51 Picture No. 57 Picture No. 72 Picture No. 49 Picture No. 66 Picture No. 54 Picture No. 55 Picture No. 56 Picture No. 58 Picture No. 60 Picture No. 61 Picture No. 62 Picture No. 64 Picture No. 65 Picture No. 67 Picture No. 68 Picture No. 70 Picture No. 53

Nearby Streets

NameAverage PriceAverage SqftDistance
Manor Road cycle path £ 000.00 KM
Tudor Court £ 000.00 KM
Windsor Gardens £ 000.00 KM
The Woodridges £ 000.00 KM
Lea Way £ 350,00000.00 KM

Nearby Transport

NameNLCTLCDistance
Ash5641ASH2.04 KM
Ash Vale5547AHV3.10 KM
Aldershot5623AHT3.20 KM
North Camp5636NCM3.32 KM
Farnborough (Main)5521FNB6.26 KM

Nearby Listings

AddressPriceTypeScoreDistance
Attfield Close, Ash, Surrey, GU12 £ 550,000BUY7 / 100.00 KM
Attfield Close, Ash, Surrey, GU12 £ 220,000BUY5 / 100.00 KM
Attfield Close, Ash, Surrey, GU12 £ 210,000BUY5 / 100.03 KM
Attfield Close, Ash, Surrey, GU12 £ 285,000BUYUnknown0.07 KM
Attfield Close, Ash, Aldershot, Surrey, GU12 £ 295,000BUY7 / 100.09 KM

Nearby Properties

AddressPriceDistance
15 Attfield Close £ 130,0000.01 KM
27 Attfield Close £ 149,9500.01 KM
15a Attfield Close £ 155,5000.01 KM
1a Attfield Close £ 163,9500.01 KM
17a Attfield Close £ 152,0000.01 KM