Chancellors says ..
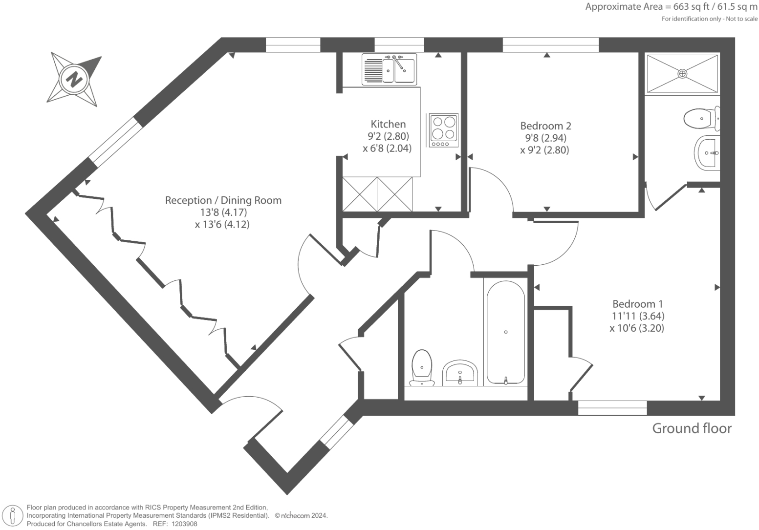
Being Sold with NO CHAIN - Constructed by CALA Homes in 2022 is this immaculate ground floor two double bedroom, two bathroom apartment. Since purchase the current owners have improved the property whilst maintaining the apartment immaculately.
Property Oracle says ..
This two-bedroom, two-bathroom apartment in Bicester, Oxfordshire, is presented in immaculate condition. The modern design, contemporary decor, and high-quality finishes create a stylish and comfortable living space. The apartment benefits from a modern kitchen and two well-appointed bathrooms. The building itself is well-maintained. The nearby area offers a good choice of primary schools with Ofsted ratings of ‘Good’. The proximity to Bicester North and Bicester Village train stations provides convenient access to London and Oxford. While the property lacks its own private garden, there are areas of shared communal green space. The list price appears reasonable, given the excellent condition and desirable location, even with a lack of readily available comparative pricing data by square foot for a direct comparison. Overall, this property represents a potentially sound investment, particularly appealing to young professionals or families seeking a low-maintenance home in a convenient location.
Therefore, we give this property 6 / 10. *Disclaimer: This is our option and does constitute a recommendation or financial advice. Do your own research. *
- Price
- 7
- Condition
- 9
- Location
- 7
- Land
- 2
- Bedrooms
- 2
- Bathrooms
- 2
- Sqft (est)
- 663.00
The heatmap indicates the level of crime in the area. The color of the heatmap indicates the crime severity and recency.
Metrics Year-on-Year
- Average area value
- 387,111.00 £Increased by 16.04 %
- Est sale value
- 226,083.00 £Decreased by 8.33 %
- Average area rental value
- 1,536.00 £/moDecreased by 5.82 %
- Est letting value
- 663.00 £/moUnchanged by 0.00 %
- Est rental Yield
- 4.76 %Decreased by 18.91 %
- Crime Rate
- 15.00 %Unchanged by 0.00 %
Agent Activity
Chancellors created the listing.
Nearby Schools
| Name | Type | Ofsted | Distance |
|---|---|---|---|
| King'S Meadow Primary School | Community School | Good | 1.06 KM |
| St Edburg'S Church Of England (Va) School | Voluntary Aided School | Good | 1.43 KM |
| Chesterton Church Of England Voluntary Aided Primary School | Voluntary Aided School | Good | 1.48 KM |
| Bruern Abbey School | Other Independent School | 1.57 KM | |
| Whitelands Academy | Free Schools | 1.64 KM |
Images
Nearby Streets
| Name | Average Price | Average Sqft | Distance |
|---|---|---|---|
| Eridge Road | £ 0 | 0 | 0.00 KM |
| Melton Road | £ 0 | 0 | 0.00 KM |
| Durham Close | £ 0 | 0 | 0.00 KM |
| Ludlow Road | £ 484,988 | 0 | 0.00 KM |
| Colwell Close | £ 0 | 0 | 0.00 KM |
Nearby Transport
| Name | NLC | TLC | Distance |
|---|---|---|---|
| Bicester North | 3048 | BCS | 3.11 KM |
| Bicester Village | 3104 | BIT | 3.33 KM |
Nearby Listings
| Address | Price | Type | Score | Distance |
|---|---|---|---|---|
| Bicester, Oxfordshire, OX26 | £ 280,000 | BUY | 6 / 10 | 0.00 KM |
| Eden Way, Bicester | £ 525,000 | BUY | Unknown | 0.07 KM |
| Isis Avenue, Greenwood Homes, Bicester, Oxfordshire, OX26 | £ 375,000 | BUY | Unknown | 0.10 KM |
| Ludlow Road, Bicester | £ 425,000 | BUY | 7 / 10 | 0.14 KM |
| Hambleside, Bicester | £ 220,000 | BUY | 6 / 10 | 0.14 KM |
Nearby Properties
| Address | Price | Distance |
|---|---|---|
| 11 Hambleside | £ 222,500 | 0.14 KM |
| 9 Hambleside | £ 192,000 | 0.14 KM |
| 14 Hambleside | £ 320,000 | 0.14 KM |
| 36 Hambleside | £ 297,500 | 0.14 KM |
| 31 Hambleside | £ 123,000 | 0.14 KM |