Quantum Estate Agents says ..
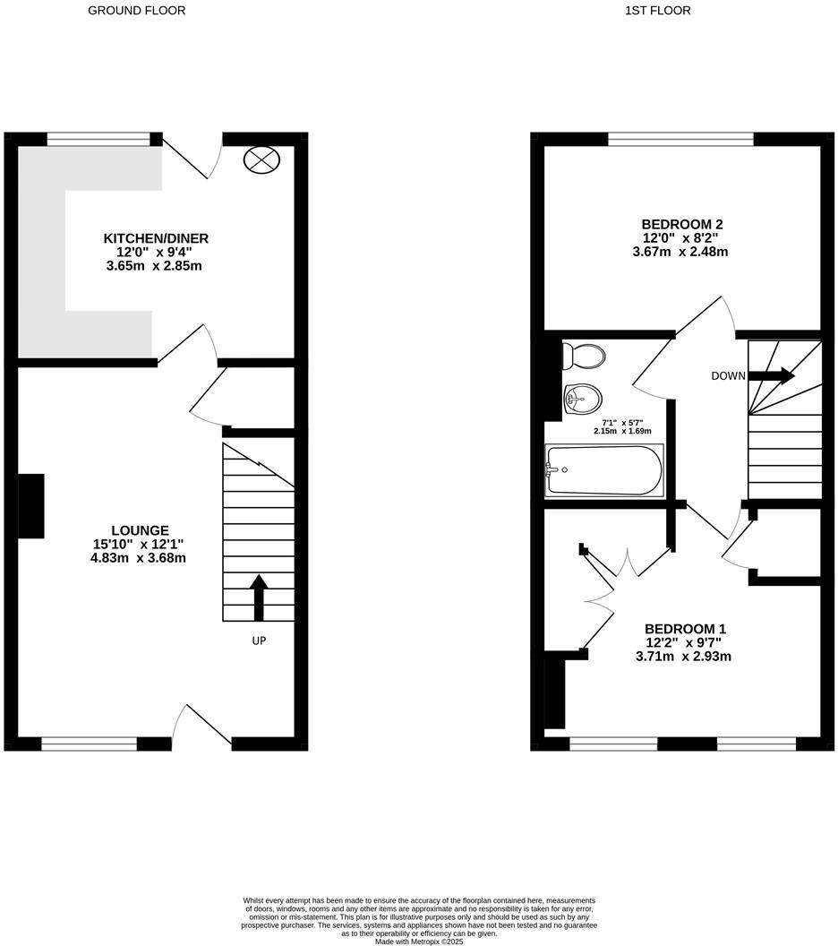
We are delighted to bring to market this lovely two bedroom end townhouse which presents an excellent opportunity for those seeking a central location with parking. With holiday letting permitted this property will also appeal to investors, as well as a small family or couple. One of the...
Property Oracle says ..
This property is a two-bedroom terraced house located in the Fishergate area of York. The property benefits from a small garden, and appears to be in reasonable condition, although some modernisation may be desirable. The location is convenient, with nearby schools and transportation links. However, the list price of £270,000 is significantly below the average price for the area, suggesting it may represent good value for money, especially considering the lower average price per sqft compared to other properties in the area. Further investigation into the specific condition of the property and any potential issues would be recommended before making a purchase decision.
Therefore, we give this property 6 / 10. *Disclaimer: This is our option and does constitute a recommendation or financial advice. Do your own research. *
- Price
- 8
- Condition
- 6
- Location
- 7
- Land
- 4
- Bedrooms
- 2
- Bathrooms
- 1
- Sqft (est)
- 806.76
The heatmap indicates the level of crime in the area. The color of the heatmap indicates the crime severity and recency.
Metrics Year-on-Year
- Average area value
- 391,421.00 £Increased by 20.41 %
- Est sale value
- 322,704.00 £Decreased by 8.05 %
- Average area rental value
- 1,243.00 £/moDecreased by 1.97 %
- Est letting value
- 806.76 £/moUnchanged by 0.00 %
- Est rental Yield
- 3.81 %Decreased by 18.59 %
- Crime Rate
- 5.00 %Unchanged by 0.00 %
Agent Activity
Quantum Estate Agents created the listing.
Nearby Schools
| Name | Type | Ofsted | Distance |
|---|---|---|---|
| Fishergate Primary School | Community School | Good | 0.25 KM |
| St George'S Catholic Primary School - A Catholic Voluntary Academy | Academy Converter | 0.42 KM | |
| Danesgate Community | Pupil Referral Unit | Good | 1.07 KM |
| York Steiner School | Other Independent School | Inadequate | 1.17 KM |
| St Wilfrid'S Catholic Primary School - A Catholic Voluntary Academy | Academy Converter | 1.22 KM |
Images
Nearby Streets
| Name | Average Price | Average Sqft | Distance |
|---|---|---|---|
| Peel Street | £ 0 | 0 | 0.00 KM |
| Castlegate | £ 220,000 | 0 | 0.00 KM |
| Dennis Street | £ 685,000 | 0 | 0.00 KM |
| Thistleton Court | £ 159,950 | 0 | 0.00 KM |
| Bishopthorpegate Street | £ 230,000 | 0 | 0.00 KM |
Nearby Transport
| Name | NLC | TLC | Distance |
|---|---|---|---|
| York | 8263 | YRK | 1.83 KM |
| Poppleton | 8254 | POP | 8.27 KM |
Nearby Listings
| Address | Price | Type | Score | Distance |
|---|---|---|---|---|
| Fewster Way, York | £ 270,000 | BUY | 6 / 10 | 0.00 KM |
| Fewster Way, York, YO10 4AD | £ 300,000 | BUY | 6 / 10 | 0.05 KM |
| Browney Croft, York | £ 350,000 | BUY | 7 / 10 | 0.08 KM |
| Fishergate, York | £ 155,000 | BUY | 6 / 10 | 0.08 KM |
| Browney Croft, York | £ 290,000 | BUY | 6 / 10 | 0.09 KM |
Nearby Properties
| Address | Price | Distance |
|---|---|---|
| 28 Fewster Way | £ 155,000 | 0.03 KM |
| 29 Fewster Way | £ 164,950 | 0.03 KM |
| 31 Fewster Way | £ 155,000 | 0.03 KM |
| 40 Fewster Way | £ 230,000 | 0.03 KM |
| 64 Fewster Way | £ 73,525 | 0.03 KM |