Sims Williams says ..
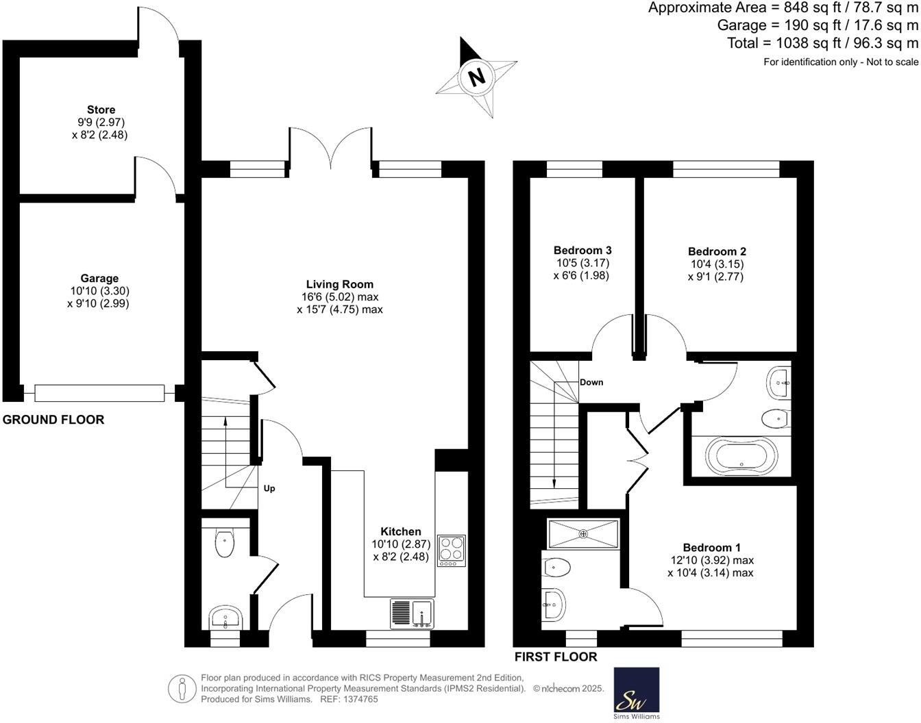
A WELL-PRESENTED and MODERN three-bedroom home situated in a POPULAR DEVELOPMENT within Felpham, close to local schools, amenities, and the SEAFRONT. The property offers a BRIGHT and SPACIOUS open-plan living area, CONTEMPORARY kitchen with INTEGRATED APPLIANCES, principal bedroom with EN-SUITE, ...
Property Oracle says ..
This is a well-presented end-of-terrace property in Felpham, offering three bedrooms and two bathrooms. The property benefits from a modern interior, a well-maintained garden, and proximity to local amenities including a well-rated primary school and transportation links. The asking price appears reasonable compared to average property values in the area. Overall, this property seems like a good option for families or individuals looking for a comfortable home in a convenient location.
Therefore, we give this property 7 / 10. *Disclaimer: This is our option and does constitute a recommendation or financial advice. Do your own research. *
- Price
- 8
- Condition
- 8
- Location
- 7
- Land
- 7
- Bedrooms
- 3
- Bathrooms
- 2
- Sqft (est)
- 1,036.56
The heatmap indicates the level of crime in the area. The color of the heatmap indicates the crime severity and recency.
Metrics Year-on-Year
- Average area value
- 365,161.00 £Decreased by 17.46 %
- Est sale value
- 415,660.56 £Increased by 40.70 %
- Average area rental value
- 1,342.00 £/moIncreased by 9.19 %
- Est letting value
- 1,036.56 £/mo
- Est rental Yield
- 4.41 %Increased by 32.43 %
- Crime Rate
- 26.00 %Unchanged by 0.00 %
Agent Activity
Sims Williams created the listing.
Nearby Schools
| Name | Type | Ofsted | Distance |
|---|---|---|---|
| Felpham Children & Family Centre | Children's Centre | 1.16 KM | |
| Downview Primary School | Academy Converter | Good | 1.17 KM |
| Bishop Tufnell Cofe Primary School, Felpham | Voluntary Aided School | Requires improvement | 1.31 KM |
| Felpham Community College | Community School | Good | 1.46 KM |
| Edward Bryant School | Academy Converter | Good | 3.32 KM |
Images
Nearby Streets
| Name | Average Price | Average Sqft | Distance |
|---|---|---|---|
| Gullivers Mead | £ 0 | 0 | 0.00 KM |
| Westbrook Way | £ 374,983 | 0 | 0.00 KM |
| The Crescent | £ 0 | 0 | 0.00 KM |
| Middleton Road | £ 425,000 | 0 | 0.00 KM |
| Southview Road | £ 415,000 | 0 | 0.00 KM |
Nearby Transport
| Name | NLC | TLC | Distance |
|---|---|---|---|
| Barnham | 5252 | BAA | 3.53 KM |
| Bognor Regis | 5253 | BOG | 3.77 KM |
| Ford | 5258 | FOD | 8.05 KM |
Nearby Listings
| Address | Price | Type | Score | Distance |
|---|---|---|---|---|
| Meaden Way, Felpham | £ 315,000 | BUY | 7 / 10 | 0.00 KM |
| Meaden Way, Felpham, PO22 | £ 350,000 | BUY | 7 / 10 | 0.01 KM |
| Bulbeck Way, Felpham, PO22 | £ 525,000 | BUY | 7 / 10 | 0.04 KM |
| Bulbeck Way, Felpham, PO22 | £ 365,000 | BUY | 7 / 10 | 0.05 KM |
| Cosens Way, Felpham, Bognor Regis | £ 210,000 | BUY | 7 / 10 | 0.06 KM |
Nearby Properties
| Address | Price | Distance |
|---|---|---|
| 11 Meaden Way | £ 263,000 | 0.07 KM |
| 55 Meaden Way | £ 265,000 | 0.07 KM |
| 1 Meaden Way | £ 298,000 | 0.07 KM |
| 57 Meaden Way | £ 269,950 | 0.07 KM |
| 19 Meaden Way | £ 330,000 | 0.07 KM |