Exeter Road, Southville, BS3
CJ Hole logo

Exeter Road, Southville, BS3

By CJ Hole

£ 550,000

Reviews

3 out of 5 stars

CJ Hole says ..

CJ Hole Southville proudly presents this stunning double bay-fronted three-bedroom Victorian terrace located on Exeter Road, Southville.

Property Oracle says ..

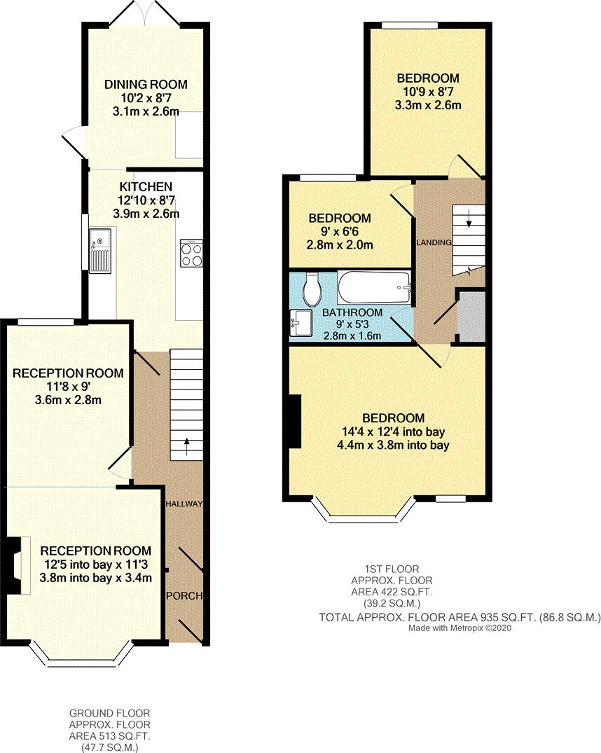
This three-bedroom Victorian terraced house on Exeter Road, Southville, Bristol, is presented in excellent condition. The property benefits from a recently refurbished and stylish interior, evident in the high-quality images showing modern fixtures, fittings, and décor. The images reveal a well-maintained property throughout, with updated kitchen and bathroom features. The property benefits from a small rear garden which is partially decked and also includes a shed. The property’s location is favourable as it is situated in the desirable Southville area of Bristol, known for its community, close proximity to local shops and other amenities, and the convenience of being close to transport links. Additional information would be helpful such as the exact plot size, and the precise details of the refurbishment and renovations undertaken to provide a fully comprehensive assessment of the property. Overall the property provides a good opportunity for a family. The listed price, while seeming reasonable given the area, requires further validation against comparable property sales with detailed square footage data.

Therefore, we give this property 6 / 10. *Disclaimer: This is our option and does constitute a recommendation or financial advice. Do your own research. *

Price
7
Condition
8
Location
7
Land
4
Bedrooms
3
Bathrooms
1
Sqft (est)
935.00

The heatmap indicates the level of crime in the area. The color of the heatmap indicates the crime severity and recency.

Metrics Year-on-Year

Average area value
347,833.00 £
Decreased by 12.30 %
from 396,637.00 £
Est sale value
388,025.00 £
Decreased by 4.16 %
from 404,855.00 £
Average area rental value
1,855.00 £/mo
Increased by 23.17 %
from 1,506.00 £/mo
Est letting value
1,870.00 £/mo
Increased by 100.00 %
from 935.00 £/mo
Est rental Yield
6.40 %
Increased by 40.35 %
from 4.56 %
Crime Rate
6.00 %
Unchanged by 0.00 %
from 6.00 %

Agent Activity

  • CJ Hole marked this listing as sold.

  • CJ Hole created the listing.

Nearby Schools

NameTypeOfstedDistance
Ashton Gate Primary SchoolCommunity SchoolOutstanding0.49 KM
Compass Point: South Street School & Children'S CentreChildren's Centre0.54 KM
Luckwell Primary SchoolAcademy Sponsor Led0.59 KM
Compass Point Primary SchoolAcademy Converter0.67 KM
Southville Primary SchoolCommunity SchoolGood0.70 KM

Images

Picture No. 18 Picture No. 23 Picture No. 16 Picture No. 13 Picture No. 20 Picture No. 26 Picture No. 25 Picture No. 08 Picture No. 21 Picture No. 06 Picture No. 17 Picture No. 12 Picture No. 19 Picture No. 24 Picture No. 22 Picture No. 05 Picture No. 07 Picture No. 04 Picture No. 14 Picture No. 02 Picture No. 03 Picture No. 11 Picture No. 15

Nearby Streets

NameAverage PriceAverage SqftDistance
Frobisher Road £ 000.00 KM
Gladstone Street £ 455,00000.00 KM
Walter Street £ 454,00000.00 KM
Gas Ferry Road £ 325,00000.00 KM
Mardyke Ferry Road £ 000.00 KM

Nearby Transport

NameNLCTLCDistance
Parson Street3246PSN1.01 KM
Bedminster3245BMT1.79 KM
Clifton Down3202CFN2.51 KM
Redland3247RDA3.18 KM
Bristol Temple Meads3231BRI3.29 KM

Nearby Listings

AddressPriceTypeScoreDistance
Exeter Road, Southville, BS3 £ 550,000BUY6 / 100.00 KM
Exeter Road, Southville, Bristol, BS3 £ 650,000BUY7 / 100.06 KM
Exeter Road, Southville, Bristol, Somerset, BS3 £ 575,000BUYUnknown0.06 KM
Exeter Road, Southville, Bristol £ 525,000BUY6 / 100.06 KM
Exeter Road, Southville, Bristol £ 675,000BUYUnknown0.07 KM

Nearby Properties

AddressPriceDistance
74 Exeter Road £ 410,0000.04 KM
14 Exeter Road £ 495,0000.04 KM
50 Exeter Road £ 165,0000.04 KM
60 Exeter Road £ 250,0000.04 KM
16 Exeter Road £ 450,0000.04 KM