TA
Victoria Drive, Old Town, Eastbourne
By Taylor Engley
£ 599,950
Reviews
3 out of 5 stars
Taylor Engley says ..
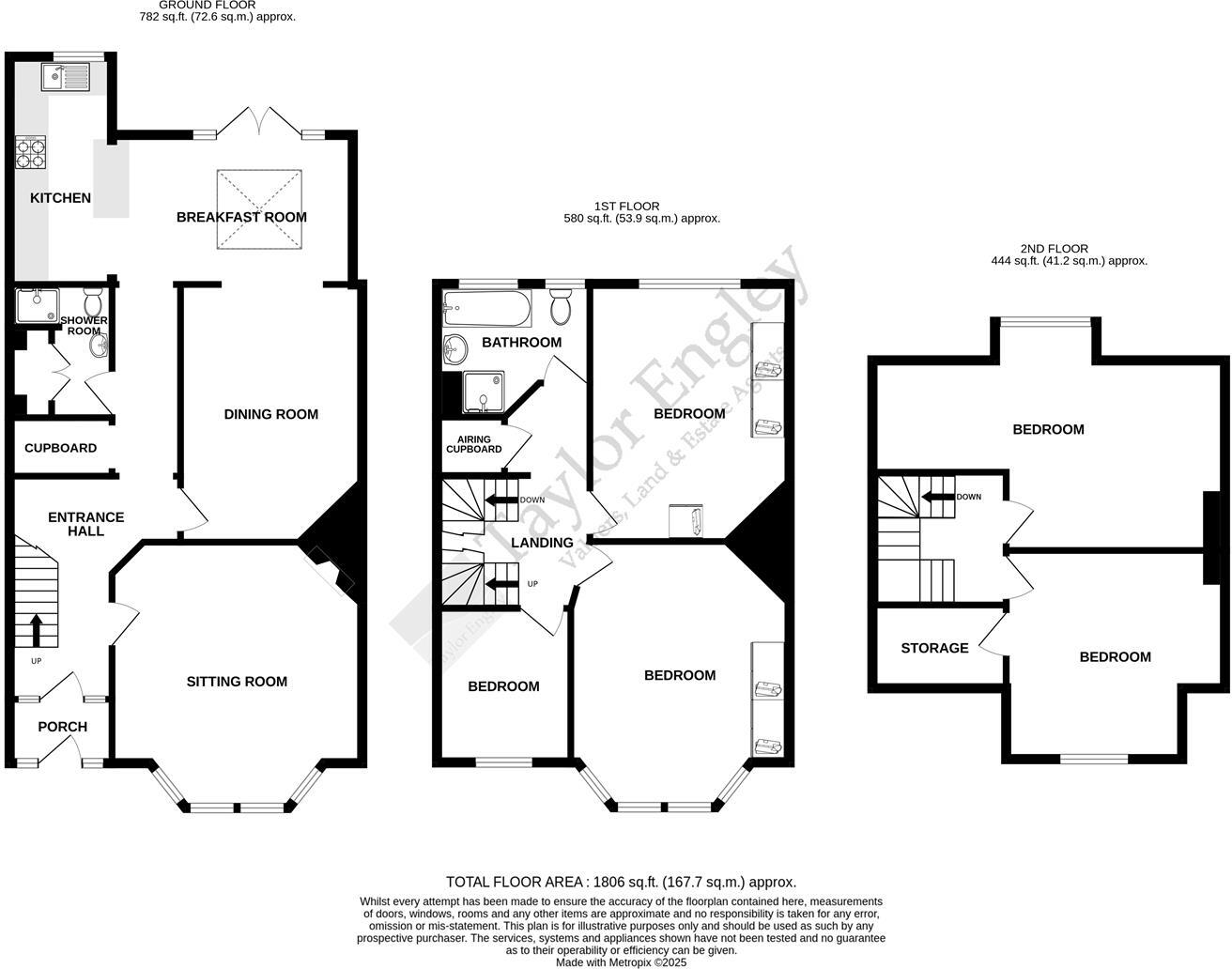
An excellent opportunity to purchase this WELL PRESENTED FIVE BEDROOMED EDWARDIAN BAY FRONTED PERIOD HOME in this favoured Old Town location. The property has been tastefully refurbished by the current owners whilst still retainening much of its period charm and character. The property benefits...
Property Oracle says ..
Therefore, we give this property 7 / 10. *Disclaimer: This is our option and does constitute a recommendation or financial advice. Do your own research. *
- Price
- 7
- Condition
- 7
- Location
- 8
- Land
- 7
- Bedrooms
- 5
- Bathrooms
- 1
- Sqft (est)
- 1,806.00
The heatmap indicates the level of crime in the area. The color of the heatmap indicates the crime severity and recency.
Metrics Year-on-Year
- Average area value
- 364,023.00 £Increased by 8.60 %
- Est sale value
- 744,072.00 £Increased by 57.25 %
- Average area rental value
- 1,137.00 £/moDecreased by 2.15 %
- Est letting value
- 1,806.00 £/mo
- Est rental Yield
- 3.75 %Decreased by 9.86 %
- Crime Rate
- 18.00 %Unchanged by 0.00 %
from 335,191.00 £
from 473,172.00 £
from 1,162.00 £/mo
from 0.00 £/mo
from 4.16 %
from 18.00 %
Agent Activity
Taylor Engley created the listing.
Nearby Schools
| Name | Type | Ofsted | Distance |
|---|---|---|---|
| Motcombe Infants' School | Community School | Good | 0.64 KM |
| The South Downs School | Academy Special Converter | Outstanding | 0.86 KM |
| The Cavendish School | Academy Converter | Good | 0.88 KM |
| Pashley Down Infant School | Community School | Good | 1.03 KM |
| Gildredge House | Free Schools | Good | 1.19 KM |
Images
Nearby Streets
| Name | Average Price | Average Sqft | Distance |
|---|---|---|---|
| Upwick Mews | £ 499,950 | 0 | 0.00 KM |
| Vicarage Lane | £ 365,000 | 0 | 0.00 KM |
| Church Lane | £ 0 | 0 | 0.00 KM |
| St. Mary's Cottages | £ 0 | 0 | 0.00 KM |
| Fairway Close | £ 0 | 0 | 0.00 KM |
Nearby Transport
| Name | NLC | TLC | Distance |
|---|---|---|---|
| Eastbourne | 5448 | EBN | 2.52 KM |
| Hampden Park (Sussex) | 5450 | HMD | 3.48 KM |
| Polegate | 5455 | PLG | 5.61 KM |
| Pevensey And Westham | 5461 | PEV | 8.73 KM |
Nearby Listings
| Address | Price | Type | Score | Distance |
|---|---|---|---|---|
| Victoria Drive, Old Town, Eastbourne | £ 599,950 | BUY | 7 / 10 | 0.00 KM |
| Victoria Drive, Old Town, Eastbourne, East Sussex, BN20 | £ 650,000 | BUY | 7 / 10 | 0.04 KM |
| Victoria Drive, Eastbourne, BN20 8JU | £ 620,000 | BUY | 8 / 10 | 0.04 KM |
| Victoria Drive, Eastbourne | £ 650,000 | BUY | 7 / 10 | 0.04 KM |
| Victoria Drive, Eastbourne, BN20 8JX | £ 495,000 | BUY | 7 / 10 | 0.05 KM |
Nearby Properties
| Address | Price | Distance |
|---|---|---|
| 20 Victoria Drive | £ 312,000 | 0.04 KM |
| 28 Victoria Drive | £ 186,000 | 0.04 KM |
| 30 Victoria Drive | £ 203,000 | 0.04 KM |
| 26 Victoria Drive | £ 245,000 | 0.04 KM |
| 49 Victoria Drive | £ 280,000 | 0.05 KM |