Stevens & Carter says ..
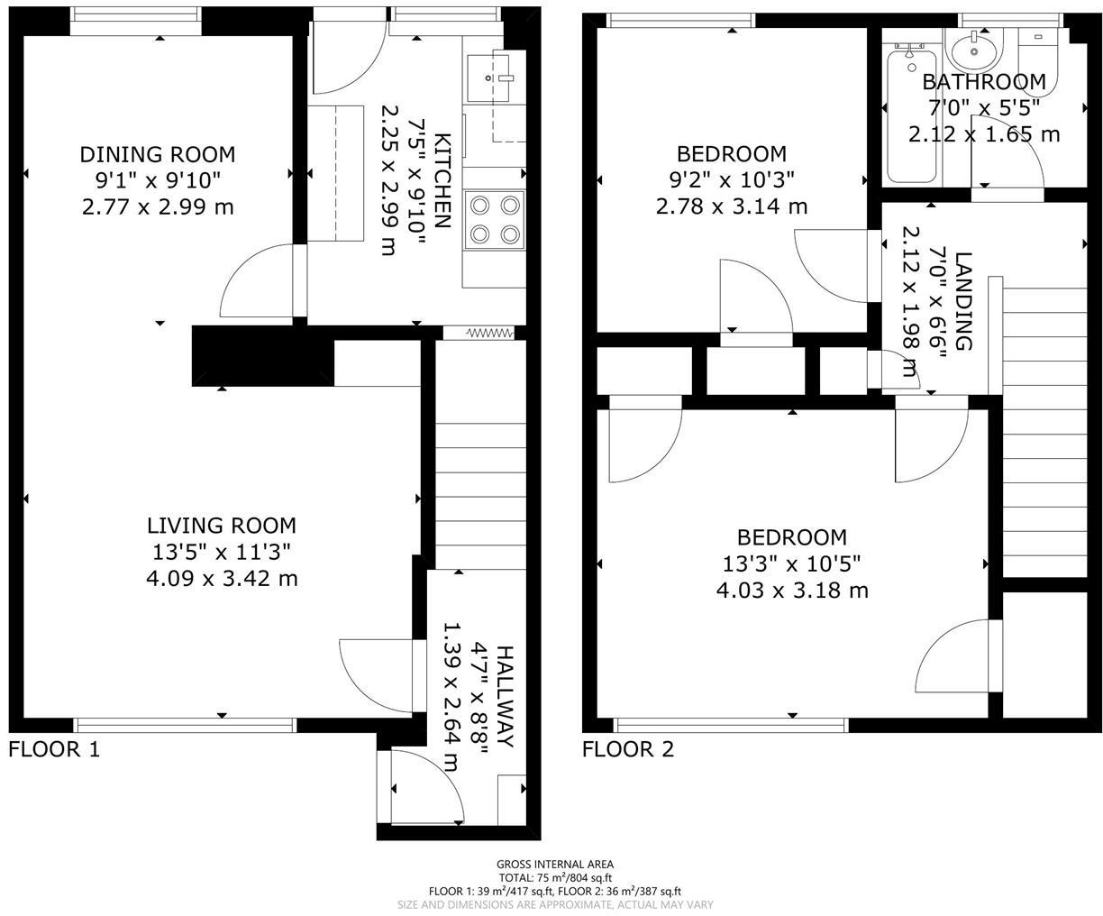
3D Virtual Tour I Vendor Suited I Popular Location I Two Double Bedrooms I Lounge/Dining Room I Fitted Kitchen I Gas Central Heating I Garage I Viewing Advised I Perfect First Purchase I Calling all first time buyers!!! Stevens and Carter are delighted to bring to the market this well p...
Property Oracle says ..
The property is located in Hailsham Central, Wealden, East Sussex. It is within a reasonable distance of several schools with good Ofsted ratings and train stations, making it convenient for families and commuters. The property appears to be in fair condition, with some areas needing modernisation, but no major structural issues are evident. While a precise price per square foot comparison is impossible due to missing data in nearby property listings, the list price seems to be in line with the general range of similar properties in the area. More data would allow for a more precise evaluation.
Therefore, we give this property 6 / 10. *Disclaimer: This is our option and does constitute a recommendation or financial advice. Do your own research. *
- Price
- 6
- Condition
- 6
- Location
- 7
- Land
- 7
- Bedrooms
- 2
- Bathrooms
- 1
- Sqft (est)
- 854.44
The heatmap indicates the level of crime in the area. The color of the heatmap indicates the crime severity and recency.
Metrics Year-on-Year
- Average area value
- 1,332,494.00 £Increased by 19.68 %
- Est sale value
- 1,192,798.24 £Increased by 164.90 %
- Average area rental value
- 1,800.00 £/moDecreased by 54.11 %
- Est letting value
- 854.44 £/moUnchanged by 0.00 %
- Est rental Yield
- 1.62 %Decreased by 61.70 %
- Crime Rate
- 4.00 %Unchanged by 0.00 %
Agent Activity
Stevens & Carter created the listing.
Nearby Schools
| Name | Type | Ofsted | Distance |
|---|---|---|---|
| The Ropemakers' Academy | Free Schools Special | 0.60 KM | |
| Hailsham Community College | Academy Converter | Good | 0.67 KM |
| Hawkes Farm Academy | Academy Sponsor Led | Good | 0.71 KM |
| White House Academy | Academy Sponsor Led | Good | 0.94 KM |
| Grovelands Community Primary School | Foundation School | Good | 1.24 KM |
Images
Nearby Streets
| Name | Average Price | Average Sqft | Distance |
|---|---|---|---|
| A295 | £ 0 | 0 | 0.00 KM |
| Hawkstown Gardens | £ 373,750 | 0 | 0.00 KM |
| Carriers Path | £ 0 | 0 | 0.00 KM |
| Vicarage Field | £ 115,000 | 0 | 0.00 KM |
| Orchid Grove | £ 0 | 0 | 0.00 KM |
Nearby Transport
| Name | NLC | TLC | Distance |
|---|---|---|---|
| Polegate | 5455 | PLG | 5.80 KM |
| Hampden Park (Sussex) | 5450 | HMD | 8.69 KM |
| Pevensey And Westham | 5461 | PEV | 9.61 KM |
Nearby Listings
| Address | Price | Type | Score | Distance |
|---|---|---|---|---|
| Harmers Hay Road, Hailsham, BN27 | £ 280,000 | BUY | Unknown | 0.10 KM |
| Hawthylands Crescent, Hailsham | £ 600,000 | BUY | 8 / 10 | 0.11 KM |
| Hawthylands Crescent, Hailsham, BN27 | £ 550,000 | BUY | 7 / 10 | 0.14 KM |
| Hawthylands Crescent, Hailsham, BN27 | £ 580,000 | BUY | 8 / 10 | 0.15 KM |
| Harmers Hay Road, Hailsham | £ 375,000 | BUY | 7 / 10 | 0.16 KM |
Nearby Properties
| Address | Price | Distance |
|---|---|---|
| 11 Laburnum Green | £ 279,000 | 0.07 KM |
| 12 Laburnum Green | £ 245,000 | 0.07 KM |
| 1 Laburnum Green | £ 287,500 | 0.07 KM |
| 14 Laburnum Green | £ 201,000 | 0.07 KM |
| 3 Laburnum Green | £ 325,000 | 0.07 KM |