Castle Bridge Cottages, North Warnborough, Hampshire, RG29
MA

Castle Bridge Cottages, North Warnborough, Hampshire, RG29

By Mackenzie Smith

£ 416,500

Reviews

3 out of 5 stars

Mackenzie Smith says ..

Offering *no onward chain*, this is a rare opportunity to purchase a unique, newly restored Grade II listed cottage remarkable character, a new kitchen, carpets and good sized bedrooms, plus a large garden.

Property Oracle says ..

This Grade II listed cottage in North Warnborough, Hampshire, presents a blend of charming character and modern updates. The property, part of a row of cottages, boasts a newly restored interior with a well-presented kitchen and bathroom. The three bedrooms provide ample space for a family. The exterior displays the traditional charm of a period property, featuring brickwork and a tiled roof. However, some minor imperfections are noticeable. The listing mentions a large garden, but the images suggest a relatively modest size, although it does include a patio area. The location within the village is convenient, with schools and transportation links within reach. The main road proximity could be a factor for potential buyers. The overall impression is a well-maintained cottage with character, offering a comfortable family home in a desirable village location. The lack of precise square footage for the property and comparable properties prevents detailed market analysis for accurate price per square foot comparison.

Therefore, we give this property 6 / 10. *Disclaimer: This is our option and does constitute a recommendation or financial advice. Do your own research. *

Price
7
Condition
6
Location
7
Land
4
Bedrooms
3
Bathrooms
1
Sqft (est)
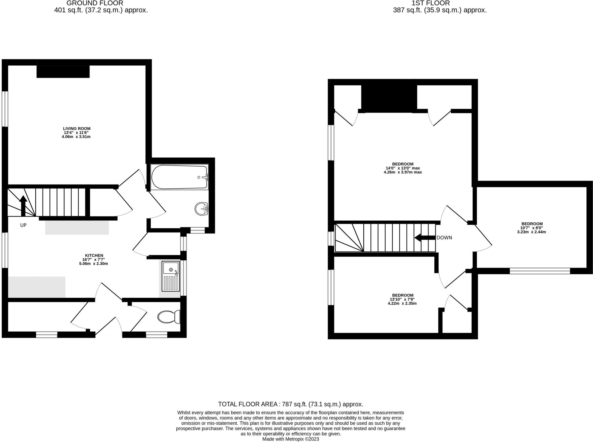
787.00

The heatmap indicates the level of crime in the area. The color of the heatmap indicates the crime severity and recency.

Metrics Year-on-Year

Average area value
239,000.00 £
Increased by 24.44 %
from 192,055.00 £
Est sale value
211,703.00 £
Increased by 15.95 %
from 182,584.00 £
Average area rental value
850.00 £/mo
Decreased by 8.60 %
from 930.00 £/mo
Est letting value
0.00 £/mo
Decreased by 100.00 %
from 787.00 £/mo
Est rental Yield
4.27 %
Decreased by 26.51 %
from 5.81 %
Crime Rate
8.00 %
Unchanged by 0.00 %
from 8.00 %

Agent Activity

  • Mackenzie Smith created the listing.

Nearby Schools

NameTypeOfstedDistance
Robert May'S SchoolAcademy ConverterGood0.99 KM
Wisteria Children'S CentreChildren's Centre Linked Site1.68 KM
Mayhill Junior SchoolCommunity SchoolGood1.73 KM
Buryfields Infant SchoolCommunity SchoolGood1.97 KM
Hook Junior SchoolCommunity SchoolOutstanding2.48 KM

Images

Picture No. 01 Picture No. 12 Picture No. 23 Picture No. 06 Picture No. 15 Picture No. 08 Picture No. 05 Picture No. 03 Picture No. 13 Picture No. 11 Picture No. 25 Picture No. 18 Picture No. 04 Picture No. 20 Picture No. 24 Picture No. 02 Picture No. 36 Picture No. 35 Picture No. 52 Picture No. 46 Picture No. 55 Picture No. 44 Picture No. 40 Picture No. 41 Picture No. 42 Picture No. 39 Picture No. 47 Picture No. 48 Picture No. 43 Picture No. 49 Picture No. 50 Picture No. 51 Picture No. 53 Picture No. 54 Picture No. 56 Picture No. 45 Picture No. 37 Picture No. 38

Nearby Streets

NameAverage PriceAverage SqftDistance
Castle Rise £ 405,00000.00 KM
B3349 £ 000.00 KM
The Green £ 000.00 KM
Crumplins Business Court £ 575,00000.00 KM
Warren Andrew Drive £ 117,08300.00 KM

Nearby Transport

NameNLCTLCDistance
Hook5523HOK2.27 KM
Winchfield5528WNF5.61 KM

Nearby Listings

AddressPriceTypeScoreDistance
Castle Bridge Cottages, North Warnborough, Hampshire, RG29 £ 416,500BUY6 / 100.00 KM
Hook Road, North Warnborough, Hook, Hampshire, RG29 £ 390,000BUYUnknown0.05 KM
Jolly Miller Close, North Warnborough, Hook £ 500,000BUY7 / 100.10 KM
Hook Road, North Warnborough, Hook, RG29 £ 1,350,000BUY7 / 100.12 KM
Hook Road, North Warnborough £ 465,000BUY7 / 100.20 KM

Nearby Properties

AddressPriceDistance
Nevills House £ 565,0000.02 KM
The Bakery £ 321,0000.02 KM
The Granary £ 327,5000.02 KM
Strete Farm £ 1,200,0000.14 KM
Jolly Miller Cottage £ 370,0000.16 KM