Bressay Drive, Mill Hill, London, NW7
By Foxtons
£ 415,000
Reviews
3 out of 5 stars
Foxtons says ..
A well-presented two bedroom second floor flat offering generous living space, wood flooring, an en suite main bedroom plus off-street parking.
Property Oracle says ..
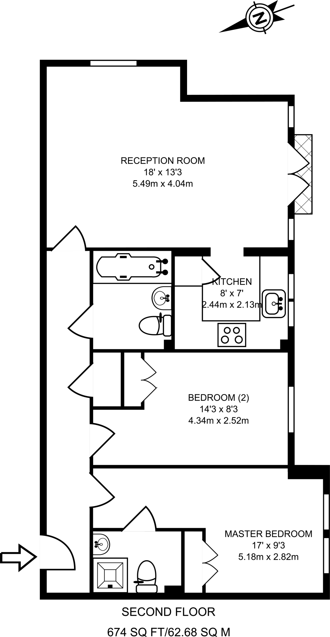
This 2-bedroom, 2-bathroom flat in Mill Hill, London is listed at £415,000. The property is situated in a convenient location with nearby transportation links (Mill Hill Broadway station is approximately 1.89km away), schools (including the good-rated Copthall School), and amenities. The flat itself appears to be in good condition based on the provided images, with a modern kitchen and updated bathrooms. While the plot size is relatively small at 674 sqft, the property offers approximately 574 sqft of living space. Compared to the area average price of £833,054 and average price per sqft of £524, this flat represents a significantly lower price per sqft. However, it is important to note that the average property size in the area is substantially larger (1588 sqft). Nearby comparable properties range in price from £325,000 to over £775,000, but lack sufficient data to accurately compare sqft. The list price of £415,000 may present good value for money considering its location and condition, but potential buyers should carefully consider the smaller size compared to the area average.
Therefore, we give this property 6 / 10. *Disclaimer: This is our option and does constitute a recommendation or financial advice. Do your own research. *
- Price
- 7
- Condition
- 8
- Location
- 7
- Land
- 3
- Bedrooms
- 2
- Bathrooms
- 2
- Sqft (est)
- 574.00
- Lot (est)
- 674.00
The heatmap indicates the level of crime in the area. The color of the heatmap indicates the crime severity and recency.
Metrics Year-on-Year
- Average area value
- 696,062.00 £Decreased by 2.02 %
- Est sale value
- 297,906.00 £Decreased by 10.05 %
- Average area rental value
- 2,443.00 £/moDecreased by 15.35 %
- Est letting value
- 574.00 £/moDecreased by 50.00 %
- Est rental Yield
- 4.21 %Decreased by 13.55 %
- Crime Rate
- 4.00 %Unchanged by 0.00 %
Agent Activity
Foxtons created the listing.
Nearby Schools
| Name | Type | Ofsted | Distance |
|---|---|---|---|
| Hasmonean High School For Girls | Academy Converter | 0.21 KM | |
| Copthall School | Academy Converter | Good | 0.38 KM |
| St James' Catholic High School | Voluntary Aided School | Good | 0.94 KM |
| Blessed Dominic Catholic Primary School | Voluntary Aided School | Outstanding | 0.94 KM |
| Dollis Primary School | Community School | Good | 1.11 KM |
Images
Nearby Streets
| Name | Average Price | Average Sqft | Distance |
|---|---|---|---|
| Ladysmith Close | £ 697,500 | 0 | 0.00 KM |
| Holland Court | £ 0 | 0 | 0.00 KM |
| Greenlands lane | £ 0 | 0 | 0.00 KM |
| Dove Close | £ 0 | 0 | 0.00 KM |
| Meldex Close | £ 0 | 0 | 0.00 KM |
Nearby Transport
| Name | NLC | TLC | Distance |
|---|---|---|---|
| Mill Hill Broadway | 1527 | MIL | 1.89 KM |
| Hendon | 1522 | HEN | 2.88 KM |
| Cricklewood | 1519 | CRI | 5.74 KM |
| Elstree And Borehamwood | 1542 | ELS | 7.35 KM |
| Brondesbury | 1437 | BSY | 7.58 KM |
Nearby Listings
| Address | Price | Type | Score | Distance |
|---|---|---|---|---|
| Page Street, London, NW7 | £ 1,150,000 | BUY | 6 / 10 | 0.04 KM |
| Page Street, Mill Hill, London, NW7 | £ 1,150,000 | BUY | Unknown | 0.05 KM |
| Bampton Drive, Mill Hill, NW7 | £ 735,000 | BUY | Unknown | 0.09 KM |
| Bampton Drive, Mill Hill, NW7 | £ 800,000 | BUY | 7 / 10 | 0.09 KM |
| Bampton Drive, Mill Hill, NW7 | £ 365,000 | BUY | 5 / 10 | 0.09 KM |
Nearby Properties
| Address | Price | Distance |
|---|---|---|
| 6 Bressay Drive | £ 625,000 | 0.03 KM |
| 30 Bampton Drive | £ 499,999 | 0.09 KM |
| 7 Bampton Drive | £ 775,000 | 0.09 KM |
| 20 Bampton Drive | £ 460,000 | 0.09 KM |
| 18 Bampton Drive | £ 689,950 | 0.09 KM |