Acorn Way, Pool In Wharfedale, LS21
By Hunters
£ 285,000
Reviews
3 out of 5 stars
Hunters says ..
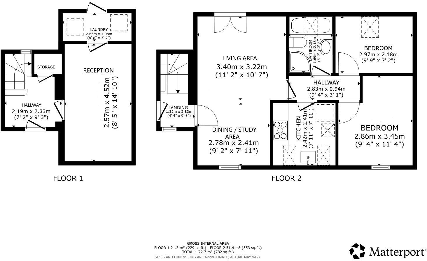
A beautifully presented detached property offering a rare combination of privacy, space and versatility. Positioned above three garages - two of which are held on a long term leases and the third comes as part of the sale and has been altered to enable it to be used as a versatile living space w...
Property Oracle says ..
This is a well-presented detached property in a popular location. The property benefits from a modern interior, a good-sized garden, and off-street parking. The property is located close to good schools and transportation links, making it an ideal family home.
Therefore, we give this property 7 / 10. *Disclaimer: This is our option and does constitute a recommendation or financial advice. Do your own research. *
- Price
- 7
- Condition
- 8
- Location
- 7
- Land
- 7
- Bedrooms
- 2
- Bathrooms
- 1
- Sqft (est)
- 283.74
The heatmap indicates the level of crime in the area. The color of the heatmap indicates the crime severity and recency.
Metrics Year-on-Year
- Average area value
- 444,966.00 £Increased by 5.54 %
- Est sale value
- 127,683.00 £Increased by 32.35 %
- Average area rental value
- 1,480.00 £/moDecreased by 0.34 %
- Est letting value
- 283.74 £/moUnchanged by 0.00 %
- Est rental Yield
- 3.99 %Decreased by 5.67 %
- Crime Rate
- 16.00 %Unchanged by 0.00 %
Agent Activity
Hunters created the listing.
Nearby Schools
| Name | Type | Ofsted | Distance |
|---|---|---|---|
| Pool-In-Wharfedale Church Of England Voluntary Controlled Primary School | Voluntary Controlled School | Good | 0.45 KM |
| Bramhope Primary School | Academy Converter | 1.86 KM | |
| Cookridge Holy Trinity Church Of England Primary School | Voluntary Aided School | Good | 4.42 KM |
| Cookridge Primary School | Foundation School | Good | 4.79 KM |
| Ralph Thoresby School | Foundation School | Good | 4.82 KM |
Images
Nearby Streets
| Name | Average Price | Average Sqft | Distance |
|---|---|---|---|
| Rowan Close | £ 420,000 | 0 | 0.00 KM |
| Hawthorn Avenue | £ 0 | 0 | 0.00 KM |
| Swallow Drive | £ 509,579 | 0 | 0.00 KM |
| Bramble Grove | £ 180,000 | 0 | 0.00 KM |
| Stonedale Close | £ 595,000 | 0 | 0.00 KM |
Nearby Transport
| Name | NLC | TLC | Distance |
|---|---|---|---|
| Weeton | 8509 | WET | 5.19 KM |
| Horsforth | 8499 | HRS | 5.70 KM |
| Kirkstall Forge | 6544 | KLF | 8.28 KM |
| Headingley | 8498 | HDY | 9.39 KM |
Nearby Listings
| Address | Price | Type | Score | Distance |
|---|---|---|---|---|
| Acorn Way, Pool In Wharfedale, LS21 | £ 285,000 | BUY | 7 / 10 | 0.00 KM |
| Acorn Way, Pool In Wharfedale, Otley | £ 349,950 | BUY | Unknown | 0.04 KM |
| Acorn Way, Pool-in-Wharfedale Village, Leeds, West Yorkshire | £ 309,950 | BUY | 7 / 10 | 0.04 KM |
| Acorn Way, Pool in Wharfedale, Otley, West Yorkshire, LS21 | £ 365,000 | BUY | 7 / 10 | 0.04 KM |
| Hawthorn Avenue, Pool In Wharfedale | £ 400,000 | BUY | Unknown | 0.12 KM |
Nearby Properties
| Address | Price | Distance |
|---|---|---|
| 19 Acorn Way | £ 480,000 | 0.03 KM |
| 8 Acorn Way | £ 473,800 | 0.03 KM |
| 41 Acorn Way | £ 307,500 | 0.03 KM |
| 32 Acorn Way | £ 760,500 | 0.03 KM |
| 33 Acorn Way | £ 200,000 | 0.03 KM |