Land adjoining 4 College Road, Maidenhead
By Waterman
£ 450,000
Reviews
3 out of 5 stars
Waterman says ..
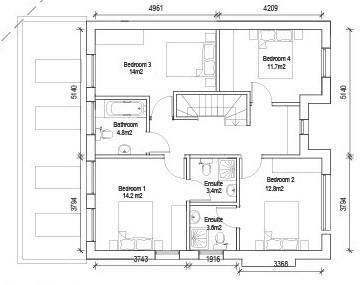
"A RARE DEVELOPMENT OPPORTUNITY" to purchase a building plot. Planning permission has been confirmed for a 4 bedroomed detached house to the side garden (planning application no. 23/00396 FULL. The property is situated within easy walking distance to the town and railway station.
Property Oracle says ..
This listing presents a development opportunity to purchase a building plot in Maidenhead, Berkshire, with planning permission already secured for a four-bedroom detached house. The location is convenient, situated within walking distance of Maidenhead town centre and the railway station, providing good access to amenities and transportation links. Several reputable schools are located within a reasonable distance. The existing property appears in fair condition, though showing signs of age and needing potential upgrades or demolition. The plot size of 1,334 sqft is sufficient for the proposed new build. The aerial photos show a good-sized garden and the potential to create a desirable living space. The list price of £450,000 should be analyzed thoroughly in relation to potential building and demolition costs before making a final assessment on the overall value. The nearby properties provide a range of prices, which demonstrate significant variance in property type and size in the surrounding area. More information on building costs and final valuation once developed is crucial to determining the true value proposition of this property.
Therefore, we give this property 6 / 10. *Disclaimer: This is our option and does constitute a recommendation or financial advice. Do your own research. *
- Price
- 7
- Condition
- 4
- Location
- 7
- Land
- 6
- Bedrooms
- 0
- Bathrooms
- 0
- Lot (est)
- 1,334.00
The heatmap indicates the level of crime in the area. The color of the heatmap indicates the crime severity and recency.
Metrics Year-on-Year
- Average area value
- 426,436.00 £Decreased by 1.59 %
- Average area rental value
- 1,587.00 £/moDecreased by 7.46 %
- Est rental Yield
- 4.47 %Decreased by 5.89 %
- Crime Rate
- 3.00 %Unchanged by 0.00 %
Agent Activity
Waterman created the listing.
Nearby Schools
| Name | Type | Ofsted | Distance |
|---|---|---|---|
| Claires Court Schools | Other Independent School | 0.39 KM | |
| St Piran'S School | Other Independent School | 0.57 KM | |
| Highfield Preparatory School Limited | Other Independent School | 0.86 KM | |
| Furze Platt Junior School | Community School | Outstanding | 0.94 KM |
| Furze Platt Infant School | Community School | Good | 0.94 KM |
Images
Nearby Streets
| Name | Average Price | Average Sqft | Distance |
|---|---|---|---|
| Leander Way | £ 0 | 0 | 0.00 KM |
| Archer Close | £ 1,250,000 | 0 | 0.00 KM |
| Castle Court | £ 0 | 0 | 0.00 KM |
| Wellington Mews | £ 0 | 0 | 0.00 KM |
| Derwent Drive | £ 805,000 | 0 | 0.00 KM |
Nearby Transport
| Name | NLC | TLC | Distance |
|---|---|---|---|
| Furze Platt | 3144 | FZP | 1.00 KM |
| Maidenhead | 3147 | MAI | 1.59 KM |
| Cookham | 3019 | COO | 3.71 KM |
| Taplow | 3151 | TAP | 5.91 KM |
| Marlow | 3021 | MLW | 6.07 KM |
Nearby Listings
| Address | Price | Type | Score | Distance |
|---|---|---|---|---|
| Land adjoining 4 College Road, Maidenhead | £ 450,000 | BUY | 6 / 10 | 0.00 KM |
| College Road, Maidenhead, Berkshire, SL6 | £ 650,000 | BUY | 7 / 10 | 0.02 KM |
| College Road, Maidenhead | £ 625,000 | BUY | Unknown | 0.07 KM |
| College Road, Maidenhead, Berkshire | £ 765,000 | BUY | 6 / 10 | 0.11 KM |
| Belmont Road, Maidenhead, Berkshire | £ 525,000 | BUY | 6 / 10 | 0.12 KM |
Nearby Properties
| Address | Price | Distance |
|---|---|---|
| 9 College Road | £ 650,000 | 0.06 KM |
| 11 College Road | £ 485,000 | 0.06 KM |
| 1 College Road | £ 470,000 | 0.06 KM |
| 7 College Road | £ 312,000 | 0.07 KM |
| 63 Belmont Road | £ 567,000 | 0.07 KM |