Bridgewater Place, Leeds City Centre
By The Estate Agency Leeds
£ 170,000
Reviews
2 out of 5 stars
The Estate Agency Leeds says ..
PRICED TO SELL, INVESTMENT SALE OFFERING ABOVE 9.5% GROSS YIELD OR OWNER OCCUPIER , 2 BED, 2 BATH, PARKING, CONCIERGE, GYM
Property Oracle says ..
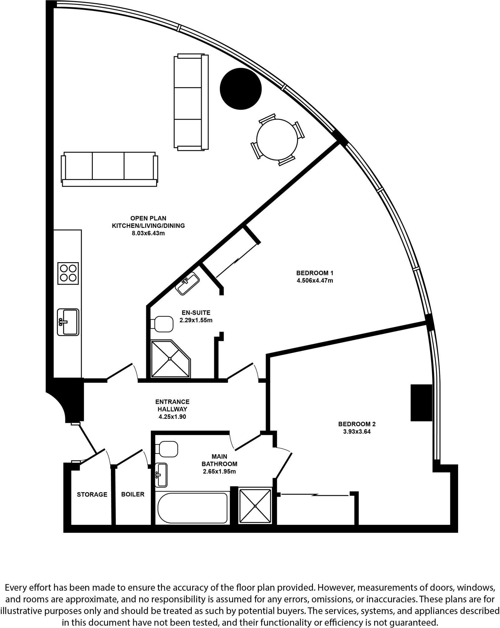
This two-bedroom, two-bathroom apartment is located in the Bridgewater Place development in Leeds City Centre. The property is situated in a prominent location and benefits from close proximity to Leeds train station. The apartment appears to be modern and well-maintained, with a contemporary design. The images showcase a functional open-plan living area, modern kitchen, and two contemporary bathrooms. The apartment offers panoramic views over the city. However, it’s important to note that, as an apartment, it lacks private outdoor space. The absence of plot size data for both this property and comparable listings limits a detailed analysis of the price per square foot, making a precise determination of value challenging. Additional information on the building’s amenities (e.g., concierge service, gym access as suggested in other listings) would be helpful in assessing overall value.
Therefore, we give this property 5 / 10. *Disclaimer: This is our option and does constitute a recommendation or financial advice. Do your own research. *
- Price
- 7
- Condition
- 6
- Location
- 7
- Land
- 1
- Bedrooms
- 2
- Bathrooms
- 2
- Sqft (est)
- 946.90
The heatmap indicates the level of crime in the area. The color of the heatmap indicates the crime severity and recency.
Metrics Year-on-Year
- Average area value
- 488,600.00 £Decreased by 6.01 %
- Est sale value
- 595,600.10 £Increased by 9.01 %
- Average area rental value
- 1,814.00 £/moIncreased by 6.02 %
- Est letting value
- 1,893.80 £/moIncreased by 100.00 %
- Est rental Yield
- 4.46 %Increased by 12.91 %
- Crime Rate
- 1.00 %Unchanged by 0.00 %
Agent Activity
The Estate Agency Leeds created the listing.
Nearby Schools
| Name | Type | Ofsted | Distance |
|---|---|---|---|
| Lane End Primary School | Foundation School | Good | 0.91 KM |
| City And Holbeck Children'S Centre | Children's Centre | 1.14 KM | |
| Adel Beck | Secure Units | 1.18 KM | |
| New Bewerley Children'S Centre | Children's Centre | 1.28 KM | |
| The New Bewerley Community Primary School | Community School | Good | 1.30 KM |
Images
Nearby Streets
| Name | Average Price | Average Sqft | Distance |
|---|---|---|---|
| A653 | £ 0 | 0 | 0.00 KM |
| New Lane | £ 0 | 0 | 0.00 KM |
| Sandford Street | £ 0 | 0 | 0.00 KM |
| South Concourse | £ 0 | 0 | 0.00 KM |
| Neville Street | £ 0 | 0 | 0.00 KM |
Nearby Transport
| Name | NLC | TLC | Distance |
|---|---|---|---|
| Leeds | 8487 | LDS | 0.45 KM |
| Burley Park | 8500 | BUY | 4.01 KM |
| Cottingley | 8505 | COT | 5.13 KM |
| Headingley | 8498 | HDY | 5.90 KM |
| Morley | 8504 | MLY | 6.64 KM |
Nearby Listings
| Address | Price | Type | Score | Distance |
|---|---|---|---|---|
| Bridgewater Place, Leeds City Centre | £ 185,000 | BUY | Unknown | 0.00 KM |
| Water Lane, Leeds, LS11 | £ 125,000 | BUY | 6 / 10 | 0.00 KM |
| Water Lane, Leeds, West Yorkshire, LS11 | £ 205,000 | BUY | 6 / 10 | 0.00 KM |
| Bridgewater Place, Leeds City Centre | £ 170,000 | BUY | 5 / 10 | 0.00 KM |
| Water Lane, Leeds, West Yorkshire, LS11 | £ 200,000 | BUY | 5 / 10 | 0.00 KM |
Nearby Properties
| Address | Price | Distance |
|---|---|---|
| 29 Butcher Street | £ 175,000 | 0.59 KM |
| 39 Butcher Street | £ 102,000 | 0.59 KM |
| 8 Butcher Street | £ 170,000 | 0.59 KM |
| 28 Butcher Street | £ 155,000 | 0.59 KM |
| 43 Butcher Street | £ 182,500 | 0.59 KM |