Castlefield Close, Liverpool, Merseyside, L12
By Reeds Rains
£ 300,000
Reviews
3 out of 5 stars
Reeds Rains says ..
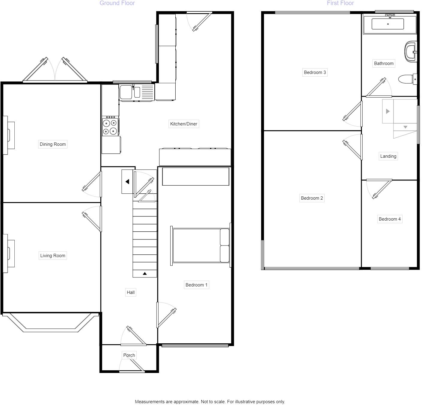
A stunning traditional family home that is a must see!!! This light bright and recently refurbished link semi-detached home, situated in the quiet cul-de-sac of Castlefield Close. This ideal home has benefitted from a full refurbishment by the current owner & offers a ...
Property Oracle says ..
This four-bedroom semi-detached house in Castlefield Close, West Derby, Liverpool, presents as a well-maintained and recently refurbished property. The photographs reveal a modern kitchen and bathroom, suggesting a high standard of finish. The house benefits from a sizeable garden, adding to its family appeal. The location in West Derby offers proximity to several good schools, indicating strong potential for families. Transportation links to the city centre and beyond are also within reach, though not immediately adjacent. While the asking price of £300,000 falls within the range of similar properties in the area, a more precise valuation would benefit from more detailed information on comparable sold prices, especially their square footage to accurately assess value for money. The property’s condition is a major strength, but the lack of precise plot size and comprehensive local market data limit the definitive assessment of its overall value.
Therefore, we give this property 7 / 10. *Disclaimer: This is our option and does constitute a recommendation or financial advice. Do your own research. *
- Price
- 7
- Condition
- 9
- Location
- 7
- Land
- 6
- Bedrooms
- 4
- Bathrooms
- 1
- Sqft (est)
- 1,000.00
The heatmap indicates the level of crime in the area. The color of the heatmap indicates the crime severity and recency.
Metrics Year-on-Year
- Average area value
- 317,857.00 £Increased by 29.54 %
- Est sale value
- 288,000.00 £Increased by 29.15 %
- Average area rental value
- 933.00 £/moDecreased by 30.89 %
- Est letting value
- 0.00 £/moDecreased by 100.00 %
- Est rental Yield
- 3.52 %Decreased by 46.67 %
- Crime Rate
- 4.00 %Unchanged by 0.00 %
Agent Activity
Reeds Rains marked this listing as sold.
Reeds Rains created the listing.
Nearby Schools
| Name | Type | Ofsted | Distance |
|---|---|---|---|
| St Mary'S Church Of England Primary School, West Derby | Voluntary Aided School | Good | 0.68 KM |
| Holly Lodge Girls' College | Community School | Good | 0.74 KM |
| Monksdown Primary School | Community School | Good | 0.79 KM |
| Broad Square Community Primary School | Community School | Good | 0.94 KM |
| Runnymede St Edward'S Catholic Primary School | Voluntary Aided School | 1.20 KM |
Images
Nearby Streets
| Name | Average Price | Average Sqft | Distance |
|---|---|---|---|
| Hayman's Close | £ 0 | 0 | 0.00 KM |
| Mill Lane | £ 430,000 | 0 | 0.00 KM |
| Murry Close | £ 0 | 0 | 0.00 KM |
| Millfield Close | £ 75,000 | 0 | 0.00 KM |
| Sandy Lane | £ 170,000 | 0 | 0.00 KM |
Nearby Transport
| Name | NLC | TLC | Distance |
|---|---|---|---|
| Wavertree Technology Park | 8589 | WAV | 3.34 KM |
| Broad Green | 2240 | BGE | 3.98 KM |
| Fazakerley | 2126 | FAZ | 4.48 KM |
| Edge Hill | 2169 | EDG | 4.88 KM |
| Rice Lane | 2131 | RIL | 5.74 KM |
Nearby Listings
| Address | Price | Type | Score | Distance |
|---|---|---|---|---|
| 109 ALMONDS GREEN, WEST DERBY, LIVERPOOL | £ 175,000 | BUY | 5 / 10 | 0.11 KM |
| Almonds Green, West Derby, Liverpool, L12 | £ 170,000 | BUY | 5 / 10 | 0.11 KM |
| 73 Almonds Green, Liverpool, L12 | £ 325,000 | BUY | 5 / 10 | 0.11 KM |
| 109 Almonds Green, Liverpool, Merseyside, L12 5HR | £ 175,000 | BUY | 5 / 10 | 0.13 KM |
| Almonds Green, West Derby, L12 | £ 250,000 | BUY | 7 / 10 | 0.15 KM |
Nearby Properties
| Address | Price | Distance |
|---|---|---|
| 23 Castlefield Close | £ 170,000 | 0.03 KM |
| 2 Castlefield Close | £ 150,000 | 0.03 KM |
| 12 Castlefield Close | £ 124,000 | 0.03 KM |
| 4 Castlefield Close | £ 155,000 | 0.03 KM |
| 5 Eaton Close | £ 175,000 | 0.05 KM |