SL
Hurn Way, Christchurch, Dorset, BH23
By Slades Estate Agents
£ 650,000
Reviews
3 out of 5 stars
Slades Estate Agents says ..
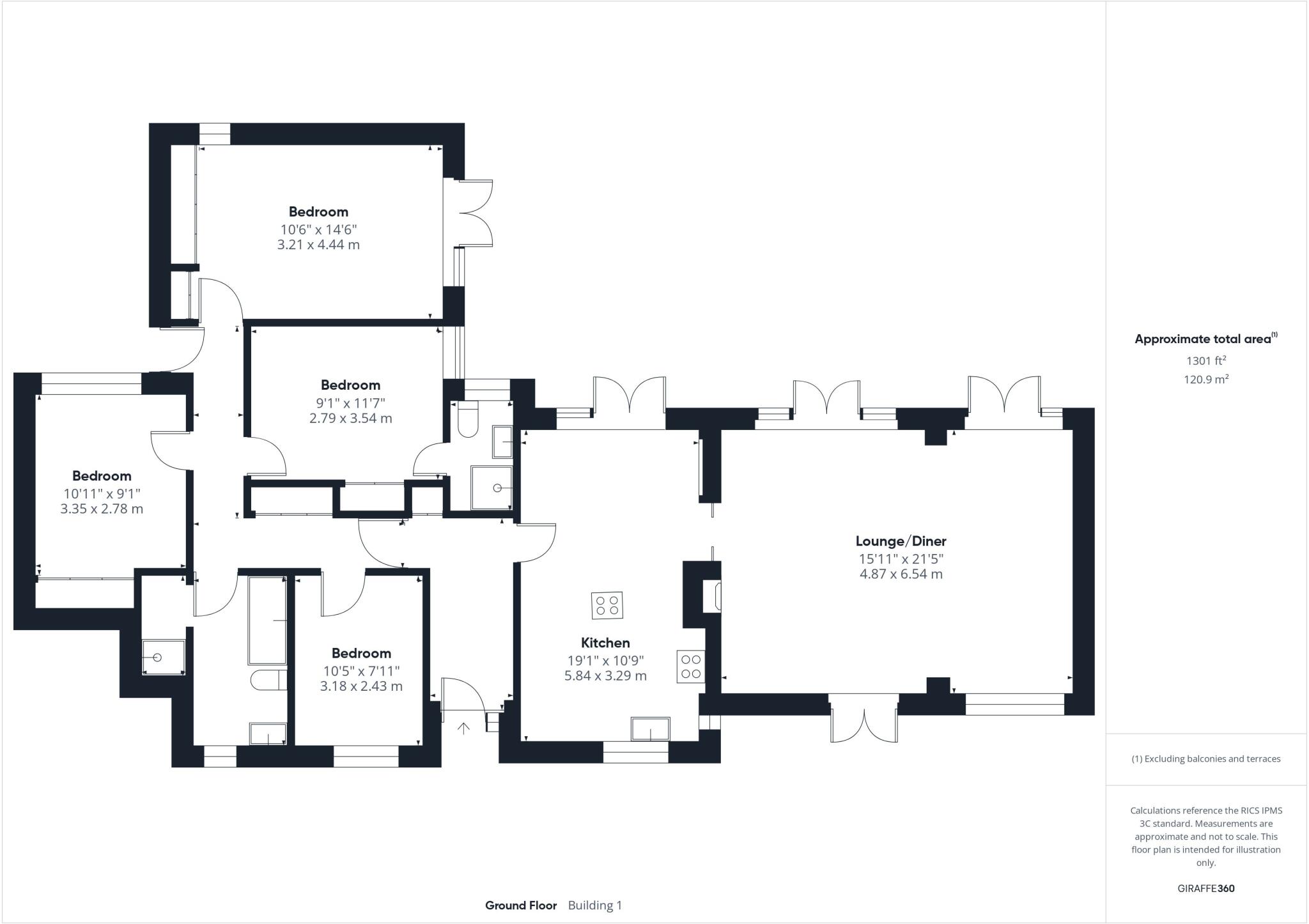
This FOUR BEDROOM DETACHED BUNGALOW is situated in the sought after residential area of WEST CHRISTCHURCH. The property is BEAUTIFULLY PRESENTED and benefits from OFF ROAD PARKING as well as a GARDEN CHALET
Property Oracle says ..
Therefore, we give this property 7 / 10. *Disclaimer: This is our option and does constitute a recommendation or financial advice. Do your own research. *
- Price
- 6
- Condition
- 8
- Location
- 7
- Land
- 7
- Bedrooms
- 4
- Bathrooms
- 2
- Sqft (est)
- 1,301.36
The heatmap indicates the level of crime in the area. The color of the heatmap indicates the crime severity and recency.
Metrics Year-on-Year
- Average area value
- 511,490.00 £Increased by 9.81 %
- Est sale value
- 641,570.48 £Increased by 26.74 %
- Average area rental value
- 1,456.00 £/moDecreased by 21.55 %
- Est letting value
- 1,301.36 £/moUnchanged by 0.00 %
- Est rental Yield
- 3.42 %Decreased by 28.45 %
- Crime Rate
- 4.00 %Unchanged by 0.00 %
from 465,811.00 £
from 506,229.04 £
from 1,856.00 £/mo
from 1,301.36 £/mo
from 4.78 %
from 4.00 %
Agent Activity
Slades Estate Agents created the listing.
Nearby Schools
| Name | Type | Ofsted | Distance |
|---|---|---|---|
| Stourfield Infant School | Academy Converter | Requires improvement | 1.82 KM |
| Stourfield Junior School | Academy Converter | Good | 1.82 KM |
| The Stable School | Other Independent Special School | Good | 1.85 KM |
| Twynham Primary School | Free Schools | Good | 2.13 KM |
| Christchurch Junior School | Academy Converter | 2.19 KM |
Images
Nearby Streets
| Name | Average Price | Average Sqft | Distance |
|---|---|---|---|
| Canberra Close | £ 675,000 | 0 | 0.00 KM |
| Ambleside | £ 0 | 0 | 0.00 KM |
| Lynton Crescent | £ 495,000 | 0 | 0.00 KM |
| Rydal Close | £ 0 | 0 | 0.00 KM |
| Crofton Close | £ 435,000 | 0 | 0.00 KM |
Nearby Transport
| Name | NLC | TLC | Distance |
|---|---|---|---|
| Christchurch | 5879 | CHR | 2.53 KM |
| Pokesdown | 5885 | POK | 3.19 KM |
| Bournemouth | 5876 | BMH | 7.19 KM |
| Hinton Admiral | 5880 | HNA | 9.92 KM |
Nearby Listings
| Address | Price | Type | Score | Distance |
|---|---|---|---|---|
| Hurn Way, Christchurch, Dorset, BH23 | £ 650,000 | BUY | 7 / 10 | 0.00 KM |
| Hurn Way, Christchurch, BH23 | £ 950,000 | BUY | 8 / 10 | 0.04 KM |
| Stourcroft Drive, Christchurch, Dorset, BH23 | £ 800,000 | BUY | 7 / 10 | 0.14 KM |
| Springfield Avenue, Christchurch, Dorset, BH23 | £ 1,000,000 | BUY | Unknown | 0.15 KM |
| West Christchurch, BH23 | £ 550,000 | BUY | 8 / 10 | 0.17 KM |
Nearby Properties
| Address | Price | Distance |
|---|---|---|
| 49 Hurn Way | £ 395,000 | 0.06 KM |
| 51a Hurn Way | £ 335,000 | 0.06 KM |
| 39 Hurn Way | £ 560,000 | 0.06 KM |
| 51 Hurn Way | £ 740,000 | 0.06 KM |
| 12 Springfield Avenue | £ 388,500 | 0.13 KM |