Eastbourne Road, South Godstone, RH9
By Move Revolution
£ 600,000
Reviews
4 out of 5 stars
Move Revolution says ..
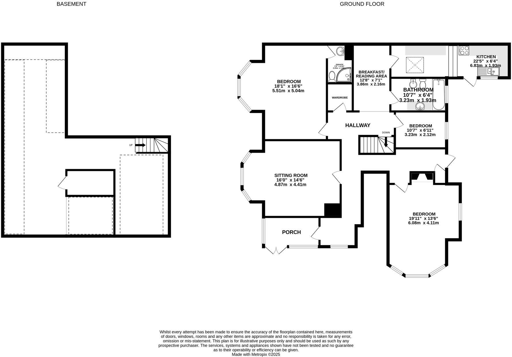
Guide Price £600,000 - £625,000 Elegant Victorian 3 bedroom ground floor maisonette with 1,463 sqft of living space. High ceilings, original features & off-street parking, close to local train station
Property Oracle says ..
This ground maisonette is located on Eastbourne Road in South Godstone, Surrey. The property benefits from being close to Godstone train station (1.79km) providing links to London and other parts of the South East. There are also several primary schools within a reasonable distance, including St Stephen’s Cofe Primary School (2.27km) and Godstone Primary and Nursery School (4.98km). The property itself is a spacious 2,488.62 sqft, featuring a traditional style with modern updates. The images show a well-maintained interior with updated kitchen and bathrooms. There is also a garden and outside space. The list price of £600,000 is slightly below the average price for the area (£614,398) and significantly lower than the average price per sqft (£534.00). Considering the size, condition, and location, the property appears to be reasonably priced.
Therefore, we give this property 8 / 10. *Disclaimer: This is our option and does constitute a recommendation or financial advice. Do your own research. *
- Price
- 9
- Condition
- 8
- Location
- 8
- Land
- 7
- Bedrooms
- 3
- Bathrooms
- 2
- Sqft (est)
- 2,488.62
The heatmap indicates the level of crime in the area. The color of the heatmap indicates the crime severity and recency.
Metrics Year-on-Year
- Average area value
- 535,833.00 £Decreased by 10.41 %
- Est sale value
- 1,742,034.00 £Increased by 34.87 %
- Average area rental value
- 1,875.00 £/moDecreased by 13.31 %
- Est letting value
- 4,977.24 £/moIncreased by 100.00 %
- Est rental Yield
- 4.20 %Decreased by 3.23 %
- Crime Rate
- 9.00 %Unchanged by 0.00 %
Agent Activity
Move Revolution created the listing.
Nearby Schools
| Name | Type | Ofsted | Distance |
|---|---|---|---|
| St Stephen'S Cofe Primary School | Academy Converter | 2.27 KM | |
| St Peter'S Cofe Infant School | Voluntary Aided School | Outstanding | 4.74 KM |
| Godstone Primary And Nursery School | Foundation School | Good | 4.98 KM |
| Lingfield Primary School | Community School | Good | 5.29 KM |
| Bletchingley Village Primary School | Academy Converter | Good | 5.71 KM |
Images
Nearby Streets
| Name | Average Price | Average Sqft | Distance |
|---|---|---|---|
| Brookside | £ 0 | 0 | 0.00 KM |
| Whitewalls | £ 0 | 0 | 0.00 KM |
Nearby Transport
| Name | NLC | TLC | Distance |
|---|---|---|---|
| Godstone | 5474 | GDN | 1.79 KM |
| Lingfield | 5369 | LFD | 6.17 KM |
| Dormans | 5413 | DMS | 7.78 KM |
| Hurst Green | 5463 | HUR | 8.06 KM |
| Oxted | 5377 | OXT | 8.32 KM |
Nearby Listings
| Address | Price | Type | Score | Distance |
|---|---|---|---|---|
| Eastbourne Road, South Godstone, RH9 | £ 600,000 | BUY | 8 / 10 | 0.00 KM |
| Flat , Marle House, Eastbourne Road, South Godstone, Godstone | £ 325,000 | BUY | 7 / 10 | 0.04 KM |
| Eastbourne Road, Godstone | £ 475,000 | BUY | 6 / 10 | 0.04 KM |
| Eastbourne Road, South Godstone, Godstone, Surrey, RH9 | £ 1,400,000 | BUY | 8 / 10 | 0.35 KM |
| Edenbrook Place, Blindley Heath, RH7 | £ 475,000 | BUY | 7 / 10 | 0.40 KM |
Nearby Properties
| Address | Price | Distance |
|---|---|---|
| Dene Cottage | £ 383,000 | 0.26 KM |
| Brook Cottage | £ 615,000 | 0.26 KM |
| The Old Stables | £ 440,000 | 0.26 KM |
| Sunhill Lodge | £ 775,000 | 0.26 KM |
| Blue Feltons | £ 465,000 | 0.44 KM |