Segensworth Road, Titchfield
By Taylor Hill & Bond
£ 750,000
Reviews
4 out of 5 stars
Taylor Hill & Bond says ..
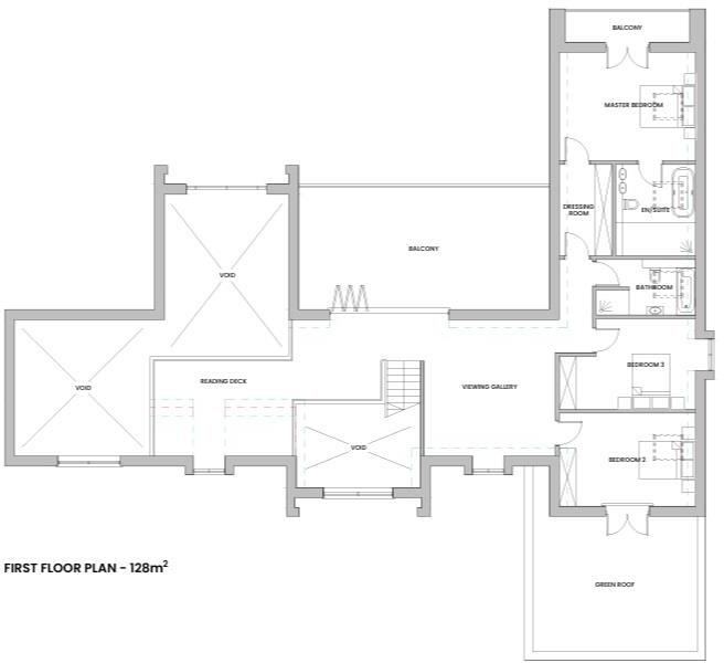
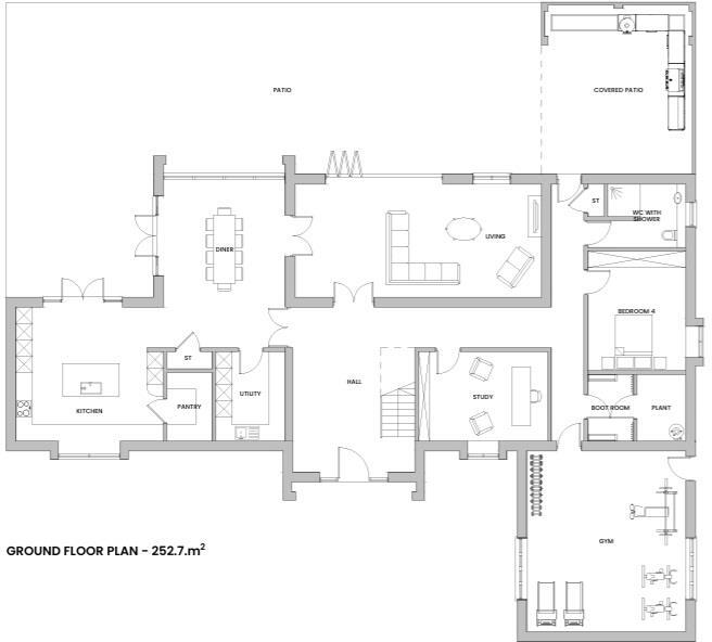
A 2.10 acre building plot located along a private road in a semi rural location on the outskirts off Titchfield Village with planning permission for a substantial replacement dwelling circa 4,000 sq ft along with Agricultural barn, stables & garage with associated landscaping.
Property Oracle says ..
Therefore, we give this property 8 / 10. *Disclaimer: This is our option and does constitute a recommendation or financial advice. Do your own research. *
- Price
- 8
- Condition
- 10
- Location
- 7
- Land
- 7
- Bedrooms
- 4
- Bathrooms
- 3
- Sqft (est)
- 2,720.04
The heatmap indicates the level of crime in the area. The color of the heatmap indicates the crime severity and recency.
Metrics Year-on-Year
- Average area value
- 629,500.00 £Increased by 11.99 %
- Est sale value
- 1,207,697.76 £Increased by 17.15 %
- Average area rental value
- 1,800.00 £/moIncreased by 14.07 %
- Est letting value
- 2,720.04 £/moUnchanged by 0.00 %
- Est rental Yield
- 3.43 %Increased by 1.78 %
- Crime Rate
- 0.00 %
from 562,095.00 £
from 1,030,895.16 £
from 1,578.00 £/mo
from 2,720.04 £/mo
from 3.37 %
from 0.00 %
Agent Activity
Taylor Hill & Bond created the listing.
Nearby Schools
| Name | Type | Ofsted | Distance |
|---|---|---|---|
| Titchfield Primary School | Community School | Good | 0.93 KM |
| The Henry Cort Community College | Community School | Good | 1.57 KM |
| Cornerstone Cofe (Va) Primary School | Voluntary Aided School | Good | 1.70 KM |
| West Hill Park School | Other Independent School | 1.78 KM | |
| St Columba Ce Primary School | Academy Sponsor Led | 2.12 KM |
Images
Nearby Streets
| Name | Average Price | Average Sqft | Distance |
|---|---|---|---|
| M27 | £ 950,000 | 0 | 0.00 KM |
| Southway | £ 0 | 0 | 0.00 KM |
| Skylark Meadows | £ 1,925,000 | 0 | 0.00 KM |
| The Close Bellfield | £ 0 | 0 | 0.00 KM |
| Maraval Close | £ 518,000 | 0 | 0.00 KM |
Nearby Transport
| Name | NLC | TLC | Distance |
|---|---|---|---|
| Swanwick | 5920 | SNW | 3.94 KM |
| Fareham | 5900 | FRM | 4.68 KM |
| Botley | 5894 | BOE | 6.87 KM |
| Bursledon | 5927 | BUO | 8.30 KM |
Nearby Listings
| Address | Price | Type | Score | Distance |
|---|---|---|---|---|
| Segensworth Road, Titchfield | £ 750,000 | BUY | 8 / 10 | 0.00 KM |
| Segensworth Road, Fareham | £ 300,000 | BUY | Unknown | 0.17 KM |
| Mill Lane, Fareham, Hampshire, PO15 | £ 3,050,000 | BUY | 7 / 10 | 0.23 KM |
| ORPINE CLOSE, TITCHFIELD PARK | £ 389,950 | BUY | 5 / 10 | 0.74 KM |
| Fontley Road, Fareham, Hampshire, PO15 | £ 950,000 | BUY | 5 / 10 | 0.78 KM |
Nearby Properties
| Address | Price | Distance |
|---|---|---|
| Little Acre | £ 160,000 | 0.48 KM |
| Ruhamah | £ 375,000 | 0.48 KM |
| 16 Orpine Close | £ 225,000 | 0.74 KM |
| 18 Orpine Close | £ 219,000 | 0.74 KM |
| 4 Orpine Close | £ 298,000 | 0.74 KM |